賃貸や不動産はアットホーム-賃貸マンション・賃貸物件・不動産なら アットホーム

佐賀県杵島郡江北町大字山口(江北駅)の貸その他:物件詳細

  • 物件詳細
  • 情報の見方
  • 印刷用画面
交通
所在地
駅徒歩 賃料
管理費等
敷金/保証金
礼金
使用部分面積
坪数/坪単価
物件種目
築年月

JR長崎本線/江北 新着

佐賀県杵島郡江北町大字山口

4分

40万円

なし

1ヶ月 / なし

1ヶ月

1,009.39m²

305.33坪/0.1311万円

貸医院

1982年9月(築43年8ヶ月)

おすすめコメント  スタッフ: 江口 徹

江北町に元病院が賃貸に出ました。1009.39㎡(305.33坪)1F:510.35㎡・2F:452.17㎡・3F:46.87㎡

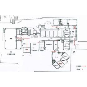
間取図

間取図

<
その他の画像
>
    • お問い合わせ
    交通

    JR長崎本線 江北駅 徒歩4分

    その他の交通

    JR佐世保線 江北駅 徒歩4分

    所在地 佐賀県杵島郡江北町大字山口
    物件種目 貸医院
    賃料 40万円 管理費等 なし
    敷金 / 保証金 1ヶ月 / なし 礼金 1ヶ月
    敷引 坪単価 0.1311万円
    保証金償却 権利金
    造作譲渡 その他一時金
    保険等    
    使用部分面積 1,009.39m² 坪数 305.33坪
    築年月 1982年9月(築43年8ヶ月) 階建 / 階 3階建
    駐車場 バイク置き場
    駐輪場 土地面積
    接道状況 用途地域
    間取り 建物構造 RC
    アピールポイント 江北町に元病院が賃貸に出ました。1,009.39㎡(305.33坪)1F:510.35㎡・2F:452.17㎡・3F:46.87㎡
    建物名・部屋番号  
    リフォーム履歴
    リノベーション履歴
    特記事項 駐車場2台分、駐車場3台分以上
    備考
    賃貸保証等:加入要(総家賃100%~)
    管理形態/管理員の勤務形態:-/-
    1,009.39㎡(305.33坪)1F:510.35㎡・2F:452.17㎡・3F:46.87㎡ 
    エネルギー消費性能
    断熱性能
    目安光熱費
    バス・トイレ 男女別トイレ、バス・トイレ別、シャワールーム、トイレ
    キッチン
    設備・サービス エアコン2台以上、給湯、エアコン
    その他 施設内貸会議室、エレベーター
    契約期間 3年 条件等
    引渡可能時期 相談 現況
    仲介手数料 1ヶ月    
    更新料 物件番号 6990260256
    情報公開日 2026年4月9日 次回更新予定日 2026年4月24日
    ケータイ用バーコード

    QRコード

    スマートフォンでこの物件を見る
    スマートフォンからもこの物件をご覧になれます。
    ※「-」と表示されている項目については、情報提供会社にご確認ください。

    この物件の周辺情報

    周辺施設 イオン江北店
    距離 849m
    周辺施設 ローソン佐賀江北店
    距離 501m
    周辺施設 江北町立江北小学校
    距離 920m
    周辺施設 江北保育園
    距離 687m
    周辺施設 医療法人武岡病院
    距離 769m
    周辺施設 佐賀銀行江北出張所
    距離 655m
    周辺施設 江北町役場
    距離 574m

    クイックお問い合わせ

    ここから簡単にお問い合わせをすることができます。
    (SSLでの暗号化での送信を希望されるお客さまは こちら よりお問い合わせください)

    お問い合わせ内容(必須)
    物件のお問い合わせ理由(必須)
    お名前・ご担当者様名(必須) 姓  名 
    メールアドレス(必須)
    ※携帯電話のメールアドレスをご入力される方はこちらをご確認ください
    電話番号(必須)
    - -
    備考欄 希望条件、物件案内希望日、質問などがございましたらご記入ください。
    お問い合わせを行う前に「個人情報の取り扱いについて」を必ずお読みください。
    「個人情報の取り扱いについて」に同意いただいた場合は「上記にご同意の上 確認画面へ進む」のボタンをクリックしてください。

    個人情報の取り扱いについて

    皆さまが送付された個人情報はアットホーム(株)のサーバを経由し、お問い合わせ先の不動産会社にメールまたはFAXにて転送されるためアットホーム(株)にも保管されます。アットホーム(株)で保管された個人情報の取り扱いについては、【こちら】をご覧ください。
    また、本画面でご記入いただいた個人情報は、お問い合わせ先の不動産会社でも保管します。 お問い合わせ先の不動産会社が保管する個人情報の取り扱いについては、不動産会社に直接お問い合わせください。

    情報提供会社

    情報提供会社

    (株)E不動産

    佐賀県知事免許(1)第2723号

    交通:
    JR長崎本線/佐賀駅 徒歩34分
    佐賀県佐賀市長瀬町10-37 
    TEL:
    0952-60-2399
    FAX:
    0952-60-2399
    所属団体:
    (公社)佐賀県宅地建物取引業協会会員
    (一社)九州不動産公正取引協議会加盟

    取引態様:仲介

    • 会社情報
    • 80508658
    スマートフォンで
    この不動産会社を見る
    QRコード
    • お問い合わせ
    • 提携サイト等より掲載されている物件情報につきましては、不動産会社詳細情報にリンクされていないものがあります。
    • 物件に関するお問合せは、物件詳細ページの「情報提供会社」に表示されている不動産会社へ直接お願いいたします。
    • 間取図は、現況を優先させていただきます。
    • 映像は物件の一部を撮影したものです。物件の契約にあたっての最終判断はご自身の判断に基づいて行ってください。
    • 仲介手数料について仲介手数料

    アットホームは物件情報の適正化に努めております。 内容に誤りがある場合にはこちらへご連絡ください。


    物件画像: