賃貸や不動産はアットホーム-賃貸マンション・賃貸物件・不動産なら アットホーム

神奈川県横浜市西区平沼1丁目(戸部駅)の貸その他:物件詳細

  • 物件詳細
  • 情報の見方
  • 印刷用画面
交通
所在地
駅徒歩 賃料
管理費等
敷金/保証金
礼金
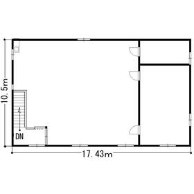
使用部分面積
坪数/坪単価
物件種目
築年月

京急本線/戸部 新着

神奈川県横浜市西区平沼1丁目

4分

88万円

3ヶ月 / なし

1ヶ月

510.34m²

154.37坪/0.5701万円

貸倉庫

1977年8月(築48年9ヶ月)

間取図

間取図

間取図

間取図

<
その他の画像
  • 間取図
  • 外観
>
    • お問い合わせ
    交通

    京急本線 戸部駅 徒歩4分

    その他の交通

    JR京浜東北線 横浜駅 徒歩11分

    所在地 神奈川県横浜市西区平沼1丁目
    物件種目 貸倉庫
    賃料 88万円 管理費等
    敷金 / 保証金 3ヶ月 / なし 礼金 1ヶ月
    敷引 坪単価 0.5701万円
    保証金償却 権利金
    造作譲渡 その他一時金
    保険等    
    使用部分面積 510.34m² 坪数 154.37坪
    築年月 1977年8月(築48年9ヶ月) 階建 / 階 3階建 / 1階~3階部分
    駐車場 バイク置き場
    駐輪場 土地面積
    接道状況 用途地域 商業地域
    間取り 建物構造 鉄骨造
    建物名・部屋番号 平沼倉庫
    リフォーム履歴
    リノベーション履歴
    特記事項 最上階
    備考
    賃貸保証等:加入要(賃料の120%/初回、以降賃料の15%/年)
    管理形態/管理員の勤務形態:-/-
    借主からの解約は3年間解約不可。3年経過後、通告から6ヶ月後に解約可能
    エネルギー消費性能
    断熱性能
    目安光熱費
    バス・トイレ トイレ
    キッチン
    設備・サービス 動力あり
    その他
    契約期間 2031年4月30日まで 条件等 定期借家定期借家
    引渡可能時期 相談 現況
    仲介手数料 1.1ヶ月    
    更新料 物件番号 6990248569
    情報公開日 2026年4月9日 次回更新予定日 2026年4月23日
    ケータイ用バーコード

    QRコード

    スマートフォンでこの物件を見る
    スマートフォンからもこの物件をご覧になれます。
    ※「-」と表示されている項目については、情報提供会社にご確認ください。

    クイックお問い合わせ

    ここから簡単にお問い合わせをすることができます。
    (SSLでの暗号化での送信を希望されるお客さまは こちら よりお問い合わせください)

    お問い合わせ内容(必須)
    物件のお問い合わせ理由(必須)
    お名前・ご担当者様名(必須) 姓  名 
    メールアドレス(必須)
    ※携帯電話のメールアドレスをご入力される方はこちらをご確認ください
    電話番号(必須)
    - -
    備考欄 希望条件、物件案内希望日、質問などがございましたらご記入ください。
    お問い合わせを行う前に「個人情報の取り扱いについて」を必ずお読みください。
    「個人情報の取り扱いについて」に同意いただいた場合は「上記にご同意の上 確認画面へ進む」のボタンをクリックしてください。

    個人情報の取り扱いについて

    皆さまが送付された個人情報はアットホーム(株)のサーバを経由し、お問い合わせ先の不動産会社にメールまたはFAXにて転送されるためアットホーム(株)にも保管されます。アットホーム(株)で保管された個人情報の取り扱いについては、【こちら】をご覧ください。
    また、本画面でご記入いただいた個人情報は、お問い合わせ先の不動産会社でも保管します。 お問い合わせ先の不動産会社が保管する個人情報の取り扱いについては、不動産会社に直接お問い合わせください。

    情報提供会社

    情報提供会社

    (株)杉浦商事

    神奈川県知事免許(14)第7642号

    交通:
    JR京浜東北線/東神奈川駅 徒歩3分
    神奈川県横浜市神奈川区神奈川2丁目19-1 
    TEL:
    045-441-8522
    FAX:
    045-441-5528
    所属団体:
    (公社)神奈川県宅地建物取引業協会会員
    (公社)首都圏不動産公正取引協議会加盟

    取引態様:仲介

    • 会社情報
    • 00230102
    スマートフォンで
    この不動産会社を見る
    QRコード
    • お問い合わせ
    • 提携サイト等より掲載されている物件情報につきましては、不動産会社詳細情報にリンクされていないものがあります。
    • 物件に関するお問合せは、物件詳細ページの「情報提供会社」に表示されている不動産会社へ直接お願いいたします。
    • 間取図は、現況を優先させていただきます。
    • 映像は物件の一部を撮影したものです。物件の契約にあたっての最終判断はご自身の判断に基づいて行ってください。
    • 仲介手数料について仲介手数料

    アットホームは物件情報の適正化に努めております。 内容に誤りがある場合にはこちらへご連絡ください。


    物件画像: