賃貸や不動産はアットホーム-賃貸マンション・賃貸物件・不動産なら アットホーム

大阪府大阪市西淀川区御幣島5丁目(加島駅)の貸その他:物件詳細

  • 物件詳細
  • 情報の見方
  • 印刷用画面
交通
所在地
駅徒歩 賃料
管理費等
敷金/保証金
礼金
使用部分面積
坪数/坪単価
物件種目
築年月

JR東西線/加島 新着

大阪府大阪市西淀川区御幣島5丁目

12分

1,078万円

なし / 9,800万円

なし

3,806.30m²

1151.40坪/0.9363万円

貸倉庫

2019年9月(築6年4ヶ月)

おすすめコメント

※業種は事前にご相談くださいませまた、個別の物件オーダーも随時受け付けておりますので、是非一度ご希望をお聞かせくださいませ!!

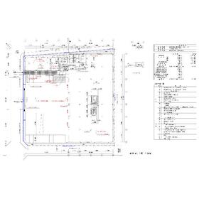
間取図

間取図

その他の画像
    • お問い合わせ
    交通

    JR東西線 加島駅 徒歩12分

    所在地 大阪府大阪市西淀川区御幣島5丁目
    物件種目 貸倉庫
    賃料 1,078万円 管理費等
    敷金 / 保証金 なし / 9,800万円 礼金 なし
    敷引 坪単価 0.9363万円
    保証金償却 解約時3,234万円 権利金
    造作譲渡 その他一時金
    保険等    
    使用部分面積 3,806.30m² 坪数 1151.40坪
    築年月 2019年9月(築6年4ヶ月) 階建 / 階 3階建
    駐車場 バイク置き場
    駐輪場 土地面積 3,546.08m²(公簿)
    接道状況 用途地域
    間取り 建物構造 鉄骨造
    アピールポイント 倉庫:1~2階1548.40㎡(468.39坪)
    事務所:1~3階236.50㎡(71.54坪)
    建物名・部屋番号  
    リフォーム履歴
    リノベーション履歴
    特記事項
    備考
    管理形態/管理員の勤務形態:-/-
    2026年6月上旬より入居可、駐車スペース有、荷物用EV2.5t、人荷用EV2.0t、乗用EV、電動シャッター、工事業者指定有り!!
    エネルギー消費性能
    断熱性能
    目安光熱費
    バス・トイレ
    キッチン
    設備・サービス
    その他
    契約期間 3年 条件等
    引渡可能時期 相談 現況 使用中
    更新料 物件番号 6988796211
    情報公開日 2025年12月16日 次回更新予定日 2025年12月30日
    ケータイ用バーコード

    QRコード

    スマートフォンでこの物件を見る
    スマートフォンからもこの物件をご覧になれます。
    ※「-」と表示されている項目については、情報提供会社にご確認ください。

    クイックお問い合わせ

    ここから簡単にお問い合わせをすることができます。
    (SSLでの暗号化での送信を希望されるお客さまは こちら よりお問い合わせください)

    お問い合わせ内容(必須)
    物件のお問い合わせ理由(必須)
    お名前・ご担当者様名(必須) 姓  名 
    メールアドレス(必須)
    ※携帯電話のメールアドレスをご入力される方はこちらをご確認ください
    電話番号(必須)
    - -
    備考欄 希望条件、物件案内希望日、質問などがございましたらご記入ください。
    お問い合わせを行う前に「個人情報の取り扱いについて」を必ずお読みください。
    「個人情報の取り扱いについて」に同意いただいた場合は「上記にご同意の上 確認画面へ進む」のボタンをクリックしてください。

    個人情報の取り扱いについて

    皆さまが送付された個人情報はアットホーム(株)のサーバを経由し、お問い合わせ先の不動産会社にメールまたはFAXにて転送されるためアットホーム(株)にも保管されます。アットホーム(株)で保管された個人情報の取り扱いについては、【こちら】をご覧ください。
    また、本画面でご記入いただいた個人情報は、お問い合わせ先の不動産会社でも保管します。 お問い合わせ先の不動産会社が保管する個人情報の取り扱いについては、不動産会社に直接お問い合わせください。

    情報提供会社

    情報提供会社

    (株)コネクト

    大阪府知事免許(1)第62355号

    交通:
    JR東海道本線/高槻駅 徒歩4分
    大阪府高槻市芥川町2丁目24番36号 小林ビル201
    TEL:
    072-682-3666
    FAX:
    072-682-3677
    所属団体:
    (公社)全日本不動産協会会員
    (公社)近畿地区不動産公正取引協議会加盟

    取引態様:仲介

    • 会社情報
    • 50105498
    スマートフォンで
    この不動産会社を見る
    QRコード
    • お問い合わせ
    • 提携サイト等より掲載されている物件情報につきましては、不動産会社詳細情報にリンクされていないものがあります。
    • 物件に関するお問合せは、物件詳細ページの「情報提供会社」に表示されている不動産会社へ直接お願いいたします。
    • 間取図は、現況を優先させていただきます。
    • 映像は物件の一部を撮影したものです。物件の契約にあたっての最終判断はご自身の判断に基づいて行ってください。
    • 仲介手数料について仲介手数料

    アットホームは物件情報の適正化に努めております。 内容に誤りがある場合にはこちらへご連絡ください。


    物件画像: