賃貸や不動産はアットホーム-賃貸マンション・賃貸物件・不動産なら アットホーム

大阪府吹田市江の木町(江坂駅)の貸その他:物件詳細

  • 物件詳細
  • 情報の見方
  • 印刷用画面
交通
所在地
駅徒歩 賃料
管理費等
敷金/保証金
礼金
使用部分面積
坪数/坪単価
物件種目
築年月

地下鉄御堂筋線/江坂

大阪府吹田市江の木町

6分

44万円

なし / 240万円

なし

218.84m²

66.19坪/0.6647万円

貸倉庫

1967年10月(築58年3ヶ月)

おすすめコメント

■倉庫・事務所 ■1,2階部分1棟

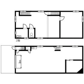
間取図

間取図

室内

室内

その他の画像
  • 室内
  • 室内
  • 室内
  • トイレ
  • 外観
    • お問い合わせ
    交通

    地下鉄御堂筋線 江坂駅 徒歩6分

    所在地 大阪府吹田市江の木町
    物件種目 貸倉庫
    賃料 44万円 管理費等
    敷金 / 保証金 なし / 240万円 礼金 なし
    敷引 坪単価 0.6647万円
    保証金償却 権利金
    造作譲渡 その他一時金
    保険等 要 2年 設備・備品、賠償補償    
    使用部分面積 218.84m² 坪数 66.19坪
    築年月 1967年10月(築58年3ヶ月) 階建 / 階 2階建 / 1階
    駐車場 バイク置き場
    駐輪場 土地面積
    接道状況 用途地域 近隣商業
    間取り 建物構造 鉄骨造
    アピールポイント ◎車2台駐車可
    ◎エアコン3台
    ◎モニター付インターホン
    ◎ミニキッチン
    ◎各階トイレ
    ◎照明器具
    ※設備は全て残置物
    建物名・部屋番号  
    リフォーム履歴
    リノベーション履歴
    特記事項 飲食店不可
    備考
    賃貸保証等:加入要(ナップ・全保連等)
    管理形態/管理員の勤務形態:-/-
    ※解約引:5年未満120万円引。5年超72万円引(税別)
    ※現状渡し、業種ご相談

    エネルギー消費性能
    断熱性能
    目安光熱費
    バス・トイレ トイレ2ヶ所
    キッチン
    設備・サービス
    その他
    契約期間 2年 条件等
    引渡可能時期 即時 現況
    更新料 物件番号 6988654966
    情報公開日 2025年12月5日 次回更新予定日 2025年12月19日
    ケータイ用バーコード

    QRコード

    スマートフォンでこの物件を見る
    スマートフォンからもこの物件をご覧になれます。
    ※「-」と表示されている項目については、情報提供会社にご確認ください。

    この物件の周辺情報

    周辺施設 関西スーパー江坂店
    距離 435m
    周辺施設 セブンイレブン吹田江の木町店
    距離 144m
    周辺施設 医療法人甲聖会甲聖会紀念病院
    距離 154m
    周辺施設 吹田江の木郵便局
    距離 453m
    周辺施設 北おおさか信用金庫江坂駅前支店
    距離 319m
    周辺施設 吹田市西消防署
    距離 749m

    クイックお問い合わせ

    ここから簡単にお問い合わせをすることができます。
    (SSLでの暗号化での送信を希望されるお客さまは こちら よりお問い合わせください)

    お問い合わせ内容(必須)
    物件のお問い合わせ理由(必須)
    お名前・ご担当者様名(必須) 姓  名 
    メールアドレス(必須)
    ※携帯電話のメールアドレスをご入力される方はこちらをご確認ください
    電話番号(必須)
    - -
    備考欄 希望条件、物件案内希望日、質問などがございましたらご記入ください。
    お問い合わせを行う前に「個人情報の取り扱いについて」を必ずお読みください。
    「個人情報の取り扱いについて」に同意いただいた場合は「上記にご同意の上 確認画面へ進む」のボタンをクリックしてください。

    個人情報の取り扱いについて

    皆さまが送付された個人情報はアットホーム(株)のサーバを経由し、お問い合わせ先の不動産会社にメールまたはFAXにて転送されるためアットホーム(株)にも保管されます。アットホーム(株)で保管された個人情報の取り扱いについては、【こちら】をご覧ください。
    また、本画面でご記入いただいた個人情報は、お問い合わせ先の不動産会社でも保管します。 お問い合わせ先の不動産会社が保管する個人情報の取り扱いについては、不動産会社に直接お問い合わせください。

    情報提供会社

    情報提供会社

    (株)リップル

    大阪府知事免許(9)第33451号

    交通:
    地下鉄御堂筋線/中津駅 徒歩1分
    大阪府大阪市北区豊崎5丁目7-7 
    TEL:
    06-6359-5590
    FAX:
    06-6359-5593
    所属団体:
    (一社)大阪府宅地建物取引業協会会員
    (公社)近畿地区不動産公正取引協議会加盟

    取引態様:仲介

    • 会社情報
    • 50005482
    スマートフォンで
    この不動産会社を見る
    QRコード
    • お問い合わせ
    • 提携サイト等より掲載されている物件情報につきましては、不動産会社詳細情報にリンクされていないものがあります。
    • 物件に関するお問合せは、物件詳細ページの「情報提供会社」に表示されている不動産会社へ直接お願いいたします。
    • 間取図は、現況を優先させていただきます。
    • 映像は物件の一部を撮影したものです。物件の契約にあたっての最終判断はご自身の判断に基づいて行ってください。
    • 仲介手数料について仲介手数料

    アットホームは物件情報の適正化に努めております。 内容に誤りがある場合にはこちらへご連絡ください。


    物件画像: