賃貸や不動産はアットホーム-賃貸マンション・賃貸物件・不動産なら アットホーム

東京都西多摩郡瑞穂町大字箱根ケ崎(箱根ケ崎駅)の貸その他:物件詳細

  • 物件詳細
  • 情報の見方
  • 印刷用画面
交通
所在地
駅徒歩 賃料
管理費等
敷金/保証金
礼金
使用部分面積
坪数/坪単価
物件種目
築年月

JR八高線/箱根ケ崎

東京都西多摩郡瑞穂町大字箱根ケ崎

23分

440万円

3ヶ月 / なし

1ヶ月

3,300.00m²

998.24坪/0.4408万円

貸倉庫

2026年2月(新築)

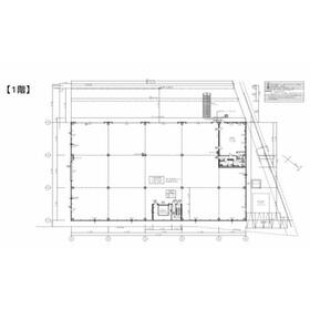
間取図

間取図

その他の画像
    • お問い合わせ
    交通

    JR八高線 箱根ケ崎駅 徒歩23分

    所在地 東京都西多摩郡瑞穂町大字箱根ケ崎
    物件種目 貸倉庫
    賃料 440万円 管理費等
    敷金 / 保証金 3ヶ月 / なし 礼金 1ヶ月
    敷引 坪単価 0.4408万円
    保証金償却 権利金
    造作譲渡 その他一時金
    保険等    
    使用部分面積 3,300.00m² 坪数 998.24坪
    築年月 2026年2月(新築) 階建 / 階 2階建 / 1階~2階部分
    駐車場 有 無料 バイク置き場
    駐輪場 土地面積
    接道状況 用途地域
    間取り 建物構造 鉄骨造
    建物名・部屋番号 箱根ヶ崎新築貸倉庫
    リフォーム履歴
    リノベーション履歴
    特記事項 土日・祝日利用可、大型トラック搬入可、駐車場3台分以上、国道沿いに面する
    備考
    管理形態/管理員の勤務形態:-/-
    国道16号に接する新築2階建倉庫
    高床式
    事務所・トイレ有
    青梅インターより約3km
    床耐荷重1t/㎡ 
    貨物用EV:3.0m×3.0m×H2.5m (3t)
    エネルギー消費性能
    断熱性能
    目安光熱費
    バス・トイレ トイレ
    キッチン
    設備・サービス
    その他 高床式プラットホーム、エレベーター
    契約期間 3年 条件等
    引渡可能時期 相談 現況 未完成
    仲介手数料 1ヶ月    
    更新料 なし 物件番号 6988336235
    情報公開日 2025年11月10日 次回更新予定日 2025年12月25日
    ケータイ用バーコード

    QRコード

    スマートフォンでこの物件を見る
    スマートフォンからもこの物件をご覧になれます。
    ※「-」と表示されている項目については、情報提供会社にご確認ください。

    クイックお問い合わせ

    ここから簡単にお問い合わせをすることができます。
    (SSLでの暗号化での送信を希望されるお客さまは こちら よりお問い合わせください)

    お問い合わせ内容(必須)
    物件のお問い合わせ理由(必須)
    お名前・ご担当者様名(必須) 姓  名 
    メールアドレス(必須)
    ※携帯電話のメールアドレスをご入力される方はこちらをご確認ください
    電話番号(必須)
    - -
    備考欄 希望条件、物件案内希望日、質問などがございましたらご記入ください。
    お問い合わせを行う前に「個人情報の取り扱いについて」を必ずお読みください。
    「個人情報の取り扱いについて」に同意いただいた場合は「上記にご同意の上 確認画面へ進む」のボタンをクリックしてください。

    個人情報の取り扱いについて

    皆さまが送付された個人情報はアットホーム(株)のサーバを経由し、お問い合わせ先の不動産会社にメールまたはFAXにて転送されるためアットホーム(株)にも保管されます。アットホーム(株)で保管された個人情報の取り扱いについては、【こちら】をご覧ください。
    また、本画面でご記入いただいた個人情報は、お問い合わせ先の不動産会社でも保管します。 お問い合わせ先の不動産会社が保管する個人情報の取り扱いについては、不動産会社に直接お問い合わせください。

    情報提供会社

    情報提供会社

    (株)ファクトリンク

    神奈川県知事免許(1)第32302号

    交通:
    JR京浜東北線/鶴見駅 徒歩7分
    神奈川県横浜市鶴見区鶴見中央3丁目2-1 横浜鶴見共同ビル2階
    TEL:
    045-717-8842
    FAX:
    045-717-8843
    所属団体:
    (公社)神奈川県宅地建物取引業協会会員
    (公社)首都圏不動産公正取引協議会加盟

    取引態様:仲介

    • 会社情報
    • 00276750
    スマートフォンで
    この不動産会社を見る
    QRコード
    • お問い合わせ
    • 提携サイト等より掲載されている物件情報につきましては、不動産会社詳細情報にリンクされていないものがあります。
    • 物件に関するお問合せは、物件詳細ページの「情報提供会社」に表示されている不動産会社へ直接お願いいたします。
    • 間取図は、現況を優先させていただきます。
    • 映像は物件の一部を撮影したものです。物件の契約にあたっての最終判断はご自身の判断に基づいて行ってください。
    • 仲介手数料について仲介手数料

    アットホームは物件情報の適正化に努めております。 内容に誤りがある場合にはこちらへご連絡ください。


    物件画像: