賃貸や不動産はアットホーム-賃貸マンション・賃貸物件・不動産なら アットホーム

愛知県名古屋市天白区道明町(塩釜口駅)の貸その他:物件詳細

  • 物件詳細
  • 情報の見方
  • 印刷用画面
交通
所在地
駅徒歩 賃料
管理費等
敷金/保証金
礼金
使用部分面積
坪数/坪単価
物件種目
築年月

名古屋市鶴舞線/塩釜口

愛知県名古屋市天白区道明町

11分

55万円

なし / 5ヶ月

なし

294.00m²

88.93坪/0.6185万円

貸倉庫

2006年4月(築19年11ヶ月)

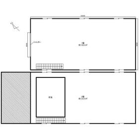
間取図

間取図

1階階段下スペースにトイレ、流し台を設置します。

外観

外観

2026年1月 外壁塗装済み!

<
その他の画像
  • 室内
  • 室内
  • その他
  • トイレ
  • その他
  • 室内
  • 外観
  • 外観
  • コンビニ
  • コンビニ
  • 販売店
>
    • お問い合わせ
    交通

    名古屋市鶴舞線 塩釜口駅 徒歩11分

    その他の交通

    名古屋市鶴舞線 植田駅 徒歩22分

    名古屋市名城線 八事駅 徒歩23分

    所在地 愛知県名古屋市天白区道明町
    物件種目 貸倉庫
    賃料 55万円 管理費等
    敷金 / 保証金 なし / 5ヶ月 礼金 なし
    敷引 坪単価 0.6185万円
    保証金償却 解約時55% 権利金
    造作譲渡 その他一時金
    保険等    
    使用部分面積 294.00m² 坪数 88.93坪
    築年月 2006年4月(築19年11ヶ月) 階建 / 階 2階建
    駐車場 有 無料
    倉庫前駐車場あり(無料) ※倉庫南側に駐車場有、そちらは別途契約となります。駐車料月額:110,000円(税込)
    バイク置き場
    駐輪場 土地面積
    接道状況 用途地域 準工業
    間取り 建物構造 鉄骨造
    アピールポイント 準工業地域内の倉庫になります!2026年1月 外壁塗装完了しました!
    建物名・部屋番号  
    リフォーム履歴 ■水回り:2025年12月
    キッチン、トイレ
    トイレ・流し台設置工事
    ■外装:2026年1月
    外壁
    外壁塗装工事
    ※実施年月は最も古い履歴を表示
    リノベーション履歴
    特記事項 駐車場3台分以上
    備考
    賃貸保証等:加入要(全保連 初回保証料:550,000円、更新:55,000円(毎年))
    管理形態/管理員の勤務形態:-/-
    エネルギー消費性能
    断熱性能
    目安光熱費
    バス・トイレ トイレ
    キッチン
    設備・サービス
    その他
    契約期間 2年 条件等
    引渡可能時期 相談 現況
    仲介手数料 55万円    
    更新料 物件番号 6988306938
    情報公開日 2025年11月7日 次回更新予定日 2026年2月27日
    ケータイ用バーコード

    QRコード

    スマートフォンでこの物件を見る
    スマートフォンからもこの物件をご覧になれます。
    ※「-」と表示されている項目については、情報提供会社にご確認ください。

    この物件の周辺情報

    周辺施設 セブンイレブン名古屋道明町店
    距離 64m
    周辺施設 ファミリーマート天白道明町店
    距離 160m
    周辺施設 ツルハドラッグ島田橋店
    距離 39m

    クイックお問い合わせ

    ここから簡単にお問い合わせをすることができます。
    (SSLでの暗号化での送信を希望されるお客さまは こちら よりお問い合わせください)

    お問い合わせ内容(必須)
    物件のお問い合わせ理由(必須)
    お名前・ご担当者様名(必須) 姓  名 
    メールアドレス(必須)
    ※携帯電話のメールアドレスをご入力される方はこちらをご確認ください
    電話番号(必須)
    - -
    備考欄 希望条件、物件案内希望日、質問などがございましたらご記入ください。
    お問い合わせを行う前に「個人情報の取り扱いについて」を必ずお読みください。
    「個人情報の取り扱いについて」に同意いただいた場合は「上記にご同意の上 確認画面へ進む」のボタンをクリックしてください。

    個人情報の取り扱いについて

    皆さまが送付された個人情報はアットホーム(株)のサーバを経由し、お問い合わせ先の不動産会社にメールまたはFAXにて転送されるためアットホーム(株)にも保管されます。アットホーム(株)で保管された個人情報の取り扱いについては、【こちら】をご覧ください。
    また、本画面でご記入いただいた個人情報は、お問い合わせ先の不動産会社でも保管します。 お問い合わせ先の不動産会社が保管する個人情報の取り扱いについては、不動産会社に直接お問い合わせください。

    情報提供会社

    情報提供会社

    (株)山田商店

    愛知県知事免許(11)第12613号

    交通:
    名古屋市鶴舞線/塩釜口駅 徒歩1分
    愛知県名古屋市天白区元八事4丁目73 
    TEL:
    052-831-4668
    FAX:
    052-831-8778
    所属団体:
    (公社)愛知県宅地建物取引業協会会員
    東海不動産公正取引協議会加盟

    取引態様:仲介

    • 会社情報
    • 40001980
    スマートフォンで
    この不動産会社を見る
    QRコード
    • お問い合わせ
    • 提携サイト等より掲載されている物件情報につきましては、不動産会社詳細情報にリンクされていないものがあります。
    • 物件に関するお問合せは、物件詳細ページの「情報提供会社」に表示されている不動産会社へ直接お願いいたします。
    • 間取図は、現況を優先させていただきます。
    • 映像は物件の一部を撮影したものです。物件の契約にあたっての最終判断はご自身の判断に基づいて行ってください。
    • 仲介手数料について仲介手数料

    アットホームは物件情報の適正化に努めております。 内容に誤りがある場合にはこちらへご連絡ください。


    物件画像: