賃貸や不動産はアットホーム-賃貸マンション・賃貸物件・不動産なら アットホーム

宮城県仙台市青葉区千代田町(北山駅)の貸その他:物件詳細

  • 物件詳細
  • 情報の見方
  • 印刷用画面
交通
所在地
駅徒歩 賃料
管理費等
敷金/保証金
礼金
使用部分面積
坪数/坪単価
物件種目
築年月

JR仙山線/北山 新着

宮城県仙台市青葉区千代田町

10分

24万円

2ヶ月 / なし

なし

361.20m²

109.26坪/0.2197万円

貸寮

1986年3月(築39年9ヶ月)

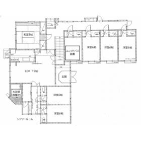
間取図

間取図

1F平面図

2F平面図

その他の画像
    • お問い合わせ
    交通

    JR仙山線 北山駅 徒歩10分

    その他の交通

    JR仙山線 東北福祉大前駅 徒歩12分

    所在地 宮城県仙台市青葉区千代田町
    物件種目 貸寮
    賃料 24万円 管理費等
    敷金 / 保証金 2ヶ月 / なし 礼金 なし
    敷引 坪単価 0.2197万円
    保証金償却 権利金
    造作譲渡 その他一時金
    保険等    
    使用部分面積 361.20m² 坪数 109.26坪
    築年月 1986年3月(築39年9ヶ月) 階建 / 階 2階建
    駐車場 バイク置き場
    駐輪場 土地面積
    接道状況 用途地域
    間取り 建物構造 木造
    建物名・部屋番号 パンションアムール
    リフォーム履歴
    リノベーション履歴
    特記事項 駐車場2台分
    備考
    賃貸保証等:加入要(アーク賃貸保証)
    管理形態/管理員の勤務形態:-/-
    東北福祉大学学生向けの寮だった物件で建物一括貸しとなります
    エネルギー消費性能
    断熱性能
    目安光熱費
    バス・トイレ バス・トイレ別
    キッチン
    設備・サービス 給湯
    その他
    契約期間 2年 条件等
    引渡可能時期 即時 現況
    更新料 33,000円 物件番号 6988263817
    情報公開日 2025年11月4日 次回更新予定日 2025年11月18日
    ケータイ用バーコード

    QRコード

    スマートフォンでこの物件を見る
    スマートフォンからもこの物件をご覧になれます。
    ※「-」と表示されている項目については、情報提供会社にご確認ください。

    クイックお問い合わせ

    ここから簡単にお問い合わせをすることができます。
    (SSLでの暗号化での送信を希望されるお客さまは こちら よりお問い合わせください)

    お問い合わせ内容(必須)
    物件のお問い合わせ理由(必須)
    お名前・ご担当者様名(必須) 姓  名 
    メールアドレス(必須)
    ※携帯電話のメールアドレスをご入力される方はこちらをご確認ください
    電話番号(必須)
    - -
    備考欄 希望条件、物件案内希望日、質問などがございましたらご記入ください。
    お問い合わせを行う前に「個人情報の取り扱いについて」を必ずお読みください。
    「個人情報の取り扱いについて」に同意いただいた場合は「上記にご同意の上 確認画面へ進む」のボタンをクリックしてください。

    個人情報の取り扱いについて

    皆さまが送付された個人情報はアットホーム(株)のサーバを経由し、お問い合わせ先の不動産会社にメールまたはFAXにて転送されるためアットホーム(株)にも保管されます。アットホーム(株)で保管された個人情報の取り扱いについては、【こちら】をご覧ください。
    また、本画面でご記入いただいた個人情報は、お問い合わせ先の不動産会社でも保管します。 お問い合わせ先の不動産会社が保管する個人情報の取り扱いについては、不動産会社に直接お問い合わせください。

    情報提供会社

    情報提供会社

    (株)ミディアム

    宮城県知事免許(2)第6493号

    交通:
    仙台市東西線/大町西公園駅 徒歩7分
    宮城県仙台市青葉区立町19-18 
    TEL:
    022-216-5250
    FAX:
    022-216-5251
    所属団体:
    (公社)宮城県宅地建物取引業協会会員
    東北地区不動産公正取引協議会加盟

    取引態様:仲介

    • 会社情報
    • 20005418
    スマートフォンで
    この不動産会社を見る
    QRコード
    • お問い合わせ
    • 提携サイト等より掲載されている物件情報につきましては、不動産会社詳細情報にリンクされていないものがあります。
    • 物件に関するお問合せは、物件詳細ページの「情報提供会社」に表示されている不動産会社へ直接お願いいたします。
    • 間取図は、現況を優先させていただきます。
    • 映像は物件の一部を撮影したものです。物件の契約にあたっての最終判断はご自身の判断に基づいて行ってください。
    • 仲介手数料について仲介手数料

    アットホームは物件情報の適正化に努めております。 内容に誤りがある場合にはこちらへご連絡ください。


    物件画像: