賃貸や不動産はアットホーム-賃貸マンション・賃貸物件・不動産なら アットホーム

埼玉県入間市宮寺の貸その他:物件詳細

  • 物件詳細
  • 情報の見方
  • 印刷用画面
交通
所在地
駅徒歩 賃料
管理費等
敷金/保証金
礼金
使用部分面積
坪数/坪単価
物件種目
築年月

【バス】二本木停留所 停歩1分

埼玉県入間市宮寺


33万円

30万円 / なし

なし

277.20m²

83.85坪/0.3936万円

貸倉庫

1986年3月(築39年10ヶ月)

おすすめコメント

倉庫として利用可能!

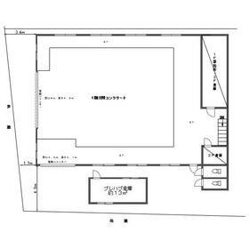
間取図

間取図

<
その他の画像
  • 室内
  • 室内
  • 室内
  • トイレ
  • 室内
  • 室内
  • 室内
>
    • お問い合わせ
    交通

    【バス】 二本木停留所 停歩1分

    所在地 埼玉県入間市宮寺
    物件種目 貸倉庫
    賃料 33万円 管理費等
    敷金 / 保証金 30万円 / なし 礼金 なし
    敷引 坪単価 0.3936万円
    保証金償却 権利金
    造作譲渡 その他一時金
    保険等    
    使用部分面積 277.20m² 坪数 83.85坪
    築年月 1986年3月(築39年10ヶ月) 階建 / 階 1階建 / 1階
    駐車場 バイク置き場
    駐輪場 土地面積
    接道状況 用途地域
    間取り 建物構造 鉄骨造
    アピールポイント 倉庫として利用可能!
    建物名・部屋番号 西村倉庫 A区画
    リフォーム履歴
    リノベーション履歴
    特記事項
    備考
    賃貸保証等:利用可(日本賃貸保証会社 初回保証料:賃料×80% 月額保証料:賃料×2.5% 引き落とし手数料:毎月300円(税抜き))
    管理形態/管理員の勤務形態:-/-
    駐車スペースあり
    エネルギー消費性能
    断熱性能
    目安光熱費
    バス・トイレ トイレ
    キッチン
    設備・サービス
    その他
    契約期間 5年 条件等
    引渡可能時期 相談 現況
    更新料 物件番号 6988181492
    情報公開日 2025年11月13日 次回更新予定日 2025年12月26日
    ケータイ用バーコード

    QRコード

    スマートフォンでこの物件を見る
    スマートフォンからもこの物件をご覧になれます。
    ※「-」と表示されている項目については、情報提供会社にご確認ください。

    この物件の周辺情報

    周辺施設 セブンイレブン入間宮ノ台店
    距離 814m
    周辺施設 安楽亭入間二本木店
    距離 286m

    クイックお問い合わせ

    ここから簡単にお問い合わせをすることができます。
    (SSLでの暗号化での送信を希望されるお客さまは こちら よりお問い合わせください)

    お問い合わせ内容(必須)
    物件のお問い合わせ理由(必須)
    お名前・ご担当者様名(必須) 姓  名 
    メールアドレス(必須)
    ※携帯電話のメールアドレスをご入力される方はこちらをご確認ください
    電話番号(必須)
    - -
    備考欄 希望条件、物件案内希望日、質問などがございましたらご記入ください。
    お問い合わせを行う前に「個人情報の取り扱いについて」を必ずお読みください。
    「個人情報の取り扱いについて」に同意いただいた場合は「上記にご同意の上 確認画面へ進む」のボタンをクリックしてください。

    個人情報の取り扱いについて

    皆さまが送付された個人情報はアットホーム(株)のサーバを経由し、お問い合わせ先の不動産会社にメールまたはFAXにて転送されるためアットホーム(株)にも保管されます。アットホーム(株)で保管された個人情報の取り扱いについては、【こちら】をご覧ください。
    また、本画面でご記入いただいた個人情報は、お問い合わせ先の不動産会社でも保管します。 お問い合わせ先の不動産会社が保管する個人情報の取り扱いについては、不動産会社に直接お問い合わせください。

    情報提供会社

    情報提供会社

    清水住宅産業(株)

    埼玉県知事免許(14)第5188号

    交通:
    西武池袋線/武蔵藤沢駅 徒歩3分
    埼玉県入間市東藤沢3丁目10-13 
    TEL:
    04-2963-1512
    FAX:
    04-2963-7272
    所属団体:
    (公社)埼玉県宅地建物取引業協会会員
    (公社)首都圏不動産公正取引協議会加盟

    取引態様:仲介

    • 会社情報
    • 00982120
    スマートフォンで
    この不動産会社を見る
    QRコード
    • お問い合わせ
    • 提携サイト等より掲載されている物件情報につきましては、不動産会社詳細情報にリンクされていないものがあります。
    • 物件に関するお問合せは、物件詳細ページの「情報提供会社」に表示されている不動産会社へ直接お願いいたします。
    • 間取図は、現況を優先させていただきます。
    • 映像は物件の一部を撮影したものです。物件の契約にあたっての最終判断はご自身の判断に基づいて行ってください。
    • 仲介手数料について仲介手数料

    アットホームは物件情報の適正化に努めております。 内容に誤りがある場合にはこちらへご連絡ください。


    物件画像: