賃貸や不動産はアットホーム-賃貸マンション・賃貸物件・不動産なら アットホーム

福井県敦賀市樋ノ水町(敦賀駅)の貸その他:物件詳細

  • 物件詳細
  • 情報の見方
  • 印刷用画面
交通
所在地
駅徒歩 賃料
管理費等
敷金/保証金
礼金
使用部分面積
坪数/坪単価
物件種目
築年月

JR北陸新幹線/敦賀

福井県敦賀市樋ノ水町

22分

22万円

なし

4ヶ月 / なし

なし

203.97m²

61.70坪/0.3566万円

貸作業所

2004年3月(築21年9ヶ月)

おすすめコメント

敦賀駅近く、北陸自動車道敦賀インターチェンジから車で5分の                   「倉庫兼作業所(40坪)付事務所(20坪)」

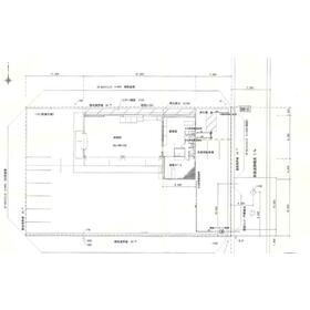
間取図

間取図

外観

外観

その他の画像
  • 外観
  • 外観
  • 室内
  • 室内
  • 室内
  • トイレ
  • トイレ
    • お問い合わせ
    交通

    JR北陸新幹線 敦賀駅 徒歩22分

    その他の交通

    ハピラインふくい 敦賀駅 徒歩27分

    所在地 福井県敦賀市樋ノ水町
    物件種目 貸作業所
    賃料 22万円 管理費等 なし
    敷金 / 保証金 4ヶ月 / なし 礼金 なし
    敷引 坪単価 0.3566万円
    保証金償却 権利金
    造作譲渡 その他一時金
    保険等    
    使用部分面積 203.97m² 坪数 61.70坪
    築年月 2004年3月(築21年9ヶ月) 階建 / 階 1階建
    駐車場 有 無料 バイク置き場
    駐輪場 土地面積 990.00m²(実測)
    接道状況 東 7.5m 公道 接面24.0m 用途地域 無指定
    間取り 建物構造 鉄骨造
    アピールポイント 北陸新幹線敦賀駅の東側(車で3分)、北陸自動車道敦賀インターチェンジ
    から車で5分の「倉庫兼作業所面積約40坪・事務所部分20坪」大型車両の出入りも可
    建物名・部屋番号 北陸新幹線 敦賀駅近くの作業所兼事務所
    リフォーム履歴
    リノベーション履歴
    特記事項 飲食店不可、駐車場3台分以上
    備考
    管理形態/管理員の勤務形態:-/-
    主要採光面:南向き
    エネルギー消費性能
    断熱性能
    目安光熱費
    バス・トイレ 男女別トイレ
    キッチン
    設備・サービス 個別空調、収納スペース、エアコン
    その他
    契約期間 10年 条件等
    引渡可能時期 即時 現況
    仲介手数料 22万円    
    更新料 なし 物件番号 6988103736
    情報公開日 2025年10月22日 次回更新予定日 2025年11月10日
    ケータイ用バーコード

    QRコード

    スマートフォンでこの物件を見る
    スマートフォンからもこの物件をご覧になれます。
    ※「-」と表示されている項目については、情報提供会社にご確認ください。

    クイックお問い合わせ

    ここから簡単にお問い合わせをすることができます。
    (SSLでの暗号化での送信を希望されるお客さまは こちら よりお問い合わせください)

    お問い合わせ内容(必須)
    物件のお問い合わせ理由(必須)
    お名前・ご担当者様名(必須) 姓  名 
    メールアドレス(必須)
    ※携帯電話のメールアドレスをご入力される方はこちらをご確認ください
    電話番号(必須)
    - -
    備考欄 希望条件、物件案内希望日、質問などがございましたらご記入ください。
    お問い合わせを行う前に「個人情報の取り扱いについて」を必ずお読みください。
    「個人情報の取り扱いについて」に同意いただいた場合は「上記にご同意の上 確認画面へ進む」のボタンをクリックしてください。

    個人情報の取り扱いについて

    皆さまが送付された個人情報はアットホーム(株)のサーバを経由し、お問い合わせ先の不動産会社にメールまたはFAXにて転送されるためアットホーム(株)にも保管されます。アットホーム(株)で保管された個人情報の取り扱いについては、【こちら】をご覧ください。
    また、本画面でご記入いただいた個人情報は、お問い合わせ先の不動産会社でも保管します。 お問い合わせ先の不動産会社が保管する個人情報の取り扱いについては、不動産会社に直接お問い合わせください。

    情報提供会社

    情報提供会社

    クラシス(株) 不動産開発部

    福井県知事免許(6)第1289号

    交通:
    ハピラインふくい/北鯖江駅
    福井県鯖江市下河端町1701 
    TEL:
    0778-54-8400
    FAX:
    0778-54-8412
    所属団体:
    (公社)全日本不動産協会会員
    北陸不動産公正取引協議会加盟

    取引態様:仲介

    • 会社情報
    • 40412170
    スマートフォンで
    この不動産会社を見る
    QRコード
    • お問い合わせ
    • 提携サイト等より掲載されている物件情報につきましては、不動産会社詳細情報にリンクされていないものがあります。
    • 物件に関するお問合せは、物件詳細ページの「情報提供会社」に表示されている不動産会社へ直接お願いいたします。
    • 間取図は、現況を優先させていただきます。
    • 映像は物件の一部を撮影したものです。物件の契約にあたっての最終判断はご自身の判断に基づいて行ってください。
    • 仲介手数料について仲介手数料

    アットホームは物件情報の適正化に努めております。 内容に誤りがある場合にはこちらへご連絡ください。


    物件画像: