賃貸や不動産はアットホーム-賃貸マンション・賃貸物件・不動産なら アットホーム

東京都西多摩郡瑞穂町大字箱根ケ崎(箱根ケ崎駅)の貸その他:物件詳細

  • 物件詳細
  • 情報の見方
  • 印刷用画面
交通
所在地
駅徒歩 賃料
管理費等
敷金/保証金
礼金
使用部分面積
坪数/坪単価
物件種目
築年月

JR八高線/箱根ケ崎

東京都西多摩郡瑞穂町大字箱根ケ崎

23分

260.04万円

3ヶ月 / なし

1ヶ月

178.71m²

54.05坪/4.8103万円

貸倉庫

2019年12月(築6年1ヶ月)

おすすめコメント  スタッフ: 吉田 正樹

国道16号に接する約591坪の鉄骨造2階建て倉庫です!大型車接車可!内覧希望などお気軽にお問い合わせください。

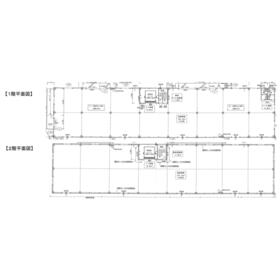
間取図

間取図

その他の画像
    • お問い合わせ
    交通

    JR八高線 箱根ケ崎駅 徒歩23分

    所在地 東京都西多摩郡瑞穂町大字箱根ケ崎
    物件種目 貸倉庫
    賃料 260.04万円 管理費等
    敷金 / 保証金 3ヶ月 / なし 礼金 1ヶ月
    敷引 坪単価 4.8103万円
    保証金償却 権利金
    造作譲渡 その他一時金
    保険等    
    使用部分面積 178.71m² 坪数 54.05坪
    築年月 2019年12月(築6年1ヶ月) 階建 / 階 2階建
    駐車場 バイク置き場
    駐輪場 土地面積
    接道状況 用途地域 工業地域
    間取り 建物構造 鉄骨造
    建物名・部屋番号 箱根ヶ崎貸倉庫
    リフォーム履歴
    リノベーション履歴
    特記事項
    備考
    管理形態/管理員の勤務形態:-/-
    荷物用エレベーター3t1基
    エネルギー消費性能
    断熱性能
    目安光熱費
    バス・トイレ
    キッチン
    設備・サービス
    その他
    契約期間 3年 条件等
    引渡可能時期 即時 現況
    更新料 なし 物件番号 6987379538
    情報公開日 2025年8月21日 次回更新予定日 2026年1月2日
    ケータイ用バーコード

    QRコード

    スマートフォンでこの物件を見る
    スマートフォンからもこの物件をご覧になれます。
    ※「-」と表示されている項目については、情報提供会社にご確認ください。

    この物件の周辺情報

    周辺施設 セブンイレブン瑞穂バイパス店
    距離 391m
    周辺施設 ワークマンプラス瑞穂店
    距離 1497m
    周辺施設 マクドナルド箱根ケ崎店
    距離 1126m
    周辺施設 エネオス瑞穂バイパスSS
    距離 347m
    周辺施設 コスモ石油セルフ&カーケアステーション瑞穂
    距離 1324m
    周辺施設 医療法人社団久遠会みずほ病院
    距離 1511m
    周辺施設 瑞穂長岡郵便局
    距離 1908m
    周辺施設 JAにしたま元狭山支店
    距離 1520m

    クイックお問い合わせ

    ここから簡単にお問い合わせをすることができます。
    (SSLでの暗号化での送信を希望されるお客さまは こちら よりお問い合わせください)

    お問い合わせ内容(必須)
    物件のお問い合わせ理由(必須)
    お名前・ご担当者様名(必須) 姓  名 
    メールアドレス(必須)
    ※携帯電話のメールアドレスをご入力される方はこちらをご確認ください
    電話番号(必須)
    - -
    備考欄 希望条件、物件案内希望日、質問などがございましたらご記入ください。
    お問い合わせを行う前に「個人情報の取り扱いについて」を必ずお読みください。
    「個人情報の取り扱いについて」に同意いただいた場合は「上記にご同意の上 確認画面へ進む」のボタンをクリックしてください。

    個人情報の取り扱いについて

    皆さまが送付された個人情報はアットホーム(株)のサーバを経由し、お問い合わせ先の不動産会社にメールまたはFAXにて転送されるためアットホーム(株)にも保管されます。アットホーム(株)で保管された個人情報の取り扱いについては、【こちら】をご覧ください。
    また、本画面でご記入いただいた個人情報は、お問い合わせ先の不動産会社でも保管します。 お問い合わせ先の不動産会社が保管する個人情報の取り扱いについては、不動産会社に直接お問い合わせください。

    情報提供会社

    情報提供会社

    (株)ウェーブ 東京支店

    国土交通大臣免許(1)第10153号

    交通:
    東京メトロ日比谷線/仲御徒町駅
    東京都台東区上野5丁目6-1 第一泉ビル2F
    TEL:
    03-5826-4466
    FAX:
    03-6803-2106
    所属団体:
    (公社)東京都宅地建物取引業協会会員
    (公社)首都圏不動産公正取引協議会加盟

    取引態様:仲介

    • 会社情報
    • 00274544
    スマートフォンで
    この不動産会社を見る
    QRコード
    • お問い合わせ
    • 提携サイト等より掲載されている物件情報につきましては、不動産会社詳細情報にリンクされていないものがあります。
    • 物件に関するお問合せは、物件詳細ページの「情報提供会社」に表示されている不動産会社へ直接お願いいたします。
    • 間取図は、現況を優先させていただきます。
    • 映像は物件の一部を撮影したものです。物件の契約にあたっての最終判断はご自身の判断に基づいて行ってください。
    • 仲介手数料について仲介手数料

    アットホームは物件情報の適正化に努めております。 内容に誤りがある場合にはこちらへご連絡ください。


    物件画像: