賃貸や不動産はアットホーム-賃貸マンション・賃貸物件・不動産なら アットホーム

富山県下新川郡入善町上野(入善駅)の貸その他:物件詳細

  • 物件詳細
  • 情報の見方
  • 印刷用画面
交通
所在地
駅徒歩 賃料
管理費等
敷金/保証金
礼金
使用部分面積
坪数/坪単価
物件種目
築年月

あいの風とやま鉄道/入善

富山県下新川郡入善町上野

1700m

18.7万円

30万円 / なし

なし

451.14m²

136.46坪/0.1371万円

貸倉庫

1972年7月(築53年10ヶ月)

おすすめコメント  スタッフ: 松井 敦史

自動車整備、塗装業や倉庫・作業所としての利用が可能です。駐車スペースは10台以上可能!

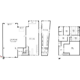
間取図

間取図

外観

外観

<
その他の画像
  • 室内
  • キッチン
  • 室内
  • 室内
  • 室内
  • 室内
  • 室内
  • 収納
  • 室内
  • トイレ
  • 室内
  • 室内
  • 室内
  • 室内
  • 室内
  • 室内
  • その他
  • 室内
  • 室内
  • 外観
>
    • お問い合わせ
    交通

    あいの風とやま鉄道 入善駅 徒歩1700m

    所在地 富山県下新川郡入善町上野
    物件種目 貸倉庫
    賃料 18.7万円 管理費等
    敷金 / 保証金 30万円 / なし 礼金 なし
    敷引 坪単価 0.1371万円
    保証金償却 権利金
    造作譲渡 その他一時金
    保険等    
    使用部分面積 451.14m² 坪数 136.46坪
    築年月 1972年7月(築53年10ヶ月) 階建 / 階 2階建
    駐車場 有 無料(空き10台)
    駐車スペース10台以上
    バイク置き場
    駐輪場 土地面積 794.00m²(公簿)
    接道状況 用途地域 無指定
    間取り 建物構造 鉄骨造
    アピールポイント R6年10月に外壁一部張増し、屋根塗装、ハウスクリーニング済です。2階は未改修で借主にてリフォーム可。
    建物名・部屋番号 入善町上野貸作業所・事務所
    リフォーム履歴 ■外装:2024年10月
    外壁、屋根
    外壁一部張増し、屋根塗装
    ※実施年月は最も古い履歴を表示
    リノベーション履歴
    特記事項 土日・祝日利用可、1フロア1テナント、角部屋、国道沿いに面する
    備考
    賃貸保証等:加入要(初回保証料:家賃等の100% 更新保証料:年10% 口座引落し手数料:330円 連帯保証人要(個人:代表者以外 法人:代表者))
    管理形態/管理員の勤務形態:-/-
    保証会社必須
    エネルギー消費性能
    断熱性能
    目安光熱費
    バス・トイレ
    キッチン
    設備・サービス エアコン2台以上、プロパンガス
    その他
    契約期間 2年 条件等
    引渡可能時期 即時 現況
    仲介手数料 不要    
    更新料 22,000円 物件番号 6983504934
    情報公開日 2025年9月12日 次回更新予定日 2026年4月16日
    ケータイ用バーコード

    QRコード

    スマートフォンでこの物件を見る
    スマートフォンからもこの物件をご覧になれます。
    ※「-」と表示されている項目については、情報提供会社にご確認ください。

    この物件の周辺情報

    周辺施設 入善ショッピングタウンきららの里
    距離 320m
    周辺施設 ローソン入善上野店
    距離 340m
    周辺施設 大阪屋ショップ入善店
    距離 650m
    周辺施設 コメリハード&グリーン入善店
    距離 640m
    周辺施設 入善町役場
    距離 740m

    クイックお問い合わせ

    ここから簡単にお問い合わせをすることができます。
    (SSLでの暗号化での送信を希望されるお客さまは こちら よりお問い合わせください)

    お問い合わせ内容(必須)
    物件のお問い合わせ理由(必須)
    お名前・ご担当者様名(必須) 姓  名 
    メールアドレス(必須)
    ※携帯電話のメールアドレスをご入力される方はこちらをご確認ください
    電話番号(必須)
    - -
    備考欄 希望条件、物件案内希望日、質問などがございましたらご記入ください。
    お問い合わせを行う前に「個人情報の取り扱いについて」を必ずお読みください。
    「個人情報の取り扱いについて」に同意いただいた場合は「上記にご同意の上 確認画面へ進む」のボタンをクリックしてください。

    個人情報の取り扱いについて

    皆さまが送付された個人情報はアットホーム(株)のサーバを経由し、お問い合わせ先の不動産会社にメールまたはFAXにて転送されるためアットホーム(株)にも保管されます。アットホーム(株)で保管された個人情報の取り扱いについては、【こちら】をご覧ください。
    また、本画面でご記入いただいた個人情報は、お問い合わせ先の不動産会社でも保管します。 お問い合わせ先の不動産会社が保管する個人情報の取り扱いについては、不動産会社に直接お問い合わせください。

    情報提供会社

    情報提供会社

    ビルト不動産 (株)ビルト

    富山県知事免許(7)第2271号

    交通:
    あいの風とやま鉄道/水橋駅 【バス】6分 芝草口 停歩1分
    富山県富山市水橋市田袋268-6 ビルトビル
    TEL:
    076-479-2111
    FAX:
    076-479-2112
    所属団体:
    (公社)全日本不動産協会会員
    北陸不動産公正取引協議会加盟

    取引態様:貸主

    • 会社情報
    • 40402175
    スマートフォンで
    この不動産会社を見る
    QRコード
    • お問い合わせ
    • 提携サイト等より掲載されている物件情報につきましては、不動産会社詳細情報にリンクされていないものがあります。
    • 物件に関するお問合せは、物件詳細ページの「情報提供会社」に表示されている不動産会社へ直接お願いいたします。
    • 間取図は、現況を優先させていただきます。
    • 映像は物件の一部を撮影したものです。物件の契約にあたっての最終判断はご自身の判断に基づいて行ってください。
    • 仲介手数料について仲介手数料

    アットホームは物件情報の適正化に努めております。 内容に誤りがある場合にはこちらへご連絡ください。


    物件画像: