賃貸や不動産はアットホーム-賃貸マンション・賃貸物件・不動産なら アットホーム

岩手県盛岡市新田町(盛岡駅)の貸その他:物件詳細

  • 物件詳細
  • 情報の見方
  • 印刷用画面
交通
所在地
駅徒歩 賃料
管理費等
敷金/保証金
礼金
使用部分面積
坪数/坪単価
物件種目
築年月

東北新幹線/盛岡

岩手県盛岡市新田町

16分

4.5万円

1ヶ月 / なし

1ヶ月

48.88m²

14.78坪/0.3044万円

貸倉庫

1971年9月(築54年4ヶ月)

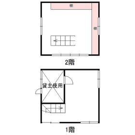
間取図

間取図

外観

外観

その他の画像
  • 室内
  • 玄関
  • 室内
  • 室内
  • 室内
    • お問い合わせ
    交通

    東北新幹線 盛岡駅 徒歩16分

    所在地 岩手県盛岡市新田町
    物件種目 貸倉庫
    賃料 4.5万円 管理費等
    敷金 / 保証金 1ヶ月 / なし 礼金 1ヶ月
    敷引 坪単価 0.3044万円
    保証金償却 権利金
    造作譲渡 その他一時金
    保険等 要 2年 19,000円 火災    
    使用部分面積 48.88m² 坪数 14.78坪
    築年月 1971年9月(築54年4ヶ月) 階建 / 階 2階建 / 1階~2階部分
    駐車場 有 6,000円/月 バイク置き場
    駐輪場 土地面積
    接道状況 用途地域
    間取り 建物構造 木造
    建物名・部屋番号 新田町貸倉庫
    リフォーム履歴
    リノベーション履歴
    特記事項
    備考
    賃貸保証等:加入要(アーク賃貸保証会社)
    管理形態/管理員の勤務形態:-/-
    保険:加入必要。
    1階19.55m2・2階29.33m2。 1階一部貸主使用。
    エネルギー消費性能
    断熱性能
    目安光熱費
    バス・トイレ
    キッチン
    設備・サービス
    その他
    契約期間 2年 条件等
    引渡可能時期 相談 現況
    更新料 物件番号 6960137807
    情報公開日 2025年2月27日 次回更新予定日 2025年12月19日
    ケータイ用バーコード

    QRコード

    スマートフォンでこの物件を見る
    スマートフォンからもこの物件をご覧になれます。
    ※「-」と表示されている項目については、情報提供会社にご確認ください。

    この物件の周辺情報

    周辺施設 マックスバリュ盛岡駅前北通店
    距離 354m
    周辺施設 セブンイレブン盛岡夕顔瀬町店
    距離 261m
    周辺施設 高松病院
    距離 1669m
    周辺施設 盛岡夕顔瀬郵便局
    距離 404m
    周辺施設 盛岡信用金庫材木町支店
    距離 887m
    周辺施設 岩手銀行盛岡駅前支店
    距離 863m
    周辺施設 盛岡市役所
    距離 2527m

    クイックお問い合わせ

    ここから簡単にお問い合わせをすることができます。
    (SSLでの暗号化での送信を希望されるお客さまは こちら よりお問い合わせください)

    お問い合わせ内容(必須)
    物件のお問い合わせ理由(必須)
    お名前・ご担当者様名(必須) 姓  名 
    メールアドレス(必須)
    ※携帯電話のメールアドレスをご入力される方はこちらをご確認ください
    電話番号(必須)
    - -
    備考欄 希望条件、物件案内希望日、質問などがございましたらご記入ください。
    お問い合わせを行う前に「個人情報の取り扱いについて」を必ずお読みください。
    「個人情報の取り扱いについて」に同意いただいた場合は「上記にご同意の上 確認画面へ進む」のボタンをクリックしてください。

    個人情報の取り扱いについて

    皆さまが送付された個人情報はアットホーム(株)のサーバを経由し、お問い合わせ先の不動産会社にメールまたはFAXにて転送されるためアットホーム(株)にも保管されます。アットホーム(株)で保管された個人情報の取り扱いについては、【こちら】をご覧ください。
    また、本画面でご記入いただいた個人情報は、お問い合わせ先の不動産会社でも保管します。 お問い合わせ先の不動産会社が保管する個人情報の取り扱いについては、不動産会社に直接お問い合わせください。

    情報提供会社

    情報提供会社

    (株)あすなろ不動産

    岩手県知事免許(4)第2370号

    交通:
    東北新幹線/盛岡駅
    岩手県盛岡市高松2丁目3-5 1F 
    TEL:
    019-681-1217
    FAX:
    019-681-1218
    所属団体:
    (公社)全日本不動産協会会員
    東北地区不動産公正取引協議会加盟

    取引態様:仲介

    • 会社情報
    • 20002610
    スマートフォンで
    この不動産会社を見る
    QRコード
    • お問い合わせ
    • 提携サイト等より掲載されている物件情報につきましては、不動産会社詳細情報にリンクされていないものがあります。
    • 物件に関するお問合せは、物件詳細ページの「情報提供会社」に表示されている不動産会社へ直接お願いいたします。
    • 間取図は、現況を優先させていただきます。
    • 映像は物件の一部を撮影したものです。物件の契約にあたっての最終判断はご自身の判断に基づいて行ってください。
    • 仲介手数料について仲介手数料

    アットホームは物件情報の適正化に努めております。 内容に誤りがある場合にはこちらへご連絡ください。


    物件画像: