賃貸や不動産はアットホーム-賃貸マンション・賃貸物件・不動産なら アットホーム

鹿児島県鹿児島市伊敷4丁目の貸その他:物件詳細

  • 物件詳細
  • 情報の見方
  • 印刷用画面
交通
所在地
駅徒歩 賃料
管理費等
敷金/保証金
礼金
使用部分面積
坪数/坪単価
物件種目
築年月

【バス】伊敷支所前 停歩15分 新着

鹿児島県鹿児島市伊敷4丁目


10万円

3ヶ月 / なし

なし

148.50m²

44.92坪/0.2227万円

貸倉庫

1991年5月(築34年10ヶ月)

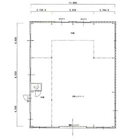
間取図

間取図

1階平面図 中二階有

駐車場無(全面スペース荷積卸時のみ使用可)

<
その他の画像
  • その他
>
    • お問い合わせ
    交通

    【バス】 伊敷支所前 停歩15分

    所在地 鹿児島県鹿児島市伊敷4丁目
    物件種目 貸倉庫
    賃料 10万円 管理費等
    敷金 / 保証金 3ヶ月 / なし 礼金 なし
    敷引 坪単価 0.2227万円
    保証金償却 権利金
    造作譲渡 その他一時金
    保険等 要 家財    
    使用部分面積 148.50m² 坪数 44.92坪
    築年月 1991年5月(築34年10ヶ月) 階建 / 階 1階建
    駐車場 バイク置き場
    駐輪場 土地面積 552.80m²(公簿)
    接道状況 用途地域
    間取り 建物構造 鉄骨造
    建物名・部屋番号  
    リフォーム履歴
    リノベーション履歴
    特記事項
    備考
    賃貸保証等:加入要(アルファー)
    管理形態/管理員の勤務形態:-/-
    倉庫の中まで10t車入る
    中2階あり.トイレ.流し台付き.
    エネルギー消費性能
    断熱性能
    目安光熱費
    バス・トイレ
    キッチン
    設備・サービス
    その他
    契約期間 1年 条件等
    引渡可能時期 相談 現況
    更新料 物件番号 5000416101
    情報公開日 2026年2月13日 次回更新予定日 2026年2月27日
    ケータイ用バーコード

    QRコード

    スマートフォンでこの物件を見る
    スマートフォンからもこの物件をご覧になれます。
    ※「-」と表示されている項目については、情報提供会社にご確認ください。

    クイックお問い合わせ

    ここから簡単にお問い合わせをすることができます。
    (SSLでの暗号化での送信を希望されるお客さまは こちら よりお問い合わせください)

    お問い合わせ内容(必須)
    物件のお問い合わせ理由(必須)
    お名前・ご担当者様名(必須) 姓  名 
    メールアドレス(必須)
    ※携帯電話のメールアドレスをご入力される方はこちらをご確認ください
    電話番号(必須)
    - -
    備考欄 希望条件、物件案内希望日、質問などがございましたらご記入ください。
    お問い合わせを行う前に「個人情報の取り扱いについて」を必ずお読みください。
    「個人情報の取り扱いについて」に同意いただいた場合は「上記にご同意の上 確認画面へ進む」のボタンをクリックしてください。

    個人情報の取り扱いについて

    皆さまが送付された個人情報はアットホーム(株)のサーバを経由し、お問い合わせ先の不動産会社にメールまたはFAXにて転送されるためアットホーム(株)にも保管されます。アットホーム(株)で保管された個人情報の取り扱いについては、【こちら】をご覧ください。
    また、本画面でご記入いただいた個人情報は、お問い合わせ先の不動産会社でも保管します。 お問い合わせ先の不動産会社が保管する個人情報の取り扱いについては、不動産会社に直接お問い合わせください。

    情報提供会社

    伊敷商事

    鹿児島県知事免許(3)第5766号

    交通:
    【バス】 玉江小前 停歩1分
    鹿児島県鹿児島市下伊敷1丁目37-12 
    TEL:
    099-220-1500
    FAX:
    099-220-6911
    所属団体:
    (公社)鹿児島県宅地建物取引業協会会員
    (一社)九州不動産公正取引協議会加盟

    取引態様:仲介

    • 80501219
    • お問い合わせ
    • 提携サイト等より掲載されている物件情報につきましては、不動産会社詳細情報にリンクされていないものがあります。
    • 物件に関するお問合せは、物件詳細ページの「情報提供会社」に表示されている不動産会社へ直接お願いいたします。
    • 間取図は、現況を優先させていただきます。
    • 映像は物件の一部を撮影したものです。物件の契約にあたっての最終判断はご自身の判断に基づいて行ってください。
    • 仲介手数料について仲介手数料

    アットホームは物件情報の適正化に努めております。 内容に誤りがある場合にはこちらへご連絡ください。


    物件画像: