賃貸や不動産はアットホーム-賃貸マンション・賃貸物件・不動産なら アットホーム

愛知県名古屋市中区金山5丁目(金山駅)の貸その他:物件詳細

  • 物件詳細
  • 情報の見方
  • 印刷用画面
交通
所在地
駅徒歩 賃料
管理費等
敷金/保証金
礼金
使用部分面積
坪数/坪単価
物件種目
築年月

JR中央線/金山

愛知県名古屋市中区金山5丁目

10分

269.5万円

なし

なし / 2,450万円

なし

506.60m²

153.24坪/1.7587万円

貸倉庫

2026年3月(新築)

おすすめコメント

事務所付き倉庫で駐車場9台無料で使えます。

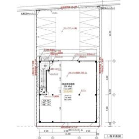
間取図

間取図

外観

外観

その他の画像
  • 間取図
  • その他
  • その他
  • その他
  • その他
    • お問い合わせ
    交通

    JR中央線 金山駅 徒歩10分

    その他の交通

    名鉄名古屋本線 金山駅 徒歩10分

    名古屋市名城線 金山駅 徒歩10分

    所在地 愛知県名古屋市中区金山5丁目
    物件種目 貸倉庫
    賃料 269.5万円 管理費等 なし
    敷金 / 保証金 なし / 2,450万円 礼金 なし
    敷引 坪単価 1.7587万円
    保証金償却 解約時808.50万円 権利金
    造作譲渡 その他一時金 なし
    保険等    
    使用部分面積 506.60m² 坪数 153.24坪
    築年月 2026年3月(新築) 階建 / 階 2階建
    駐車場 有 無料 バイク置き場
    駐輪場 土地面積
    接道状況 用途地域
    間取り 建物構造 鉄骨造
    建物名・部屋番号 JM165 1棟
    リフォーム履歴
    リノベーション履歴
    特記事項 IT重説対応物件
    備考
    管理形態/管理員の勤務形態:-/-
    IT重説対応物件
    駐車場9台付き/エアコン/オートロック/TVインターホン/OAフロア/複層ガラス・ペアガラス/男女別トイレ
    エネルギー消費性能
    断熱性能
    目安光熱費
    バス・トイレ トイレ2ヶ所
    キッチン
    設備・サービス オートロック
    その他
    契約期間 2年 条件等
    引渡可能時期 2026年4月上旬予定 現況 使用中
    更新料 物件番号 1127511805
    情報公開日 2025年10月29日 次回更新予定日 2025年11月14日
    ケータイ用バーコード

    QRコード

    スマートフォンでこの物件を見る
    スマートフォンからもこの物件をご覧になれます。
    ※「-」と表示されている項目については、情報提供会社にご確認ください。

    クイックお問い合わせ

    ここから簡単にお問い合わせをすることができます。
    (SSLでの暗号化での送信を希望されるお客さまは こちら よりお問い合わせください)

    お問い合わせ内容(必須)
    物件のお問い合わせ理由(必須)
    お名前・ご担当者様名(必須) 姓  名 
    メールアドレス(必須)
    ※携帯電話のメールアドレスをご入力される方はこちらをご確認ください
    電話番号(必須)
    - -
    備考欄 希望条件、物件案内希望日、質問などがございましたらご記入ください。
    お問い合わせを行う前に「個人情報の取り扱いについて」を必ずお読みください。
    「個人情報の取り扱いについて」に同意いただいた場合は「上記にご同意の上 確認画面へ進む」のボタンをクリックしてください。

    個人情報の取り扱いについて

    皆さまが送付された個人情報はアットホーム(株)のサーバを経由し、お問い合わせ先の不動産会社にメールまたはFAXにて転送されるためアットホーム(株)にも保管されます。アットホーム(株)で保管された個人情報の取り扱いについては、【こちら】をご覧ください。
    また、本画面でご記入いただいた個人情報は、お問い合わせ先の不動産会社でも保管します。 お問い合わせ先の不動産会社が保管する個人情報の取り扱いについては、不動産会社に直接お問い合わせください。

    情報提供会社

    情報提供会社

    テナントメイク(株)

    愛知県知事免許(1)第26058号

    交通:
    名古屋市名城線/久屋大通駅 徒歩3分
    愛知県名古屋市中区丸の内3丁目6-17 K’sBEEビル2F
    TEL:
    052-990-6263
    FAX:
    052-990-6264
    所属団体:
    (公社)愛知県宅地建物取引業協会会員
    東海不動産公正取引協議会加盟

    取引態様:仲介

    • 会社情報
    • 40412377
    スマートフォンで
    この不動産会社を見る
    QRコード
    • お問い合わせ
    • 提携サイト等より掲載されている物件情報につきましては、不動産会社詳細情報にリンクされていないものがあります。
    • 物件に関するお問合せは、物件詳細ページの「情報提供会社」に表示されている不動産会社へ直接お願いいたします。
    • 間取図は、現況を優先させていただきます。
    • 映像は物件の一部を撮影したものです。物件の契約にあたっての最終判断はご自身の判断に基づいて行ってください。
    • 仲介手数料について仲介手数料

    アットホームは物件情報の適正化に努めております。 内容に誤りがある場合にはこちらへご連絡ください。


    物件画像: