賃貸や不動産はアットホーム-賃貸マンション・賃貸物件・不動産なら アットホーム

東京都渋谷区恵比寿西1丁目(恵比寿駅)の貸事務所:物件詳細

  • 物件詳細
  • 情報の見方
  • 印刷用画面
交通
所在地
駅徒歩 賃料
管理費等
敷金/保証金
礼金
使用部分面積
坪数/坪単価
物件種目
築年月

JR山手線/恵比寿 新着

東京都渋谷区恵比寿西1丁目

5分

96.03万円

なし

なし / 8ヶ月

1ヶ月

125.45m²

37.94坪/2.5306万円

貸事務所

1988年8月(築37年9ヶ月)

おすすめコメント

恵比寿駅徒歩5分のオフィスビル、約38坪、オフィスのみ募集。

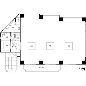
間取図

間取図

外観

外観

<
その他の画像
  • 室内
  • 室内
  • 室内
  • 室内
  • トイレ
  • トイレ
  • 洗面
  • キッチン
  • その他
  • 共有部分
  • 共有部分
  • エントランス
>
    • お問い合わせ
    交通

    JR山手線 恵比寿駅 徒歩5分

    その他の交通

    東急東横線 代官山駅 徒歩6分

    東急東横線 中目黒駅 徒歩13分

    所在地 東京都渋谷区恵比寿西1丁目
    物件種目 貸事務所
    賃料 96.03万円 管理費等 なし
    敷金 / 保証金 なし / 8ヶ月 礼金 1ヶ月
    敷引 坪単価 2.5306万円
    保証金償却 解約時20% 権利金
    造作譲渡 その他一時金 なし
    維持費等 保険等 要 2年 19,700円
    使用部分面積 125.45m² 坪数 37.94坪
    築年月 1988年8月(築37年9ヶ月) 階建 / 階 10階建 / 9階
    駐車場 バイク置き場
    駐輪場 土地面積
    接道状況 用途地域 商業地域
    間取り 建物構造 SRC
    アピールポイント 恵比寿駅徒歩5分のオフィスビル、約38坪、オフィスのみ募集。
    建物名・部屋番号 アームズワン 9F
    リフォーム履歴
    リノベーション履歴
    特記事項 土曜日利用可、飲食店不可、1フロア1テナント、天井高2.5M以上、保証人不要
    備考
    賃貸保証等:加入要(賃料の1ヶ月分相当額、更新料負担有)
    管理形態/管理員の勤務形態:-/-
    他所在地:住居表示/恵比寿西1-18-4
    主要採光面:西向き
    エネルギー消費性能
    断熱性能
    目安光熱費
    バス・トイレ 専有部分に男女別トイレあり
    キッチン
    設備・サービス 個別空調、エアコン2台以上、給湯、動力あり、ビルトインエアコン、エアコン
    その他 エレベーター
    契約期間 2年 条件等
    引渡可能時期 即時 現況
    仲介手数料 1ヶ月    
    更新料 新賃料 1ヶ月 物件番号 6990283622
    情報公開日 2026年4月10日 次回更新予定日 2026年4月24日
    ケータイ用バーコード

    QRコード

    スマートフォンでこの物件を見る
    スマートフォンからもこの物件をご覧になれます。
    ※「-」と表示されている項目については、情報提供会社にご確認ください。

    この物件の周辺情報

    周辺施設 ピーコックストア恵比寿店
    距離 151m
    周辺施設 KINOKUNIYA entree恵比寿駅店
    距離 299m
    周辺施設 ローソン恵比寿西一丁目店
    距離 8m
    周辺施設 ファミリーマート恵比寿神社前店
    距離 152m
    周辺施設 ダイソーピーコックストア恵比寿店
    距離 148m
    周辺施設 ココカラファイン恵比寿店
    距離 240m
    周辺施設 恵比寿駅前郵便局
    距離 178m
    周辺施設 三菱UFJ銀行恵比寿支店
    距離 185m

    クイックお問い合わせ

    ここから簡単にお問い合わせをすることができます。
    (SSLでの暗号化での送信を希望されるお客さまは こちら よりお問い合わせください)

    お問い合わせ内容(必須)
    物件のお問い合わせ理由(必須)
    お名前・ご担当者様名(必須) 姓  名 
    メールアドレス(必須)
    ※携帯電話のメールアドレスをご入力される方はこちらをご確認ください
    電話番号(必須)
    - -
    備考欄 希望条件、物件案内希望日、質問などがございましたらご記入ください。
    お問い合わせを行う前に「個人情報の取り扱いについて」を必ずお読みください。
    「個人情報の取り扱いについて」に同意いただいた場合は「上記にご同意の上 確認画面へ進む」のボタンをクリックしてください。

    個人情報の取り扱いについて

    皆さまが送付された個人情報はアットホーム(株)のサーバを経由し、お問い合わせ先の不動産会社にメールまたはFAXにて転送されるためアットホーム(株)にも保管されます。アットホーム(株)で保管された個人情報の取り扱いについては、【こちら】をご覧ください。
    また、本画面でご記入いただいた個人情報は、お問い合わせ先の不動産会社でも保管します。 お問い合わせ先の不動産会社が保管する個人情報の取り扱いについては、不動産会社に直接お問い合わせください。

    情報提供会社

    情報提供会社

    (株)TFC

    国土交通大臣免許(1)第10868号

    交通:
    JR山手線/新宿駅 徒歩3分
    東京都新宿区西新宿7丁目4-4 武蔵ビル7F
    TEL:
    03-6826-7602
    FAX:
    03-5332-3035
    所属団体:
    (公社)東京都宅地建物取引業協会会員
    (公社)首都圏不動産公正取引協議会加盟

    取引態様:仲介

    • 会社情報
    • 00018342
    スマートフォンで
    この不動産会社を見る
    QRコード
    • お問い合わせ
    • 提携サイト等より掲載されている物件情報につきましては、不動産会社詳細情報にリンクされていないものがあります。
    • 物件に関するお問合せは、物件詳細ページの「情報提供会社」に表示されている不動産会社へ直接お願いいたします。
    • 間取図は、現況を優先させていただきます。
    • 映像は物件の一部を撮影したものです。物件の契約にあたっての最終判断はご自身の判断に基づいて行ってください。
    • 仲介手数料について仲介手数料

    アットホームは物件情報の適正化に努めております。 内容に誤りがある場合にはこちらへご連絡ください。


    物件画像: