賃貸や不動産はアットホーム-賃貸マンション・賃貸物件・不動産なら アットホーム

千葉県船橋市前原西2丁目(津田沼駅)の貸事務所:物件詳細

  • 物件詳細
  • 情報の見方
  • 印刷用画面
交通
所在地
駅徒歩 賃料
管理費等
敷金/保証金
礼金
使用部分面積
坪数/坪単価
物件種目
築年月

JR総武本線/津田沼 新着

千葉県船橋市前原西2丁目

1分

要確認

要確認

74.94m²

22.66坪/要確認

貸事務所

1982年4月(築44年1ヶ月)

おすすめコメント  スタッフ: 佐古康郎

☆JR津田沼駅北口徒歩1分の好立地!1階にみずほ銀行、マクドナルド。北口デッキからの看板の視認性良!防犯充実(防犯カメラ付エレベーター、ALSOK)☆ロータリに面してます

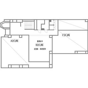
間取図

間取図

外観

外観

<
その他の画像
  • エントランス
  • 共有部分
  • 販売店
  • 飲食店
  • ショッピング施設
  • 大学
  • 病院
  • 郵便局
  • 銀行
  • 病院
>
    • お問い合わせ
    交通

    JR総武本線 津田沼駅 徒歩1分

    その他の交通

    京成松戸線 新津田沼駅 徒歩4分

    京成松戸線 京成津田沼駅 徒歩15分

    所在地 千葉県船橋市前原西2丁目
    物件種目 貸事務所
    賃料 要確認 管理費等 要確認
    敷金 / 保証金 要確認 礼金 要確認
    敷引 要確認 坪単価 要確認
    保証金償却 要確認 権利金
    造作譲渡 その他一時金
    維持費等 看板料:41,800円/月、共益費:79,763円/月 保険等
    使用部分面積 74.94m² 坪数 22.66坪
    築年月 1982年4月(築44年1ヶ月) 階建 / 階 地上7階地下1階建 / 6階
    駐車場 近有 22,000円/月 バイク置き場
    駐輪場 土地面積
    接道状況 南東 ・ 南西 ・ 二方道路 用途地域 商業地域
    間取り 建物構造 SRC
    アピールポイント ◇JR津田沼駅北口徒歩1分、1階はみずほ銀行とマクドナルド
    ◇看板の視認性良好
    ◇防犯カメラ付きのエレベーター、機械警備(ALSOK)
    ■自動ドア、照明機器等専用使用物は賃借人による管理責任
    ■エアコンは残置物(製品保証無し)が2台
    ■消費者金融不可、風俗店不可
    ■営業可能時間6:00~24:00
    ■保証金10か月分(解約時償却10%~20%)
    ■礼金1か月分(税別)
    ■専有面積:63.28㎡ 契約面積74.94㎡
    賃料は弊社にお問い合わせください
    建物名・部屋番号 津田沼パスタビル 6階-B
    リフォーム履歴
    リノベーション履歴
    特記事項 飲食店不可、24時間セキュリティー
    備考
    賃貸保証等:加入要(保証会社:フォーシーズ 初回保証料:原則月額賃料等の100% 年間保証料:10,000円より月額賃料等の200%(年間滞納回数による))
    管理形態/管理員の勤務形態:-/-
    ◇JR津田沼駅北口徒歩1分、1階はみずほ銀行とマクドナルド
    ◇ロータリーに面し看板の視認性良好
    ◇防犯カメラ付きのエレベーター、機械警備(ALSOK)
    ■自動ドア、照明機器等専用使用物は賃借人による管理責任
    ■エアコンは残置物(製品保証無し)が2台
    ■消費者金融不可、風俗店不可
    ■営業可能時間6:00~24:00
    ■保証金10か月分(解約時償却10%~20%)
    ■礼金1か月分(税別)
    ■専有面積:63.28㎡ 契約面積74.94㎡
    賃料は弊社にお問い合わせください
    エネルギー消費性能
    断熱性能
    目安光熱費
    バス・トイレ 共用部分にトイレあり
    キッチン
    設備・サービス 防犯カメラ、エアコン、暖房、冷房
    その他 エレベーター
    契約期間 4年 条件等 定期借家定期借家
    引渡可能時期 2026年10月上旬予定 現況 使用中
    仲介手数料 1.1ヶ月    
    更新料 要確認 物件番号 6990273758
    情報公開日 2026年4月10日 次回更新予定日 2026年4月24日
    ケータイ用バーコード

    QRコード

    スマートフォンでこの物件を見る
    スマートフォンからもこの物件をご覧になれます。
    ※「-」と表示されている項目については、情報提供会社にご確認ください。

    この物件の周辺情報

    周辺施設 ココカラファイン津田沼駅前店
    距離 153m
    周辺施設 マクドナルド津田沼駅前店
    距離 1m
    周辺施設 津田沼ビート(Viit)
    距離 124m
    周辺施設 私立千葉工業大学津田沼キャンパス
    距離 329m
    周辺施設 医療法人社団睦会いけだ病院
    距離 518m
    周辺施設 津田沼郵便局
    距離 209m
    周辺施設 みずほ銀行津田沼支店
    距離 1m
    周辺施設 医療法人社団睦会いけだ病院
    距離 584m

    クイックお問い合わせ

    ここから簡単にお問い合わせをすることができます。
    (SSLでの暗号化での送信を希望されるお客さまは こちら よりお問い合わせください)

    お問い合わせ内容(必須)
    物件のお問い合わせ理由(必須)
    お名前・ご担当者様名(必須) 姓  名 
    メールアドレス(必須)
    ※携帯電話のメールアドレスをご入力される方はこちらをご確認ください
    電話番号(必須)
    - -
    備考欄 希望条件、物件案内希望日、質問などがございましたらご記入ください。
    お問い合わせを行う前に「個人情報の取り扱いについて」を必ずお読みください。
    「個人情報の取り扱いについて」に同意いただいた場合は「上記にご同意の上 確認画面へ進む」のボタンをクリックしてください。

    個人情報の取り扱いについて

    皆さまが送付された個人情報はアットホーム(株)のサーバを経由し、お問い合わせ先の不動産会社にメールまたはFAXにて転送されるためアットホーム(株)にも保管されます。アットホーム(株)で保管された個人情報の取り扱いについては、【こちら】をご覧ください。
    また、本画面でご記入いただいた個人情報は、お問い合わせ先の不動産会社でも保管します。 お問い合わせ先の不動産会社が保管する個人情報の取り扱いについては、不動産会社に直接お問い合わせください。

    情報提供会社

    情報提供会社

    (株)ハウスエージェント

    千葉県知事免許(2)第17228号

    交通:
    JR総武本線/津田沼駅 徒歩1分
    千葉県船橋市前原西2丁目14-1-712 
    TEL:
    047-411-9200
    FAX:
    047-411-9034
    所属団体:
    (公社)全日本不動産協会会員
    (公社)首都圏不動産公正取引協議会加盟

    取引態様:仲介

    • 会社情報
    • 00263463
    スマートフォンで
    この不動産会社を見る
    QRコード
    • お問い合わせ
    • 提携サイト等より掲載されている物件情報につきましては、不動産会社詳細情報にリンクされていないものがあります。
    • 物件に関するお問合せは、物件詳細ページの「情報提供会社」に表示されている不動産会社へ直接お願いいたします。
    • 間取図は、現況を優先させていただきます。
    • 映像は物件の一部を撮影したものです。物件の契約にあたっての最終判断はご自身の判断に基づいて行ってください。
    • 仲介手数料について仲介手数料

    アットホームは物件情報の適正化に努めております。 内容に誤りがある場合にはこちらへご連絡ください。


    物件画像: