賃貸や不動産はアットホーム-賃貸マンション・賃貸物件・不動産なら アットホーム

千葉県我孫子市柴崎台1丁目(天王台駅)の貸事務所:物件詳細

  • 物件詳細
  • 情報の見方
  • 印刷用画面
交通
所在地
駅徒歩 賃料
管理費等
敷金/保証金
礼金
使用部分面積
坪数/坪単価
物件種目
築年月

JR千代田・常磐緩行線/天王台 新着

千葉県我孫子市柴崎台1丁目

2分

11.22万円

8ヶ月 / なし

なし

56.20m²

17.00坪/0.66万円

貸事務所

1984年11月(築41年6ヶ月)

おすすめコメント

天王台駅徒歩2分の好立地。駅近物件!くすのき通りに面した視認性良好な建物です。事務所にお勧めの物件。個別空調!角部屋の明るいオフィス!天井高2.4mの開放感ある室内です。お気軽にお問い合わせ下さい。

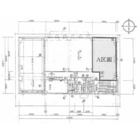
間取図

間取図

その他の画像
    • お問い合わせ
    交通

    JR千代田・常磐緩行線 天王台駅 徒歩2分

    その他の交通

    JR常磐線 天王台駅 徒歩2分

    JR成田線 東我孫子駅 徒歩16分

    所在地 千葉県我孫子市柴崎台1丁目
    物件種目 貸事務所
    賃料 11.22万円 管理費等
    敷金 / 保証金 8ヶ月 / なし 礼金 なし
    敷引 坪単価 0.66万円
    保証金償却 権利金
    造作譲渡 その他一時金
    維持費等 保険等 要 2年
    使用部分面積 56.20m² 坪数 17.00坪
    築年月 1984年11月(築41年6ヶ月) 階建 / 階 3階建 / 3階
    駐車場 バイク置き場
    駐輪場 土地面積
    接道状況 用途地域
    間取り 建物構造 RC
    アピールポイント 【物件探しをお手伝い致します】

    「貴高不動産と検索して下さい」
    ホームページ「テナント探しのご依頼」よりお問い合わせいただければ、弊社スタッフよりご希望の条件に合わせてご紹介させていただきますので、お気軽にお問い合わせ下さい。

    【テナント専門、管理物件多数】

    貴高(キダカ)不動産はテナント専門の不動産会社です。
    数多くある自社管理物件、直接オーナー様とご相談しますのでお任せ下さい!

    【事務所・店舗の増店をお考えの方】

    事務所・店舗等の事業用不動産に強い貴高不動産なら、未公開情報や新着情報をたくさんご紹介致します。

    事業用不動産はまさにタイミングが重要です!

    希望条件やご予算等をお知らせいただければ、ご希望に合う情報をご紹介させて頂きます。

    【お気軽にお問合せ下さい】

    メールアドレスや条件だけでもお問合せくだされば、定期的に新着物件のご案内をお送りしてます。 

    【LINE問合せも可能です】

    ID:@125hwadk
    こちらで検索してください。

    電話に出られない場合がございますので、
    その際はお問い合わせかLINEにてご連絡いただけると早めに対応させていただきます。
    建物名・部屋番号 3階A区画
    リフォーム履歴
    リノベーション履歴
    特記事項 土曜日利用可、土日・祝日利用可、最上階
    備考
    賃貸保証等:加入要(初回月額総額賃料等の100%、以降1年毎に月額総額賃料の10%の継続保証料を要す。)
    管理形態/管理員の勤務形態:-/-
    エネルギー消費性能
    断熱性能
    目安光熱費
    バス・トイレ 共用部分に男女別トイレあり
    キッチン
    設備・サービス
    その他
    契約期間 2年 条件等
    引渡可能時期 相談 現況
    仲介手数料 1.1ヶ月    
    更新料 新賃料 1ヶ月 物件番号 6990238873
    情報公開日 2026年4月7日 次回更新予定日 2026年4月21日
    ケータイ用バーコード

    QRコード

    スマートフォンでこの物件を見る
    スマートフォンからもこの物件をご覧になれます。
    ※「-」と表示されている項目については、情報提供会社にご確認ください。

    この物件の周辺情報

    周辺施設 おっ母さん食品館天王台店
    距離 98m
    周辺施設 おっ母さん食品館我孫子店
    距離 407m
    周辺施設 ヤオコー天王台店
    距離 462m
    周辺施設 マルエツ天王台店
    距離 607m
    周辺施設 業務スーパー天王台店
    距離 623m
    周辺施設 ファミリーマート天王台駅柴崎台店
    距離 291m
    周辺施設 ローソン天王台駅前通店
    距離 180m
    周辺施設 ファミリーマート天王台駅南口店
    距離 263m

    クイックお問い合わせ

    ここから簡単にお問い合わせをすることができます。
    (SSLでの暗号化での送信を希望されるお客さまは こちら よりお問い合わせください)

    お問い合わせ内容(必須)
    物件のお問い合わせ理由(必須)
    お名前・ご担当者様名(必須) 姓  名 
    メールアドレス(必須)
    ※携帯電話のメールアドレスをご入力される方はこちらをご確認ください
    電話番号(必須)
    - -
    備考欄 希望条件、物件案内希望日、質問などがございましたらご記入ください。
    お問い合わせを行う前に「個人情報の取り扱いについて」を必ずお読みください。
    「個人情報の取り扱いについて」に同意いただいた場合は「上記にご同意の上 確認画面へ進む」のボタンをクリックしてください。

    個人情報の取り扱いについて

    皆さまが送付された個人情報はアットホーム(株)のサーバを経由し、お問い合わせ先の不動産会社にメールまたはFAXにて転送されるためアットホーム(株)にも保管されます。アットホーム(株)で保管された個人情報の取り扱いについては、【こちら】をご覧ください。
    また、本画面でご記入いただいた個人情報は、お問い合わせ先の不動産会社でも保管します。 お問い合わせ先の不動産会社が保管する個人情報の取り扱いについては、不動産会社に直接お問い合わせください。

    情報提供会社

    情報提供会社

    (株)貴高不動産

    東京都知事免許(2)第106889号

    交通:
    東京メトロ東西線/葛西駅 徒歩2分
    東京都江戸川区中葛西5丁目32-7 共立ビル 501号室
    TEL:
    03-6456-0447
    FAX:
    03-6456-0448
    所属団体:
    (公社)全日本不動産協会会員
    (公社)首都圏不動産公正取引協議会加盟

    取引態様:仲介

    • 会社情報
    • 00271178
    スマートフォンで
    この不動産会社を見る
    QRコード
    • お問い合わせ
    • 提携サイト等より掲載されている物件情報につきましては、不動産会社詳細情報にリンクされていないものがあります。
    • 物件に関するお問合せは、物件詳細ページの「情報提供会社」に表示されている不動産会社へ直接お願いいたします。
    • 間取図は、現況を優先させていただきます。
    • 映像は物件の一部を撮影したものです。物件の契約にあたっての最終判断はご自身の判断に基づいて行ってください。
    • 仲介手数料について仲介手数料

    アットホームは物件情報の適正化に努めております。 内容に誤りがある場合にはこちらへご連絡ください。


    物件画像: