賃貸や不動産はアットホーム-賃貸マンション・賃貸物件・不動産なら アットホーム

静岡県浜松市中央区鍛冶町(浜松駅)の貸事務所:物件詳細

  • 物件詳細
  • 情報の見方
  • 印刷用画面
交通
所在地
駅徒歩 賃料
管理費等
敷金/保証金
礼金
使用部分面積
坪数/坪単価
物件種目
築年月

東海道本線/浜松

静岡県浜松市中央区鍛冶町

7分

51.9233万円

12ヶ月 / なし

なし

120.05m²

36.31坪/1.4299万円

貸事務所

1993年1月(築33年4ヶ月)

おすすめコメント  スタッフ: 渥美嘉英

浜松駅徒歩圏内の好立地にある貸事務所物件。オフィスや各種事業所に最適。周辺には商業施設も充実しており、働きやすい環境が整っています。

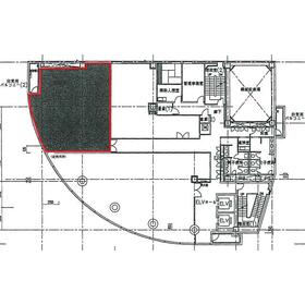
間取図

間取図

外観

外観

  • お問い合わせ
交通

東海道本線 浜松駅 徒歩7分

所在地 静岡県浜松市中央区鍛冶町
物件種目 貸事務所
賃料 51.9233万円 管理費等
敷金 / 保証金 12ヶ月 / なし 礼金 なし
敷引 坪単価 1.4299万円
保証金償却 権利金
造作譲渡 その他一時金
維持費等 保険等
使用部分面積 120.05m² 坪数 36.31坪
築年月 1993年1月(築33年4ヶ月) 階建 / 階 8階建 / 8階
駐車場 有 33,000円/月 バイク置き場
駐輪場 土地面積
接道状況 用途地域 商業地域
間取り 建物構造 SRC
建物名・部屋番号  
リフォーム履歴
リノベーション履歴
特記事項 最上階
備考
管理形態/管理員の勤務形態:-/-
EV2基 OAフロア 日中管理員・24H機械警備
防犯カメラ、自動販売機、駐輪所 共用部分に男女別トイレあり 
※共益費は賃料に含む(税込み)
※火災保険加入必須
エネルギー消費性能
断熱性能
目安光熱費
バス・トイレ
キッチン
設備・サービス エアコン
その他
契約期間 3年 条件等
引渡可能時期 相談 現況
仲介手数料 1ヶ月    
更新料 物件番号 6990180764
情報公開日 2026年4月3日 次回更新予定日 2026年4月23日
ケータイ用バーコード

QRコード

スマートフォンでこの物件を見る
スマートフォンからもこの物件をご覧になれます。
※「-」と表示されている項目については、情報提供会社にご確認ください。

この物件の周辺情報

周辺施設 ザザシティ浜松中央館
距離 283m
周辺施設 ローソン浜松遠鉄田町ビル店
距離 50m
周辺施設 すき家浜松鍛冶町店
距離 173m
周辺施設 マツモトキヨシ浜松駅前店
距離 216m
周辺施設 JA静岡厚生連遠州病院
距離 950m
周辺施設 浜松郵便局
距離 74m
周辺施設 ゆうちょ銀行浜松店
距離 74m
周辺施設 TKパーキング田町
距離 50m

クイックお問い合わせ

ここから簡単にお問い合わせをすることができます。
(SSLでの暗号化での送信を希望されるお客さまは こちら よりお問い合わせください)

お問い合わせ内容(必須)
物件のお問い合わせ理由(必須)
お名前・ご担当者様名(必須) 姓  名 
メールアドレス(必須)
※携帯電話のメールアドレスをご入力される方はこちらをご確認ください
電話番号(必須)
- -
備考欄 希望条件、物件案内希望日、質問などがございましたらご記入ください。
お問い合わせを行う前に「個人情報の取り扱いについて」を必ずお読みください。
「個人情報の取り扱いについて」に同意いただいた場合は「上記にご同意の上 確認画面へ進む」のボタンをクリックしてください。

個人情報の取り扱いについて

皆さまが送付された個人情報はアットホーム(株)のサーバを経由し、お問い合わせ先の不動産会社にメールまたはFAXにて転送されるためアットホーム(株)にも保管されます。アットホーム(株)で保管された個人情報の取り扱いについては、【こちら】をご覧ください。
また、本画面でご記入いただいた個人情報は、お問い合わせ先の不動産会社でも保管します。 お問い合わせ先の不動産会社が保管する個人情報の取り扱いについては、不動産会社に直接お問い合わせください。

情報提供会社

情報提供会社

(株)マストレ企画営業所

静岡県知事免許(13)第4034号

交通:
東海道本線/高塚駅 徒歩25分
静岡県浜松市中央区入野町20020-10 
TEL:
053-401-3456
FAX:
053-448-1120
所属団体:
(公社)静岡県宅地建物取引業協会会員
東海不動産公正取引協議会加盟

取引態様:仲介

  • 会社情報
  • 40302218
スマートフォンで
この不動産会社を見る
QRコード
  • お問い合わせ
  • 提携サイト等より掲載されている物件情報につきましては、不動産会社詳細情報にリンクされていないものがあります。
  • 物件に関するお問合せは、物件詳細ページの「情報提供会社」に表示されている不動産会社へ直接お願いいたします。
  • 間取図は、現況を優先させていただきます。
  • 映像は物件の一部を撮影したものです。物件の契約にあたっての最終判断はご自身の判断に基づいて行ってください。
  • 仲介手数料について仲介手数料

アットホームは物件情報の適正化に努めております。 内容に誤りがある場合にはこちらへご連絡ください。


物件画像: