賃貸や不動産はアットホーム-賃貸マンション・賃貸物件・不動産なら アットホーム

大阪府大阪市西区新町1丁目(四ツ橋駅)の貸事務所:物件詳細

  • 物件詳細
  • 情報の見方
  • 印刷用画面
交通
所在地
駅徒歩 賃料
管理費等
敷金/保証金
礼金
使用部分面積
坪数/坪単価
物件種目
築年月

地下鉄四つ橋線/四ツ橋

大阪府大阪市西区新町1丁目

2分

6.2万円

8,500円

なし / 4.5ヶ月

なし

18.54m²

5.60坪/1.1055万円

貸事務所

1974年1月(築52年4ヶ月)

おすすめコメント

四ツ橋筋沿い、四ツ橋駅まで徒歩2分の好立地物件。2011年3月ビル全面改修工事済み。24h機械警備(セコム)、24h利用可、男女別トイレ(ウォシュレット)、屋上喫煙スペース、貸し会議室あり。

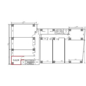
間取図

間取図

その他の画像
    • お問い合わせ
    交通

    地下鉄四つ橋線 四ツ橋駅 徒歩2分

    その他の交通

    地下鉄御堂筋線 心斎橋駅 徒歩5分

    地下鉄中央線 本町駅 徒歩6分

    所在地 大阪府大阪市西区新町1丁目
    物件種目 貸事務所
    賃料 6.2万円 管理費等 8,500円
    敷金 / 保証金 なし / 4.5ヶ月 礼金 なし
    敷引 坪単価 1.1055万円
    保証金償却 権利金
    造作譲渡 その他一時金
    維持費等 警備料:6,600円/月、水道代:2,200円/月 保険等
    使用部分面積 18.54m² 坪数 5.60坪
    築年月 1974年1月(築52年4ヶ月) 階建 / 階 10階建 / 4階
    駐車場 バイク置き場
    駐輪場 土地面積
    接道状況 用途地域
    間取り 建物構造 SRC
    建物名・部屋番号  
    リフォーム履歴
    リノベーション履歴
    特記事項 土曜日利用可、土日・祝日利用可、飲食店不可、角部屋、24時間セキュリティー
    備考
    賃貸保証等:加入要(貸主指定)
    管理形態/管理員の勤務形態:-/-
    賃料・管理費に別途消費税要
    電気代:貸主検針(基本料なし)、原状回復費は借主の実費。
    短期解約違約金あり
    2011年大規模改修、2016年エントランス・エレベーター改修済。

    ※詳細・お問合せ・ご来店予約は、お電話が便利です。
    無料電話もしくはライフワーク難波店TEL06-6636-3500までお願い致します。
    エネルギー消費性能
    断熱性能
    目安光熱費
    バス・トイレ 共用部分に男女別トイレあり
    キッチン
    設備・サービス 個別空調、動力あり、ビルトインエアコン、光ファイバー
    その他 施設内喫煙所、エレベーター2基以上
    契約期間 1年 条件等
    引渡可能時期 2026年7月上旬予定 現況 使用中
    更新料 物件番号 6990119699
    情報公開日 2026年3月30日 次回更新予定日 2026年4月13日
    ケータイ用バーコード

    QRコード

    スマートフォンでこの物件を見る
    スマートフォンからもこの物件をご覧になれます。
    ※「-」と表示されている項目については、情報提供会社にご確認ください。

    この物件の周辺情報

    周辺施設 ローソン西区新町1丁目店
    距離 3m
    周辺施設 大阪信用金庫西支店
    距離 96m
    周辺施設 大阪新町郵便局
    距離 90m
    周辺施設 上島珈琲店四ツ橋店
    距離 95m
    周辺施設 オリックス劇場
    距離 257m
    周辺施設 ビッグビーンズWest本店
    距離 320m
    周辺施設 ルイ・ヴィトン大阪心斎橋店
    距離 614m
    周辺施設 心斎橋OPA
    距離 730m

    クイックお問い合わせ

    ここから簡単にお問い合わせをすることができます。
    (SSLでの暗号化での送信を希望されるお客さまは こちら よりお問い合わせください)

    お問い合わせ内容(必須)
    物件のお問い合わせ理由(必須)
    お名前・ご担当者様名(必須) 姓  名 
    メールアドレス(必須)
    ※携帯電話のメールアドレスをご入力される方はこちらをご確認ください
    電話番号(必須)
    - -
    備考欄 希望条件、物件案内希望日、質問などがございましたらご記入ください。
    お問い合わせを行う前に「個人情報の取り扱いについて」を必ずお読みください。
    「個人情報の取り扱いについて」に同意いただいた場合は「上記にご同意の上 確認画面へ進む」のボタンをクリックしてください。

    個人情報の取り扱いについて

    皆さまが送付された個人情報はアットホーム(株)のサーバを経由し、お問い合わせ先の不動産会社にメールまたはFAXにて転送されるためアットホーム(株)にも保管されます。アットホーム(株)で保管された個人情報の取り扱いについては、【こちら】をご覧ください。
    また、本画面でご記入いただいた個人情報は、お問い合わせ先の不動産会社でも保管します。 お問い合わせ先の不動産会社が保管する個人情報の取り扱いについては、不動産会社に直接お問い合わせください。

    情報提供会社

    情報提供会社

    (有)ライフワーク

    大阪府知事免許(5)第51558号

    交通:
    地下鉄御堂筋線/なんば駅 徒歩3分
    大阪府大阪市浪速区難波中1丁目14-14 エミューイモト1F
    TEL:
    06-6636-3500
    FAX:
    06-6636-3501
    所属団体:
    (一社)大阪府宅地建物取引業協会会員
    (公社)近畿地区不動産公正取引協議会加盟

    取引態様:仲介

    • 会社情報
    • 50010067
    スマートフォンで
    この不動産会社を見る
    QRコード
    • お問い合わせ
    • 提携サイト等より掲載されている物件情報につきましては、不動産会社詳細情報にリンクされていないものがあります。
    • 物件に関するお問合せは、物件詳細ページの「情報提供会社」に表示されている不動産会社へ直接お願いいたします。
    • 間取図は、現況を優先させていただきます。
    • 映像は物件の一部を撮影したものです。物件の契約にあたっての最終判断はご自身の判断に基づいて行ってください。
    • 仲介手数料について仲介手数料

    アットホームは物件情報の適正化に努めております。 内容に誤りがある場合にはこちらへご連絡ください。


    物件画像: