賃貸や不動産はアットホーム-賃貸マンション・賃貸物件・不動産なら アットホーム

福岡県福岡市博多区博多駅東1丁目(博多駅)の貸事務所:物件詳細

  • 物件詳細
  • 情報の見方
  • 印刷用画面
交通
所在地
駅徒歩 賃料
管理費等
敷金/保証金
礼金
使用部分面積
坪数/坪単価
物件種目
築年月

JR篠栗線/博多

福岡県福岡市博多区博多駅東1丁目

4分

155.95万円

10ヶ月 / なし

なし

256.23m²

77.50坪/2.0121万円

貸事務所

2025年3月(築1年2ヶ月・未入居)

おすすめコメント

※消費税10%で算出 福岡・博多の玄関口、博多駅東エリアに新たなオフィス空間が誕生しました。駅から徒歩数分という優れた立地にありながら、落ち着いたビジネス環境が広がる物件です。

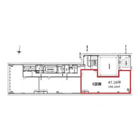
間取図

間取図

<
その他の画像
  • ショッピング施設
  • コンビニ
  • コンビニ
  • 郵便局
  • 銀行
  • 銀行
  • 公園
  • その他
>
    • お問い合わせ
    交通

    JR篠栗線 博多駅 徒歩4分

    その他の交通

    地下鉄空港線 博多駅 徒歩4分

    地下鉄空港線 東比恵駅 徒歩14分

    所在地 福岡県福岡市博多区博多駅東1丁目
    物件種目 貸事務所
    賃料 155.95万円 管理費等
    敷金 / 保証金 10ヶ月 / なし 礼金 なし
    敷引 坪単価 2.0121万円
    保証金償却 権利金
    造作譲渡 その他一時金
    維持費等 保険等
    使用部分面積 256.23m² 坪数 77.50坪
    築年月 2025年3月(築1年2ヶ月・未入居) 階建 / 階 9階建 / 4階
    駐車場 バイク置き場
    駐輪場 土地面積
    接道状況 用途地域
    間取り 建物構造 鉄骨造
    アピールポイント 福岡・博多の玄関口、博多駅東エリアに新たなオフィス空間が誕生しました。
    駅から徒歩数分という優れた立地にありながら、落ち着いたビジネス環境が広がる本物件は、
    企業の信頼性やブランドイメージを高めたい方にも最適です。
    外観はシンプルかつ洗練されたデザインで、訪れるお客様に好印象を与えるファサードが魅力。
    ビル内は最新の設備が整い、快適で機能的なワークスペースを実現しています。
    複数の区画が用意されており、少人数から中規模オフィスまで柔軟に対応可能。
    アクセスの良さに加えて、先進的な設備と清潔感のある空間設計により、
    快適な業務環境をお求めの企業様におすすめの物件です。
    建物名・部屋番号 トヨタレンタリース博多駅前ビル
    リフォーム履歴
    リノベーション履歴
    特記事項 24時間利用可、土曜日利用可、土日・祝日利用可、OAフロア、飲食店不可、24時間セキュリティー、天井高2.5M以上
    備考
    管理形態/管理員の勤務形態:-/-
    エネルギー消費性能
    断熱性能
    目安光熱費
    バス・トイレ 共用部分に男女別トイレあり
    キッチン
    設備・サービス 個別空調、光ファイバー
    その他 エレベーター2基以上、エレベーター
    契約期間 2年 条件等
    引渡可能時期 即時 現況 完成済
    更新料 物件番号 6990096051
    情報公開日 2026年3月27日 次回更新予定日 2026年4月10日
    ケータイ用バーコード

    QRコード

    スマートフォンでこの物件を見る
    スマートフォンからもこの物件をご覧になれます。
    ※「-」と表示されている項目については、情報提供会社にご確認ください。

    この物件の周辺情報

    周辺施設 エキサイド博多
    距離 298m
    周辺施設 ファミリーマート博多駅東一丁目店
    距離 83m
    周辺施設 ローソンオリエンタルホテル福岡店
    距離 268m
    周辺施設 福岡合同庁舎内郵便局
    距離 438m
    周辺施設 西日本シティ銀行博多駅東支店
    距離 247m
    周辺施設 北九州銀行博多駅東支店
    距離 308m
    周辺施設 中比恵公園
    距離 508m
    周辺施設 駅東パーキング
    距離 187m

    クイックお問い合わせ

    ここから簡単にお問い合わせをすることができます。
    (SSLでの暗号化での送信を希望されるお客さまは こちら よりお問い合わせください)

    お問い合わせ内容(必須)
    物件のお問い合わせ理由(必須)
    お名前・ご担当者様名(必須) 姓  名 
    メールアドレス(必須)
    ※携帯電話のメールアドレスをご入力される方はこちらをご確認ください
    電話番号(必須)
    - -
    備考欄 希望条件、物件案内希望日、質問などがございましたらご記入ください。
    お問い合わせを行う前に「個人情報の取り扱いについて」を必ずお読みください。
    「個人情報の取り扱いについて」に同意いただいた場合は「上記にご同意の上 確認画面へ進む」のボタンをクリックしてください。

    個人情報の取り扱いについて

    皆さまが送付された個人情報はアットホーム(株)のサーバを経由し、お問い合わせ先の不動産会社にメールまたはFAXにて転送されるためアットホーム(株)にも保管されます。アットホーム(株)で保管された個人情報の取り扱いについては、【こちら】をご覧ください。
    また、本画面でご記入いただいた個人情報は、お問い合わせ先の不動産会社でも保管します。 お問い合わせ先の不動産会社が保管する個人情報の取り扱いについては、不動産会社に直接お問い合わせください。

    情報提供会社

    情報提供会社

    (株)クイックコンサルティング 福岡支店

    国土交通大臣免許(4)第7938号

    交通:
    西鉄天神大牟田線/西鉄福岡(天神)駅 徒歩2分
    福岡県福岡市中央区天神1丁目6-8 天神ツインビル4F
    TEL:
    092-791-5500
    FAX:
    092-791-5511
    所属団体:
    (公社)全日本不動産協会会員
    (一社)九州不動産公正取引協議会加盟

    取引態様:仲介

    • 会社情報
    • 80506897
    スマートフォンで
    この不動産会社を見る
    QRコード
    • お問い合わせ
    • 提携サイト等より掲載されている物件情報につきましては、不動産会社詳細情報にリンクされていないものがあります。
    • 物件に関するお問合せは、物件詳細ページの「情報提供会社」に表示されている不動産会社へ直接お願いいたします。
    • 間取図は、現況を優先させていただきます。
    • 映像は物件の一部を撮影したものです。物件の契約にあたっての最終判断はご自身の判断に基づいて行ってください。
    • 仲介手数料について仲介手数料

    アットホームは物件情報の適正化に努めております。 内容に誤りがある場合にはこちらへご連絡ください。


    物件画像: