賃貸や不動産はアットホーム-賃貸マンション・賃貸物件・不動産なら アットホーム

大阪府吹田市広芝町(江坂駅)の貸事務所:物件詳細

  • 物件詳細
  • 情報の見方
  • 印刷用画面
交通
所在地
駅徒歩 賃料
管理費等
敷金/保証金
礼金
使用部分面積
坪数/坪単価
物件種目
築年月

地下鉄御堂筋線/江坂

大阪府吹田市広芝町

6分

26.4万円

3ヶ月 / なし

2ヶ月

123.53m²

37.36坪/0.7065万円

貸事務所

1979年7月(築46年10ヶ月)

おすすめコメント

江坂駅徒歩6分の倉庫兼事務所

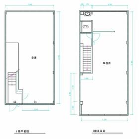
間取図

間取図

その他の画像
    • お問い合わせ
    交通

    地下鉄御堂筋線 江坂駅 徒歩6分

    所在地 大阪府吹田市広芝町
    物件種目 貸事務所
    賃料 26.4万円 管理費等
    敷金 / 保証金 3ヶ月 / なし 礼金 2ヶ月
    敷引 坪単価 0.7065万円
    保証金償却 権利金
    造作譲渡 その他一時金
    維持費等 保険等
    使用部分面積 123.53m² 坪数 37.36坪
    築年月 1979年7月(築46年10ヶ月) 階建 / 階 3階建 / 1階~2階部分
    駐車場 有 無料
    前面空地約2台駐車可
    バイク置き場
    駐輪場 土地面積 190.40m²(公簿)
    接道状況 用途地域 商業地域
    間取り 建物構造 鉄骨造
    アピールポイント 江坂駅まで徒歩6分の好立地に位置する、連棟タイプの西側区画の募集です。
    前面空地には2台分の駐車スペースを確保しており、来客対応や社用車の利用にも便利です。
    建物は1階・2階ともに各約20坪、合計約40坪の倉庫兼事務所仕様となっており、
    在庫保管・軽作業・事務スペースを一体でご利用いただける、使い勝手の良い人気の広さです。

    駅近で駐車場付き、かつ倉庫と事務所を兼ね備えた物件は数が限られており、
    需要の高い条件が揃った物件となっております。
    ご検討中の方は、この機会にぜひお早めにお問い合わせください。
    建物名・部屋番号  
    リフォーム履歴
    リノベーション履歴
    特記事項 駐車場2台分
    備考
    管理形態/管理員の勤務形態:-/-
    1階 58.45㎡(17.68坪)倉庫
    2階 65.08㎡(19.68坪)事務所
    合計 123.53㎡(37.36坪)

    現状有姿
    保証会社加入要
    エネルギー消費性能
    断熱性能
    目安光熱費
    バス・トイレ
    キッチン
    設備・サービス 電動シャッター
    その他
    契約期間 2年 条件等
    引渡可能時期 2026年6月下旬予定 現況 使用中
    更新料 物件番号 6990077253
    情報公開日 2026年3月26日 次回更新予定日 2026年4月23日
    ケータイ用バーコード

    QRコード

    スマートフォンでこの物件を見る
    スマートフォンからもこの物件をご覧になれます。
    ※「-」と表示されている項目については、情報提供会社にご確認ください。

    この物件の周辺情報

    周辺施設 業務スーパー江坂店
    距離 127m
    周辺施設 セブンイレブン吹田広芝町店
    距離 173m
    周辺施設 イエローハット江坂店
    距離 332m
    周辺施設 ニコニコレンタカーYH江坂店
    距離 350m
    周辺施設 ヒロコーヒー本店
    距離 261m
    周辺施設 ローソンドラッグミック江坂広芝町店
    距離 326m
    周辺施設 ファミリーマート南吹田五丁目店
    距離 371m
    周辺施設 キリン堂江坂店
    距離 335m

    クイックお問い合わせ

    ここから簡単にお問い合わせをすることができます。
    (SSLでの暗号化での送信を希望されるお客さまは こちら よりお問い合わせください)

    お問い合わせ内容(必須)
    物件のお問い合わせ理由(必須)
    お名前・ご担当者様名(必須) 姓  名 
    メールアドレス(必須)
    ※携帯電話のメールアドレスをご入力される方はこちらをご確認ください
    電話番号(必須)
    - -
    備考欄 希望条件、物件案内希望日、質問などがございましたらご記入ください。
    お問い合わせを行う前に「個人情報の取り扱いについて」を必ずお読みください。
    「個人情報の取り扱いについて」に同意いただいた場合は「上記にご同意の上 確認画面へ進む」のボタンをクリックしてください。

    個人情報の取り扱いについて

    皆さまが送付された個人情報はアットホーム(株)のサーバを経由し、お問い合わせ先の不動産会社にメールまたはFAXにて転送されるためアットホーム(株)にも保管されます。アットホーム(株)で保管された個人情報の取り扱いについては、【こちら】をご覧ください。
    また、本画面でご記入いただいた個人情報は、お問い合わせ先の不動産会社でも保管します。 お問い合わせ先の不動産会社が保管する個人情報の取り扱いについては、不動産会社に直接お問い合わせください。

    情報提供会社

    情報提供会社

    (株)スペース・リーダー

    大阪府知事免許(6)第46695号

    交通:
    地下鉄御堂筋線/江坂駅 徒歩1分
    大阪府吹田市豊津町9-1 EDGE江坂13F
    TEL:
    06-6310-7510
    FAX:
    06-6310-7511
    所属団体:
    (公社)全日本不動産協会会員
    (公社)近畿地区不動産公正取引協議会加盟

    取引態様:仲介

    • 会社情報
    • 50013725
    スマートフォンで
    この不動産会社を見る
    QRコード
    • お問い合わせ
    • 提携サイト等より掲載されている物件情報につきましては、不動産会社詳細情報にリンクされていないものがあります。
    • 物件に関するお問合せは、物件詳細ページの「情報提供会社」に表示されている不動産会社へ直接お願いいたします。
    • 間取図は、現況を優先させていただきます。
    • 映像は物件の一部を撮影したものです。物件の契約にあたっての最終判断はご自身の判断に基づいて行ってください。
    • 仲介手数料について仲介手数料

    アットホームは物件情報の適正化に努めております。 内容に誤りがある場合にはこちらへご連絡ください。


    物件画像: