賃貸や不動産はアットホーム-賃貸マンション・賃貸物件・不動産なら アットホーム

広島県広島市安佐南区祇園2丁目(古市橋駅)の貸事務所:物件詳細

  • 物件詳細
  • 情報の見方
  • 印刷用画面
交通
所在地
駅徒歩 賃料
管理費等
敷金/保証金
礼金
使用部分面積
坪数/坪単価
物件種目
築年月

可部線/古市橋
[バス利用可] バス 1分 広島経済大学入口 停歩1分

広島県広島市安佐南区祇園2丁目

10分

19.8万円

20,000円

4ヶ月 / なし

1ヶ月

137.80m²

41.68坪/0.475万円

貸事務所

1982年3月(築44年2ヶ月)

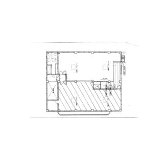
間取図

間取図

その他の画像
    • お問い合わせ
    交通

    可部線 古市橋駅 徒歩10分
    [バス利用可] バス 1分 広島経済大学入口 停歩1分

    所在地 広島県広島市安佐南区祇園2丁目
    物件種目 貸事務所
    賃料 19.8万円 管理費等 20,000円
    敷金 / 保証金 4ヶ月 / なし 礼金 1ヶ月
    敷引 坪単価 0.475万円
    保証金償却 権利金
    造作譲渡 その他一時金
    維持費等 保険等 要 2年 24,000円 借家人賠償責任
    使用部分面積 137.80m² 坪数 41.68坪
    築年月 1982年3月(築44年2ヶ月) 階建 / 階 4階建 / 3階
    駐車場 近有 無料 バイク置き場
    駐輪場 土地面積
    接道状況 北東 6.0m 接面15.0m ・ 南東 7.0m 接面20.0m ・ 二方道路 用途地域 1種住居
    間取り 建物構造 SRC
    建物名・部屋番号 クラークビル 202号室 2F
    リフォーム履歴
    リノベーション履歴
    特記事項
    備考
    賃貸保証等:加入要(180,000円)
    管理形態/管理員の勤務形態:-/-
    主要採光面:北西向き
    駐車場1台含む
    エネルギー消費性能
    断熱性能
    目安光熱費
    バス・トイレ トイレ2ヶ所、専有部分に男女別トイレあり
    キッチン
    設備・サービス エアコン2台以上、プロパンガス
    その他 エレベーター
    契約期間 3年 条件等
    引渡可能時期 即時 現況
    仲介手数料 1ヶ月 適格請求書発行
    更新料 物件番号 6990073493
    情報公開日 2026年3月26日 次回更新予定日 2026年4月23日
    ケータイ用バーコード

    QRコード

    スマートフォンでこの物件を見る
    スマートフォンからもこの物件をご覧になれます。
    ※「-」と表示されている項目については、情報提供会社にご確認ください。

    クイックお問い合わせ

    ここから簡単にお問い合わせをすることができます。
    (SSLでの暗号化での送信を希望されるお客さまは こちら よりお問い合わせください)

    お問い合わせ内容(必須)
    物件のお問い合わせ理由(必須)
    お名前・ご担当者様名(必須) 姓  名 
    メールアドレス(必須)
    ※携帯電話のメールアドレスをご入力される方はこちらをご確認ください
    電話番号(必須)
    - -
    備考欄 希望条件、物件案内希望日、質問などがございましたらご記入ください。
    お問い合わせを行う前に「個人情報の取り扱いについて」を必ずお読みください。
    「個人情報の取り扱いについて」に同意いただいた場合は「上記にご同意の上 確認画面へ進む」のボタンをクリックしてください。

    個人情報の取り扱いについて

    皆さまが送付された個人情報はアットホーム(株)のサーバを経由し、お問い合わせ先の不動産会社にメールまたはFAXにて転送されるためアットホーム(株)にも保管されます。アットホーム(株)で保管された個人情報の取り扱いについては、【こちら】をご覧ください。
    また、本画面でご記入いただいた個人情報は、お問い合わせ先の不動産会社でも保管します。 お問い合わせ先の不動産会社が保管する個人情報の取り扱いについては、不動産会社に直接お問い合わせください。

    情報提供会社

    情報提供会社

    住まいの新明

    広島県知事免許(9)第6131号

    交通:
    広島電鉄宮島線/高須駅 徒歩4分
    広島県広島市西区高須1丁目10-24 
    TEL:
    082-271-1518
    FAX:
    082-271-1996
    所属団体:
    (公社)広島県宅地建物取引業協会会員
    中国地区不動産公正取引協議会加盟

    取引態様:仲介

    • 会社情報
    • 80800132
    スマートフォンで
    この不動産会社を見る
    QRコード
    • お問い合わせ
    • 提携サイト等より掲載されている物件情報につきましては、不動産会社詳細情報にリンクされていないものがあります。
    • 物件に関するお問合せは、物件詳細ページの「情報提供会社」に表示されている不動産会社へ直接お願いいたします。
    • 間取図は、現況を優先させていただきます。
    • 映像は物件の一部を撮影したものです。物件の契約にあたっての最終判断はご自身の判断に基づいて行ってください。
    • 仲介手数料について仲介手数料

    アットホームは物件情報の適正化に努めております。 内容に誤りがある場合にはこちらへご連絡ください。


    物件画像: