賃貸や不動産はアットホーム-賃貸マンション・賃貸物件・不動産なら アットホーム

兵庫県神戸市中央区海岸通(元町駅)の貸事務所:物件詳細

  • 物件詳細
  • 情報の見方
  • 印刷用画面
交通
所在地
駅徒歩 賃料
管理費等
敷金/保証金
礼金
使用部分面積
坪数/坪単価
物件種目
築年月

阪神本線/元町 新着

兵庫県神戸市中央区海岸通

13分

49.621万円

182,490円

371万円 / なし

なし

156.71m²

47.40坪/1.0468万円

貸事務所

1988年8月(築37年7ヶ月)

おすすめコメント  スタッフ: 樽谷徹

旧居留地内のオフィスビルです。2面採光で開放的な空間です!貸倉庫・併設立体駐車場有ります。(複数台契約可能)

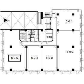
間取図

間取図

外観

外観

  • お問い合わせ
交通

阪神本線 元町駅 徒歩13分

その他の交通

神戸高速東西線 花隈駅 徒歩7分

神戸高速東西線 西元町駅 徒歩5分

所在地 兵庫県神戸市中央区海岸通
物件種目 貸事務所
賃料 49.621万円 管理費等 182,490円
敷金 / 保証金 371万円 / なし 礼金 なし
敷引 坪単価 1.0468万円
保証金償却 権利金
造作譲渡 その他一時金
維持費等 内面ガラス清掃費:843円/月 保険等
使用部分面積 156.71m² 坪数 47.40坪
築年月 1988年8月(築37年7ヶ月) 階建 / 階 9階建 / 6階
駐車場 有 44,000円/月 バイク置き場
駐輪場 土地面積
接道状況 用途地域
間取り 建物構造 SRC
アピールポイント 三ノ宮・元町で事務所をお探しならテナントホームにお任せください!
他社にはない物件情報や、諸条件のご相談などお力になれるよう
精一杯頑張ります!お問合せお待ちしております!
テナントホーム担当:タルタニ
TEL:078-335-7835
建物名・部屋番号  
リフォーム履歴
リノベーション履歴
特記事項 24時間利用可、有人警備、24時間セキュリティー
備考
賃貸保証等:加入要(指定保証会社契約要)
管理形態/管理員の勤務形態:-/-
エネルギー消費性能
断熱性能
目安光熱費
バス・トイレ 共用部分にトイレあり
キッチン
設備・サービス 個別空調、暖房、冷房
その他 エレベーター2基以上
契約期間 3年 条件等
引渡可能時期 相談 現況 居住中
更新料 物件番号 6989523966
情報公開日 2026年2月16日 次回更新予定日 2026年3月2日
ケータイ用バーコード

QRコード

スマートフォンでこの物件を見る
スマートフォンからもこの物件をご覧になれます。
※「-」と表示されている項目については、情報提供会社にご確認ください。

クイックお問い合わせ

ここから簡単にお問い合わせをすることができます。
(SSLでの暗号化での送信を希望されるお客さまは こちら よりお問い合わせください)

お問い合わせ内容(必須)
物件のお問い合わせ理由(必須)
お名前・ご担当者様名(必須) 姓  名 
メールアドレス(必須)
※携帯電話のメールアドレスをご入力される方はこちらをご確認ください
電話番号(必須)
- -
備考欄 希望条件、物件案内希望日、質問などがございましたらご記入ください。
お問い合わせを行う前に「個人情報の取り扱いについて」を必ずお読みください。
「個人情報の取り扱いについて」に同意いただいた場合は「上記にご同意の上 確認画面へ進む」のボタンをクリックしてください。

個人情報の取り扱いについて

皆さまが送付された個人情報はアットホーム(株)のサーバを経由し、お問い合わせ先の不動産会社にメールまたはFAXにて転送されるためアットホーム(株)にも保管されます。アットホーム(株)で保管された個人情報の取り扱いについては、【こちら】をご覧ください。
また、本画面でご記入いただいた個人情報は、お問い合わせ先の不動産会社でも保管します。 お問い合わせ先の不動産会社が保管する個人情報の取り扱いについては、不動産会社に直接お問い合わせください。

情報提供会社

情報提供会社

(株)テナントホーム

兵庫県知事免許(2)第12034号

交通:
JR東海道本線/三ノ宮駅 徒歩3分
兵庫県神戸市中央区北長狭通1丁目3-11 ノアールビル1F
TEL:
078-335-7835
FAX:
078-335-7834
所属団体:
(一社)兵庫県宅地建物取引業協会会員
(公社)近畿地区不動産公正取引協議会加盟

取引態様:仲介

  • 会社情報
  • 50103077
スマートフォンで
この不動産会社を見る
QRコード
  • お問い合わせ
  • 提携サイト等より掲載されている物件情報につきましては、不動産会社詳細情報にリンクされていないものがあります。
  • 物件に関するお問合せは、物件詳細ページの「情報提供会社」に表示されている不動産会社へ直接お願いいたします。
  • 間取図は、現況を優先させていただきます。
  • 映像は物件の一部を撮影したものです。物件の契約にあたっての最終判断はご自身の判断に基づいて行ってください。
  • 仲介手数料について仲介手数料

アットホームは物件情報の適正化に努めております。 内容に誤りがある場合にはこちらへご連絡ください。


物件画像: