賃貸や不動産はアットホーム-賃貸マンション・賃貸物件・不動産なら アットホーム

東京都中央区日本橋室町1丁目(三越前駅)の貸事務所:物件詳細

  • 物件詳細
  • 情報の見方
  • 印刷用画面
交通
所在地
駅徒歩 賃料
管理費等
敷金/保証金
礼金
使用部分面積
坪数/坪単価
物件種目
築年月

東京メトロ半蔵門線/三越前 新着

東京都中央区日本橋室町1丁目

1分

61.875万円

なし / 6ヶ月

なし

74.38m²

22.49坪/2.7501万円

貸事務所

1993年7月(築32年8ヶ月)

おすすめコメント  スタッフ: 村山 晃

三越駅前駅徒歩1分の1フロア1テナントオフィス物件!天井が高く開放感ございます。

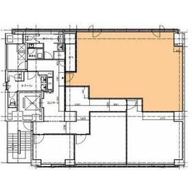
間取図

間取図

外観

外観

その他の画像
  • 共有部分
  • 共有部分
  • 共有部分
  • エントランス
    • お問い合わせ
    交通

    東京メトロ半蔵門線 三越前駅 徒歩1分

    その他の交通

    東京メトロ東西線 日本橋駅 徒歩2分

    JR総武本線 新日本橋駅 徒歩6分

    所在地 東京都中央区日本橋室町1丁目
    物件種目 貸事務所
    賃料 61.875万円 管理費等
    敷金 / 保証金 なし / 6ヶ月 礼金 なし
    敷引 坪単価 2.7501万円
    保証金償却 権利金
    造作譲渡 その他一時金
    維持費等 保険等
    使用部分面積 74.38m² 坪数 22.49坪
    築年月 1993年7月(築32年8ヶ月) 階建 / 階 地上9階地下1階建 / 5階
    駐車場 バイク置き場
    駐輪場 土地面積
    接道状況 用途地域
    間取り 建物構造 SRC
    建物名・部屋番号 室町NSビル 5階
    リフォーム履歴
    リノベーション履歴
    特記事項 24時間利用可、土日・祝日利用可、OAフロア、1フロア1テナント、耐震構造(新耐震基準)、天井高2.5M以上
    備考
    管理形態/管理員の勤務形態:-/-
    エネルギー消費性能
    断熱性能
    目安光熱費
    バス・トイレ 共用部分に男女別トイレあり
    キッチン
    設備・サービス 個別空調、エアコン2台以上
    その他 エレベーター
    契約期間 2年 条件等 定期借家定期借家
    引渡可能時期 即時 現況
    仲介手数料 1ヶ月    
    更新料 物件番号 6989481609
    情報公開日 2026年2月13日 次回更新予定日 2026年2月27日
    ケータイ用バーコード

    QRコード

    スマートフォンでこの物件を見る
    スマートフォンからもこの物件をご覧になれます。
    ※「-」と表示されている項目については、情報提供会社にご確認ください。

    この物件の周辺情報

    周辺施設 三越日本橋本店新館
    距離 127m
    周辺施設 無印良品コレド室町店
    距離 206m
    周辺施設 ファミリーマート日本橋三越前店
    距離 96m
    周辺施設 デイリーヤマザキ日本橋室町1丁目店
    距離 141m
    周辺施設 スターバックスコーヒー日本橋スルガビル店
    距離 67m
    周辺施設 たいめいけん
    距離 49m
    周辺施設 カフェ&レストランランドマーク日本橋三越
    距離 130m
    周辺施設 宮越屋珈琲日本橋4F店
    距離 127m

    クイックお問い合わせ

    ここから簡単にお問い合わせをすることができます。
    (SSLでの暗号化での送信を希望されるお客さまは こちら よりお問い合わせください)

    お問い合わせ内容(必須)
    物件のお問い合わせ理由(必須)
    お名前・ご担当者様名(必須) 姓  名 
    メールアドレス(必須)
    ※携帯電話のメールアドレスをご入力される方はこちらをご確認ください
    電話番号(必須)
    - -
    備考欄 希望条件、物件案内希望日、質問などがございましたらご記入ください。
    お問い合わせを行う前に「個人情報の取り扱いについて」を必ずお読みください。
    「個人情報の取り扱いについて」に同意いただいた場合は「上記にご同意の上 確認画面へ進む」のボタンをクリックしてください。

    個人情報の取り扱いについて

    皆さまが送付された個人情報はアットホーム(株)のサーバを経由し、お問い合わせ先の不動産会社にメールまたはFAXにて転送されるためアットホーム(株)にも保管されます。アットホーム(株)で保管された個人情報の取り扱いについては、【こちら】をご覧ください。
    また、本画面でご記入いただいた個人情報は、お問い合わせ先の不動産会社でも保管します。 お問い合わせ先の不動産会社が保管する個人情報の取り扱いについては、不動産会社に直接お問い合わせください。

    情報提供会社

    情報提供会社

    (株)藤田材木店 不動産営業部

    東京都知事免許(14)第24106号

    交通:
    JR山手線/新橋駅 徒歩2分
    東京都港区新橋2丁目20-15 新橋駅前ビル1号館3階315号室
    TEL:
    03-5568-6336
    FAX:
    03-5537-6776
    所属団体:
    (公社)東京都宅地建物取引業協会会員
    (公社)首都圏不動産公正取引協議会加盟

    取引態様:仲介

    • 会社情報
    • 00272052
    スマートフォンで
    この不動産会社を見る
    QRコード
    • お問い合わせ
    • 提携サイト等より掲載されている物件情報につきましては、不動産会社詳細情報にリンクされていないものがあります。
    • 物件に関するお問合せは、物件詳細ページの「情報提供会社」に表示されている不動産会社へ直接お願いいたします。
    • 間取図は、現況を優先させていただきます。
    • 映像は物件の一部を撮影したものです。物件の契約にあたっての最終判断はご自身の判断に基づいて行ってください。
    • 仲介手数料について仲介手数料

    アットホームは物件情報の適正化に努めております。 内容に誤りがある場合にはこちらへご連絡ください。


    物件画像: