賃貸や不動産はアットホーム-賃貸マンション・賃貸物件・不動産なら アットホーム

茨城県土浦市桜町1丁目(土浦駅)の貸事務所:物件詳細

  • 物件詳細
  • 情報の見方
  • 印刷用画面
交通
所在地
駅徒歩 賃料
管理費等
敷金/保証金
礼金
使用部分面積
坪数/坪単価
物件種目
築年月

JR常磐線/土浦

茨城県土浦市桜町1丁目

3分

97.57万円

6ヶ月 / なし

なし

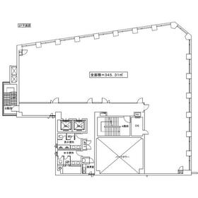
345.31m²

104.45坪/0.9341万円

貸事務所

1978年8月(築47年7ヶ月)

間取図

間取図

外観

外観

その他の画像
    • お問い合わせ
    交通

    JR常磐線 土浦駅 徒歩3分

    所在地 茨城県土浦市桜町1丁目
    物件種目 貸事務所
    賃料 97.57万円 管理費等
    敷金 / 保証金 6ヶ月 / なし 礼金 なし
    敷引 坪単価 0.9341万円
    保証金償却 権利金
    造作譲渡 その他一時金 なし
    維持費等 保険等
    使用部分面積 345.31m² 坪数 104.45坪
    築年月 1978年8月(築47年7ヶ月) 階建 / 階 地上8階地下1階建 / 2階
    駐車場 有 16,500円/月
    機械式駐車場(空多数)
    バイク置き場
    駐輪場 土地面積
    接道状況 用途地域 商業地域
    間取り 建物構造 SRC
    建物名・部屋番号 リーガル土浦ビル 201~205
    リフォーム履歴
    リノベーション履歴
    特記事項 フリーレント、24時間セキュリティー
    備考
    管理形態/管理員の勤務形態:-/-
    フリーレント:5ヶ月
    ※時間外空調使用料有※開館時間 通常8:00〜18:00
    エネルギー消費性能
    断熱性能
    目安光熱費
    バス・トイレ トイレ2ヶ所、共用部分に男女別トイレあり
    キッチン
    設備・サービス 防犯カメラ、暖房、冷房
    その他 エレベーター2基以上
    契約期間 2年 条件等
    引渡可能時期 即時 現況
    更新料 新賃料 1ヶ月 物件番号 6989416006
    情報公開日 2026年2月8日 次回更新予定日 2026年2月22日
    ケータイ用バーコード

    QRコード

    スマートフォンでこの物件を見る
    スマートフォンからもこの物件をご覧になれます。
    ※「-」と表示されている項目については、情報提供会社にご確認ください。

    この物件の周辺情報

    周辺施設 カスミ土浦駅前店
    距離 235m
    周辺施設 セブンイレブン土浦駅西口店
    距離 2m
    周辺施設 ミニストッププレイアトレ土浦店
    距離 270m
    周辺施設 タリーズコーヒープレイアトレ土浦店
    距離 270m
    周辺施設 ロッテリアJR土浦ペルチ店
    距離 270m
    周辺施設 土浦駅前郵便局
    距離 143m
    周辺施設 東日本銀行土浦支店
    距離 104m
    周辺施設 りそな銀行土浦支店
    距離 349m

    クイックお問い合わせ

    ここから簡単にお問い合わせをすることができます。
    (SSLでの暗号化での送信を希望されるお客さまは こちら よりお問い合わせください)

    お問い合わせ内容(必須)
    物件のお問い合わせ理由(必須)
    お名前・ご担当者様名(必須) 姓  名 
    メールアドレス(必須)
    ※携帯電話のメールアドレスをご入力される方はこちらをご確認ください
    電話番号(必須)
    - -
    備考欄 希望条件、物件案内希望日、質問などがございましたらご記入ください。
    お問い合わせを行う前に「個人情報の取り扱いについて」を必ずお読みください。
    「個人情報の取り扱いについて」に同意いただいた場合は「上記にご同意の上 確認画面へ進む」のボタンをクリックしてください。

    個人情報の取り扱いについて

    皆さまが送付された個人情報はアットホーム(株)のサーバを経由し、お問い合わせ先の不動産会社にメールまたはFAXにて転送されるためアットホーム(株)にも保管されます。アットホーム(株)で保管された個人情報の取り扱いについては、【こちら】をご覧ください。
    また、本画面でご記入いただいた個人情報は、お問い合わせ先の不動産会社でも保管します。 お問い合わせ先の不動産会社が保管する個人情報の取り扱いについては、不動産会社に直接お問い合わせください。

    情報提供会社

    情報提供会社

    大東建託リーシング(株) つくば店

    国土交通大臣免許(2)第9120号

    交通:
    つくばエクスプレス/つくば駅 徒歩23分
    茨城県つくば市天久保1丁目18-5 アレスビル101
    TEL:
    029-853-8755
    FAX:
    029-853-8786
    所属団体:
    (公財)日本賃貸住宅管理協会会員
    (一社)全国住宅産業協会会員
    (公社)首都圏不動産公正取引協議会加盟

    取引態様:仲介

    • 会社情報
    • 00314163
    スマートフォンで
    この不動産会社を見る
    QRコード
    • お問い合わせ
    • 提携サイト等より掲載されている物件情報につきましては、不動産会社詳細情報にリンクされていないものがあります。
    • 物件に関するお問合せは、物件詳細ページの「情報提供会社」に表示されている不動産会社へ直接お願いいたします。
    • 間取図は、現況を優先させていただきます。
    • 映像は物件の一部を撮影したものです。物件の契約にあたっての最終判断はご自身の判断に基づいて行ってください。
    • 仲介手数料について仲介手数料

    アットホームは物件情報の適正化に努めております。 内容に誤りがある場合にはこちらへご連絡ください。


    物件画像: