賃貸や不動産はアットホーム-賃貸マンション・賃貸物件・不動産なら アットホーム

福岡県福岡市中央区天神2丁目(西鉄福岡(天神)駅)の貸事務所:物件詳細

  • 物件詳細
  • 情報の見方
  • 印刷用画面
交通
所在地
駅徒歩 賃料
管理費等
敷金/保証金
礼金
使用部分面積
坪数/坪単価
物件種目
築年月

西鉄天神大牟田線/西鉄福岡(天神)

福岡県福岡市中央区天神2丁目

5分

要確認

要確認

115.54m²

34.95坪/要確認

貸事務所

1999年9月(築26年6ヶ月)

おすすめコメント

※消費税10%で算出 西鉄「西鉄福岡(天神)」駅より徒歩5分。国体通り沿いに建つスタイリッシュな物件のご紹介です。1フロア約100坪のオフィスとなっており、店舗・事務所の複合型オフィスビルになります。

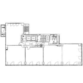
間取図

間取図

<
その他の画像
  • コンビニ
  • コンビニ
  • 郵便局
  • 銀行
  • 公園
  • 役所
  • その他
>
    • お問い合わせ
    交通

    西鉄天神大牟田線 西鉄福岡(天神)駅 徒歩5分

    その他の交通

    地下鉄七隈線 天神南駅 徒歩5分

    地下鉄空港線 天神駅 徒歩8分

    所在地 福岡県福岡市中央区天神2丁目
    物件種目 貸事務所
    賃料 要確認 管理費等 要確認
    敷金 / 保証金 要確認 礼金 要確認
    敷引 要確認 坪単価 要確認
    保証金償却 要確認 権利金
    造作譲渡 その他一時金
    維持費等 保険等
    使用部分面積 115.54m² 坪数 34.95坪
    築年月 1999年9月(築26年6ヶ月) 階建 / 階 8階建 / 3階
    駐車場 有 33,000円/月 バイク置き場
    駐輪場 土地面積
    接道状況 用途地域
    間取り 建物構造 SRC
    アピールポイント 西鉄「西鉄福岡(天神)」駅より徒歩5分。
    国体通り沿いに建つスタイリッシュな物件のご紹介です。
    1フロア約100坪のオフィスとなっており、
    店舗・事務所の複合型オフィスビルになります。
    国体道路沿い角地の物件です。
    国体道路に面しておりますのでバスや車、自転車等で通勤・来客もしやすい物件です。
    周辺も天神の中心部という事もあり、人通りも多く分かりやすい場所に位置しておりますので視認性もあります。
    また駐車場も完備されておりますので車や遠方から来られるお客様にも対応可能です。
    建物名・部屋番号 天神アイエスビル
    リフォーム履歴
    リノベーション履歴
    特記事項 24時間利用可、土曜日利用可、土日・祝日利用可、OAフロア、飲食店不可、24時間セキュリティー、天井高2.5M以上
    備考
    管理形態/管理員の勤務形態:-/-
    エネルギー消費性能
    断熱性能
    目安光熱費
    バス・トイレ 共用部分に男女別トイレあり
    キッチン
    設備・サービス 個別空調、光ファイバー
    その他 エレベーター2基以上
    契約期間 3年 条件等 定期借家定期借家
    引渡可能時期 2026年5月予定 現況 使用中
    更新料 要確認 物件番号 6989336499
    情報公開日 2026年2月2日 次回更新予定日 2026年3月2日
    ケータイ用バーコード

    QRコード

    スマートフォンでこの物件を見る
    スマートフォンからもこの物件をご覧になれます。
    ※「-」と表示されている項目については、情報提供会社にご確認ください。

    この物件の周辺情報

    周辺施設 福岡三越
    距離 260m
    周辺施設 ファミリーマート警固公園前店
    距離 66m
    周辺施設 セブンイレブン福岡天神2丁目店
    距離 245m
    周辺施設 福岡大名一郵便局
    距離 444m
    周辺施設 西日本シティ銀行大名支店
    距離 392m
    周辺施設 警固公園
    距離 218m
    周辺施設 福岡市役所
    距離 603m
    周辺施設 天神アイエスパーキング
    距離 11m

    クイックお問い合わせ

    ここから簡単にお問い合わせをすることができます。
    (SSLでの暗号化での送信を希望されるお客さまは こちら よりお問い合わせください)

    お問い合わせ内容(必須)
    物件のお問い合わせ理由(必須)
    お名前・ご担当者様名(必須) 姓  名 
    メールアドレス(必須)
    ※携帯電話のメールアドレスをご入力される方はこちらをご確認ください
    電話番号(必須)
    - -
    備考欄 希望条件、物件案内希望日、質問などがございましたらご記入ください。
    お問い合わせを行う前に「個人情報の取り扱いについて」を必ずお読みください。
    「個人情報の取り扱いについて」に同意いただいた場合は「上記にご同意の上 確認画面へ進む」のボタンをクリックしてください。

    個人情報の取り扱いについて

    皆さまが送付された個人情報はアットホーム(株)のサーバを経由し、お問い合わせ先の不動産会社にメールまたはFAXにて転送されるためアットホーム(株)にも保管されます。アットホーム(株)で保管された個人情報の取り扱いについては、【こちら】をご覧ください。
    また、本画面でご記入いただいた個人情報は、お問い合わせ先の不動産会社でも保管します。 お問い合わせ先の不動産会社が保管する個人情報の取り扱いについては、不動産会社に直接お問い合わせください。

    情報提供会社

    情報提供会社

    (株)クイックコンサルティング 福岡支店

    国土交通大臣免許(4)第7938号

    交通:
    西鉄天神大牟田線/西鉄福岡(天神)駅 徒歩2分
    福岡県福岡市中央区天神1丁目6-8 天神ツインビル4F
    TEL:
    092-791-5500
    FAX:
    092-791-5511
    所属団体:
    (公社)全日本不動産協会会員
    (一社)九州不動産公正取引協議会加盟

    取引態様:仲介

    • 会社情報
    • 80506897
    スマートフォンで
    この不動産会社を見る
    QRコード
    • お問い合わせ
    • 提携サイト等より掲載されている物件情報につきましては、不動産会社詳細情報にリンクされていないものがあります。
    • 物件に関するお問合せは、物件詳細ページの「情報提供会社」に表示されている不動産会社へ直接お願いいたします。
    • 間取図は、現況を優先させていただきます。
    • 映像は物件の一部を撮影したものです。物件の契約にあたっての最終判断はご自身の判断に基づいて行ってください。
    • 仲介手数料について仲介手数料

    アットホームは物件情報の適正化に努めております。 内容に誤りがある場合にはこちらへご連絡ください。


    物件画像: