賃貸や不動産はアットホーム-賃貸マンション・賃貸物件・不動産なら アットホーム

広島県広島市中区紙屋町2丁目(紙屋町西駅)の貸事務所:物件詳細

  • 物件詳細
  • 情報の見方
  • 印刷用画面
交通
所在地
駅徒歩 賃料
管理費等
敷金/保証金
礼金
使用部分面積
坪数/坪単価
物件種目
築年月

広島電鉄本線/紙屋町西

広島県広島市中区紙屋町2丁目

3分

66万円

なし

6ヶ月 / なし

なし

242.47m²

73.34坪/0.8999万円

貸事務所

1963年1月(築63年4ヶ月)

おすすめコメント  スタッフ: 猪川 未来

◆紙屋町西電停から徒歩約3分◆来店型事務所向けのおしゃれな内装!◆広島バスセンター、電停が近く多方面のアクセスが便利!◆本通商店街が近く賑やかな周辺環境!◆機械警備、個別空調、エレベーター設備有!

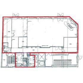
間取図

間取図

外観

外観

<
その他の画像
  • 外観
  • 玄関
  • 共有部分
  • 室内
  • 室内
  • 室内
  • 室内
  • 室内
  • 洗面
  • トイレ
  • トイレ
  • キッチン
  • コンビニ
  • 郵便局
  • 銀行
  • 銀行
  • 銀行
  • 販売店
  • 役所
  • 警察署、交番
>
    • お問い合わせ
    交通

    広島電鉄本線 紙屋町西駅 徒歩3分

    その他の交通

    広島電鉄宇品線 本通駅 徒歩3分

    広島電鉄宇品線 紙屋町東駅 徒歩2分

    所在地 広島県広島市中区紙屋町2丁目
    物件種目 貸事務所
    賃料 66万円 管理費等 なし
    敷金 / 保証金 6ヶ月 / なし 礼金 なし
    敷引 坪単価 0.8999万円
    保証金償却 権利金
    造作譲渡 その他一時金
    維持費等 保険等
    使用部分面積 242.47m² 坪数 73.34坪
    築年月 1963年1月(築63年4ヶ月) 階建 / 階 地上7階地下1階建 / 5階
    駐車場 バイク置き場
    駐輪場 土地面積
    接道状況 用途地域
    間取り 建物構造 SRC
    アピールポイント ◆広島市中区中心部エリアは弊社にお任せください!◆
    紙屋町西電停徒歩約3分、本通駅目の前の好立地な物件のご紹介です!
    1フロア1テナントでご利用いただけます。ブラウンを基調とした内装となっています!
    1階にはコンビニ、家電量販店、百貨店が周辺にあり、本通商店街も近いため
    賑やかな環境です。
    機械警備、個別空調、エレベーター設備も備えられているため快適にお仕事をしていただけます!
    広島市中心部で物件をお探しの方は是非お気軽にお問い合わせください!
    建物名・部屋番号 ウツミ屋紙屋町ビル
    リフォーム履歴
    リノベーション履歴
    特記事項 24時間利用可、土曜日利用可、土日・祝日利用可、1フロア1テナント、24時間セキュリティー、天井高2.5M以上
    備考
    管理形態/管理員の勤務形態:-/-
    エネルギー消費性能
    断熱性能
    目安光熱費
    バス・トイレ 専有部分に男女別トイレあり
    キッチン
    設備・サービス 個別空調、エアコン、インターネット対応、光ファイバー
    その他 エレベーター
    契約期間 5年 条件等 定期借家定期借家
    引渡可能時期 即時 現況
    更新料 物件番号 6989191682
    情報公開日 2026年1月23日 次回更新予定日 2026年4月16日
    ケータイ用バーコード

    QRコード

    スマートフォンでこの物件を見る
    スマートフォンからもこの物件をご覧になれます。
    ※「-」と表示されている項目については、情報提供会社にご確認ください。

    この物件の周辺情報

    周辺施設 セブンイレブン広島紙屋町2丁目店
    距離 1m
    周辺施設 広島中郵便局
    距離 183m
    周辺施設 みずほ銀行広島支店
    距離 74m
    周辺施設 広島銀行本店営業部
    距離 124m
    周辺施設 ゆうちょ銀行広島支店サンモール内出張所
    距離 208m
    周辺施設 ウォンツシャレオ南通り店
    距離 124m
    周辺施設 広島県庁
    距離 353m
    周辺施設 広島中央警察署
    距離 499m

    クイックお問い合わせ

    ここから簡単にお問い合わせをすることができます。
    (SSLでの暗号化での送信を希望されるお客さまは こちら よりお問い合わせください)

    お問い合わせ内容(必須)
    物件のお問い合わせ理由(必須)
    お名前・ご担当者様名(必須) 姓  名 
    メールアドレス(必須)
    ※携帯電話のメールアドレスをご入力される方はこちらをご確認ください
    電話番号(必須)
    - -
    備考欄 希望条件、物件案内希望日、質問などがございましたらご記入ください。
    お問い合わせを行う前に「個人情報の取り扱いについて」を必ずお読みください。
    「個人情報の取り扱いについて」に同意いただいた場合は「上記にご同意の上 確認画面へ進む」のボタンをクリックしてください。

    個人情報の取り扱いについて

    皆さまが送付された個人情報はアットホーム(株)のサーバを経由し、お問い合わせ先の不動産会社にメールまたはFAXにて転送されるためアットホーム(株)にも保管されます。アットホーム(株)で保管された個人情報の取り扱いについては、【こちら】をご覧ください。
    また、本画面でご記入いただいた個人情報は、お問い合わせ先の不動産会社でも保管します。 お問い合わせ先の不動産会社が保管する個人情報の取り扱いについては、不動産会社に直接お問い合わせください。

    情報提供会社

    情報提供会社

    (株)クイックコンサルティング 広島支店

    国土交通大臣免許(4)第7938号

    交通:
    広島電鉄本線/紙屋町東駅 徒歩3分
    広島県広島市中区立町2-23 野村不動産広島ビル6F
    TEL:
    082-242-6600
    FAX:
    082-242-6602
    所属団体:
    (公社)全日本不動産協会会員
    中国地区不動産公正取引協議会加盟

    取引態様:仲介

    • 会社情報
    • 50108329
    スマートフォンで
    この不動産会社を見る
    QRコード
    • お問い合わせ
    • 提携サイト等より掲載されている物件情報につきましては、不動産会社詳細情報にリンクされていないものがあります。
    • 物件に関するお問合せは、物件詳細ページの「情報提供会社」に表示されている不動産会社へ直接お願いいたします。
    • 間取図は、現況を優先させていただきます。
    • 映像は物件の一部を撮影したものです。物件の契約にあたっての最終判断はご自身の判断に基づいて行ってください。
    • 仲介手数料について仲介手数料

    アットホームは物件情報の適正化に努めております。 内容に誤りがある場合にはこちらへご連絡ください。


    物件画像: