賃貸や不動産はアットホーム-賃貸マンション・賃貸物件・不動産なら アットホーム

東京都新宿区西新宿6丁目(西新宿駅)の貸事務所:物件詳細

  • 物件詳細
  • 情報の見方
  • 印刷用画面
交通
所在地
駅徒歩 賃料
管理費等
敷金/保証金
礼金
使用部分面積
坪数/坪単価
物件種目
築年月

東京メトロ丸ノ内線/西新宿

東京都新宿区西新宿6丁目

5分

93.346万円

186,692円

10ヶ月 / なし

1ヶ月

140.26m²

42.42坪/2.2001万円

貸事務所

1994年1月(築32年2ヶ月)

おすすめコメント

公園通り沿いに位置する視認性良好の立地!

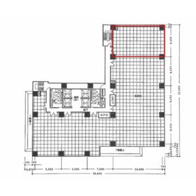
間取図

間取図

外観

外観

その他の画像
  • エントランス
  • 共有部分
  • 共有部分
  • トイレ
  • トイレ
  • トイレ
    • お問い合わせ
    交通

    東京メトロ丸ノ内線 西新宿駅 徒歩5分

    その他の交通

    都営大江戸線 都庁前駅 徒歩9分

    都営大江戸線 西新宿五丁目駅 徒歩10分

    所在地 東京都新宿区西新宿6丁目
    物件種目 貸事務所
    賃料 93.346万円 管理費等 186,692円
    敷金 / 保証金 10ヶ月 / なし 礼金 1ヶ月
    敷引 坪単価 2.2001万円
    保証金償却 権利金
    造作譲渡 その他一時金
    維持費等 保険等
    使用部分面積 140.26m² 坪数 42.42坪
    築年月 1994年1月(築32年2ヶ月) 階建 / 階 地上13階地下2階建 / 11階
    駐車場 有 49,500円/月(空き19台)
    Aブロック空き5台(49500円/税込)  BCブロック空き14台(44000円/税込)
    バイク置き場
    駐輪場 土地面積
    接道状況 用途地域
    間取り 建物構造 RC
    アピールポイント 公園通り沿いに位置する視認性良好の立地!
    建物名・部屋番号 パークウエストビル 1101
    リフォーム履歴
    リノベーション履歴
    特記事項 24時間利用可、土日・祝日利用可、有人警備、OAフロア、飲食店不可、駐車場2台分、駐車場3台分以上、24時間セキュリティー、耐震構造(新耐震基準)、天井高2.5M以上
    備考
    賃貸保証等:加入要(1ヶ月)
    管理形態/管理員の勤務形態:-/-
    ■黒川紀章氏設計によるオフィスビル
    ■ガラスカーテンウォール外観の建物
    ■エレベーター4基設置
    ■分割利用相談可能
    ■再契約可能
    ■機械式駐車場空き有
     駐車場仕様
     Aブロック全長5300幅190高1550
     Bブロック全長5050幅1850高1550
    エネルギー消費性能
    断熱性能
    目安光熱費
    バス・トイレ 共用部分に男女別トイレあり
    キッチン
    設備・サービス 個別空調、動力あり、インターネット対応、光ファイバー
    その他 エレベーター2基以上、エレベーター
    契約期間 2年 条件等 定期借家定期借家
    引渡可能時期 2026年3月中旬予定 現況 居住中
    仲介手数料 1ヶ月    
    更新料 新賃料 1ヶ月 物件番号 6988782815
    情報公開日 2025年12月16日 次回更新予定日 2026年3月2日
    ケータイ用バーコード

    QRコード

    スマートフォンでこの物件を見る
    スマートフォンからもこの物件をご覧になれます。
    ※「-」と表示されている項目については、情報提供会社にご確認ください。

    この物件の周辺情報

    周辺施設 新宿オークシティ
    距離 208m
    周辺施設 セブンイレブンDR西新宿ダイワロイネットホテル店
    距離 112m
    周辺施設 新宿アイタウン郵便局
    距離 315m

    クイックお問い合わせ

    ここから簡単にお問い合わせをすることができます。
    (SSLでの暗号化での送信を希望されるお客さまは こちら よりお問い合わせください)

    お問い合わせ内容(必須)
    物件のお問い合わせ理由(必須)
    お名前・ご担当者様名(必須) 姓  名 
    メールアドレス(必須)
    ※携帯電話のメールアドレスをご入力される方はこちらをご確認ください
    電話番号(必須)
    - -
    備考欄 希望条件、物件案内希望日、質問などがございましたらご記入ください。
    お問い合わせを行う前に「個人情報の取り扱いについて」を必ずお読みください。
    「個人情報の取り扱いについて」に同意いただいた場合は「上記にご同意の上 確認画面へ進む」のボタンをクリックしてください。

    個人情報の取り扱いについて

    皆さまが送付された個人情報はアットホーム(株)のサーバを経由し、お問い合わせ先の不動産会社にメールまたはFAXにて転送されるためアットホーム(株)にも保管されます。アットホーム(株)で保管された個人情報の取り扱いについては、【こちら】をご覧ください。
    また、本画面でご記入いただいた個人情報は、お問い合わせ先の不動産会社でも保管します。 お問い合わせ先の不動産会社が保管する個人情報の取り扱いについては、不動産会社に直接お問い合わせください。

    情報提供会社

    情報提供会社

    (株)プロスパート

    国土交通大臣免許(2)第9685号

    交通:
    東京メトロ日比谷線/小伝馬町駅 徒歩3分
    東京都中央区日本橋小伝馬町14-12 岩並ビル1F
    TEL:
    03-6206-2025
    FAX:
    03-6206-2462
    所属団体:
    (公社)全日本不動産協会会員
    (公社)首都圏不動産公正取引協議会加盟

    取引態様:仲介

    • 会社情報
    • 00260779
    スマートフォンで
    この不動産会社を見る
    QRコード
    • お問い合わせ
    • 提携サイト等より掲載されている物件情報につきましては、不動産会社詳細情報にリンクされていないものがあります。
    • 物件に関するお問合せは、物件詳細ページの「情報提供会社」に表示されている不動産会社へ直接お願いいたします。
    • 間取図は、現況を優先させていただきます。
    • 映像は物件の一部を撮影したものです。物件の契約にあたっての最終判断はご自身の判断に基づいて行ってください。
    • 仲介手数料について仲介手数料

    アットホームは物件情報の適正化に努めております。 内容に誤りがある場合にはこちらへご連絡ください。


    物件画像: