賃貸や不動産はアットホーム-賃貸マンション・賃貸物件・不動産なら アットホーム

東京都新宿区天神町(神楽坂駅)の貸事務所:物件詳細

  • 物件詳細
  • 情報の見方
  • 印刷用画面
交通
所在地
駅徒歩 賃料
管理費等
敷金/保証金
礼金
使用部分面積
坪数/坪単価
物件種目
築年月

東京メトロ東西線/神楽坂 新着

東京都新宿区天神町

4分

30.96万円

77,418円

5ヶ月 / 5ヶ月

なし

77.58m²

23.46坪/1.3193万円

貸事務所

1996年2月(築29年11ヶ月)

おすすめコメント  スタッフ: 上野 直貴

防犯カメラやオートロック等設備が充実してます。鉄骨鉄筋コンクリート造地上9階地下1階建ての賃貸事務所物件です。床仕様タイルカーペット室内9人前後サイズです。お気軽にお問い合わせください。

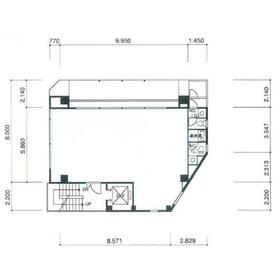
間取図

間取図

<
その他の画像
>
    • お問い合わせ
    交通

    東京メトロ東西線 神楽坂駅 徒歩4分

    その他の交通

    都営大江戸線 牛込神楽坂駅 徒歩11分

    東京メトロ有楽町線 江戸川橋駅 徒歩10分

    所在地 東京都新宿区天神町
    物件種目 貸事務所
    賃料 30.96万円 管理費等 77,418円
    敷金 / 保証金 5ヶ月 / 5ヶ月 礼金 なし
    敷引 坪単価 1.3193万円
    保証金償却 権利金
    造作譲渡 その他一時金
    維持費等 保険等
    使用部分面積 77.58m² 坪数 23.46坪
    築年月 1996年2月(築29年11ヶ月) 階建 / 階 地上9階地下1階建 / 7階
    駐車場 バイク置き場
    駐輪場 土地面積
    接道状況 用途地域
    間取り 建物構造 SRC
    建物名・部屋番号 神楽坂Uビル 7階
    リフォーム履歴
    リノベーション履歴
    特記事項 飲食店不可、耐震構造(新耐震基準)
    備考
    賃貸保証等:加入要(月額固定費1ヶ月分)
    管理形態/管理員の勤務形態:-/-
    エネルギー消費性能
    断熱性能
    目安光熱費
    バス・トイレ 専有部分に男女別トイレあり
    キッチン
    設備・サービス 個別空調、オートロック、防犯カメラ、エアコン、暖房、冷房
    その他 エレベーター
    契約期間 2年 条件等
    引渡可能時期 即時 現況
    仲介手数料 1ヶ月 適格請求書発行
    更新料 物件番号 6988782037
    情報公開日 2025年12月15日 次回更新予定日 2025年12月29日
    ケータイ用バーコード

    QRコード

    スマートフォンでこの物件を見る
    スマートフォンからもこの物件をご覧になれます。
    ※「-」と表示されている項目については、情報提供会社にご確認ください。

    この物件の周辺情報

    周辺施設 まいばすけっと神楽坂駅西店
    距離 70m
    周辺施設 ファミリーマート新宿天神町店
    距離 131m
    周辺施設 新宿天神郵便局
    距離 145m
    周辺施設 オリジン弁当神楽坂店
    距離 105m
    周辺施設 リンガーハット新宿神楽坂店
    距離 119m
    周辺施設 セブンイレブン新宿神楽坂駅西店
    距離 129m
    周辺施設 ココカラファイン神楽坂中里町店
    距離 274m
    周辺施設 ファミリーマート新宿神楽坂駅前店
    距離 195m

    クイックお問い合わせ

    ここから簡単にお問い合わせをすることができます。
    (SSLでの暗号化での送信を希望されるお客さまは こちら よりお問い合わせください)

    お問い合わせ内容(必須)
    物件のお問い合わせ理由(必須)
    お名前・ご担当者様名(必須) 姓  名 
    メールアドレス(必須)
    ※携帯電話のメールアドレスをご入力される方はこちらをご確認ください
    電話番号(必須)
    - -
    備考欄 希望条件、物件案内希望日、質問などがございましたらご記入ください。
    お問い合わせを行う前に「個人情報の取り扱いについて」を必ずお読みください。
    「個人情報の取り扱いについて」に同意いただいた場合は「上記にご同意の上 確認画面へ進む」のボタンをクリックしてください。

    個人情報の取り扱いについて

    皆さまが送付された個人情報はアットホーム(株)のサーバを経由し、お問い合わせ先の不動産会社にメールまたはFAXにて転送されるためアットホーム(株)にも保管されます。アットホーム(株)で保管された個人情報の取り扱いについては、【こちら】をご覧ください。
    また、本画面でご記入いただいた個人情報は、お問い合わせ先の不動産会社でも保管します。 お問い合わせ先の不動産会社が保管する個人情報の取り扱いについては、不動産会社に直接お問い合わせください。

    情報提供会社

    情報提供会社

    (株)ライトハウス

    東京都知事免許(1)第106093号

    交通:
    東京メトロ半蔵門線/半蔵門駅 徒歩2分
    東京都千代田区隼町3-19 清水ビル1階
    TEL:
    03-6261-3433
    FAX:
    03-6261-3439
    所属団体:
    (公社)全日本不動産協会会員
    (公社)首都圏不動産公正取引協議会加盟

    取引態様:仲介

    • 会社情報
    • 00270108
    スマートフォンで
    この不動産会社を見る
    QRコード
    • お問い合わせ
    • 提携サイト等より掲載されている物件情報につきましては、不動産会社詳細情報にリンクされていないものがあります。
    • 物件に関するお問合せは、物件詳細ページの「情報提供会社」に表示されている不動産会社へ直接お願いいたします。
    • 間取図は、現況を優先させていただきます。
    • 映像は物件の一部を撮影したものです。物件の契約にあたっての最終判断はご自身の判断に基づいて行ってください。
    • 仲介手数料について仲介手数料

    アットホームは物件情報の適正化に努めております。 内容に誤りがある場合にはこちらへご連絡ください。


    物件画像: