賃貸や不動産はアットホーム-賃貸マンション・賃貸物件・不動産なら アットホーム

東京都千代田区内神田1丁目(淡路町駅)の貸事務所:物件詳細

  • 物件詳細
  • 情報の見方
  • 印刷用画面
交通
所在地
駅徒歩 賃料
管理費等
敷金/保証金
礼金
使用部分面積
坪数/坪単価
物件種目
築年月

東京メトロ丸ノ内線/淡路町 新着

東京都千代田区内神田1丁目

5分

110.583万円

なし / 5ヶ月

なし

184.63m²

55.85坪/1.98万円

貸事務所

1987年11月(築38年2ヶ月)

おすすめコメント  スタッフ: 大木

神田エリア 外堀通り沿い角地の物件!

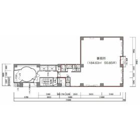
間取図

間取図

外観

外観

<
その他の画像
  • 外観
  • 室内
  • 室内
  • 室内
  • トイレ
  • トイレ
  • 設備
  • 設備
  • 洗面
  • 室内
  • エントランス
  • エントランス
  • その他
  • 駐車場
  • 駐車場
  • ショッピング施設
  • コンビニ
  • 飲食店
  • 飲食店
  • 飲食店
  • 販売店
  • 病院
  • 郵便局
>
    • お問い合わせ
    交通

    東京メトロ丸ノ内線 淡路町駅 徒歩5分

    その他の交通

    JR山手線 神田駅 徒歩6分

    都営新宿線 小川町駅 徒歩7分

    所在地 東京都千代田区内神田1丁目
    物件種目 貸事務所
    賃料 110.583万円 管理費等
    敷金 / 保証金 なし / 5ヶ月 礼金 なし
    敷引 坪単価 1.98万円
    保証金償却 年1ヶ月 契約時償却 権利金
    造作譲渡 その他一時金
    維持費等 保険等
    使用部分面積 184.63m² 坪数 55.85坪
    築年月 1987年11月(築38年2ヶ月) 階建 / 階 9階建 / 4階
    駐車場 バイク置き場
    駐輪場 土地面積
    接道状況 用途地域
    間取り 建物構造 SRC
    アピールポイント 有料貸会議室・24hコインパーキングがビル内にあります。
    ■上限料金
    (月〜土)8:00〜22:00最大 3,000円 (繰り返し可)
    (日祝)8:00〜22:00最大 1,500円 (繰り返し可)
    (全日)22:00〜8:00最大 500円
    ■通常料金
    (全日)0:00〜24:00 300円 15分
    建物名・部屋番号 内神田東誠ビル 4階
    リフォーム履歴
    リノベーション履歴
    特記事項 24時間利用可、土曜日利用可、土日・祝日利用可、OAフロア、飲食店不可、24時間セキュリティー、耐震構造(新耐震基準)
    備考
    賃貸保証等:加入要(アース保証会社 初回保証委託料:月額固定費の100% 年次更新料:月額固定費の10%)
    管理形態/管理員の勤務形態:-/-
    【税率10%算出。税率変動に準ず。】
    ※保証会社未加入時は保証金8ヶ月
    再契約料:新賃料1ヶ月分
    天井高:2,410mm
    エネルギー消費性能
    断熱性能
    目安光熱費
    バス・トイレ 専有部分に男女別トイレあり
    キッチン
    設備・サービス 個別空調、オートロック、給湯、光ファイバー
    その他 エレベーター2基以上
    契約期間 3年 条件等 定期借家定期借家
    引渡可能時期 2026年4月上旬予定 現況 使用中
    仲介手数料 1ヶ月    
    更新料 物件番号 6988713308
    情報公開日 2025年12月10日 次回更新予定日 2025年12月24日
    ケータイ用バーコード

    QRコード

    スマートフォンでこの物件を見る
    スマートフォンからもこの物件をご覧になれます。
    ※「-」と表示されている項目については、情報提供会社にご確認ください。

    この物件の周辺情報

    周辺施設 まいばすけっと神田駅西店
    距離 30m
    周辺施設 ファミリーマート神田司町店
    距離 113m
    周辺施設 カフェ・ベローチェ神田美土代町店
    距離 145m
    周辺施設 松屋神田西口店
    距離 115m
    周辺施設 らあめん花月嵐神田店
    距離 216m
    周辺施設 スギ薬局神田西口通り店
    距離 147m
    周辺施設 医療法人財団同仁記念会明和病院
    距離 713m
    周辺施設 神田駅前郵便局
    距離 400m

    クイックお問い合わせ

    ここから簡単にお問い合わせをすることができます。
    (SSLでの暗号化での送信を希望されるお客さまは こちら よりお問い合わせください)

    お問い合わせ内容(必須)
    物件のお問い合わせ理由(必須)
    お名前・ご担当者様名(必須) 姓  名 
    メールアドレス(必須)
    ※携帯電話のメールアドレスをご入力される方はこちらをご確認ください
    電話番号(必須)
    - -
    備考欄 希望条件、物件案内希望日、質問などがございましたらご記入ください。
    お問い合わせを行う前に「個人情報の取り扱いについて」を必ずお読みください。
    「個人情報の取り扱いについて」に同意いただいた場合は「上記にご同意の上 確認画面へ進む」のボタンをクリックしてください。

    個人情報の取り扱いについて

    皆さまが送付された個人情報はアットホーム(株)のサーバを経由し、お問い合わせ先の不動産会社にメールまたはFAXにて転送されるためアットホーム(株)にも保管されます。アットホーム(株)で保管された個人情報の取り扱いについては、【こちら】をご覧ください。
    また、本画面でご記入いただいた個人情報は、お問い合わせ先の不動産会社でも保管します。 お問い合わせ先の不動産会社が保管する個人情報の取り扱いについては、不動産会社に直接お問い合わせください。

    情報提供会社

    情報提供会社

    (株)アースウィンド 神田店

    東京都知事免許(5)第79601号

    交通:
    JR中央線/神田駅 徒歩3分
    東京都千代田区鍛冶町1丁目9-1 第二大久保ビル2階
    TEL:
    03-5297-5666
    FAX:
    03-5297-5665
    所属団体:
    (公社)全日本不動産協会会員
    (公社)首都圏不動産公正取引協議会加盟

    取引態様:仲介

    • 会社情報
    • 00016657
    スマートフォンで
    この不動産会社を見る
    QRコード
    • お問い合わせ
    • 提携サイト等より掲載されている物件情報につきましては、不動産会社詳細情報にリンクされていないものがあります。
    • 物件に関するお問合せは、物件詳細ページの「情報提供会社」に表示されている不動産会社へ直接お願いいたします。
    • 間取図は、現況を優先させていただきます。
    • 映像は物件の一部を撮影したものです。物件の契約にあたっての最終判断はご自身の判断に基づいて行ってください。
    • 仲介手数料について仲介手数料

    アットホームは物件情報の適正化に努めております。 内容に誤りがある場合にはこちらへご連絡ください。


    物件画像: