賃貸や不動産はアットホーム-賃貸マンション・賃貸物件・不動産なら アットホーム

東京都千代田区富士見1丁目(飯田橋駅)の貸事務所:物件詳細

  • 物件詳細
  • 情報の見方
  • 印刷用画面
交通
所在地
駅徒歩 賃料
管理費等
敷金/保証金
礼金
使用部分面積
坪数/坪単価
物件種目
築年月

JR総武線/飯田橋 新着

東京都千代田区富士見1丁目

5分

20.96万円

33,000円

なし / 6ヶ月

なし

63.03m²

19.06坪/1.0994万円

貸事務所

1986年8月(築39年7ヶ月)

おすすめコメント  スタッフ: 草間 玲惟菜

飯田橋駅徒歩5分の通勤に便利な立地。24時間利用でき、機械警備も付いてるためセキュリティ面も安心。近隣は閑静な環境となっており、駅周辺には飲食店も点在しており便利です。春には窓から桜が見れます。

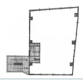
間取図

間取図

外観

外観

<
その他の画像
  • トイレ
  • キッチン
  • 室内
  • 室内
  • 室内
  • 室内
  • 室内
  • 室内
  • 室内
  • 室内
  • 室内
  • 室内
  • 室内
  • 設備
>
    • お問い合わせ
    交通

    JR総武線 飯田橋駅 徒歩5分

    その他の交通

    東京メトロ東西線 飯田橋駅 徒歩5分

    東京メトロ有楽町線 飯田橋駅 徒歩5分

    所在地 東京都千代田区富士見1丁目
    物件種目 貸事務所
    賃料 20.96万円 管理費等 33,000円
    敷金 / 保証金 なし / 6ヶ月 礼金 なし
    敷引 坪単価 1.0994万円
    保証金償却 解約時2ヶ月 権利金
    造作譲渡 その他一時金
    維持費等 保険等
    使用部分面積 63.03m² 坪数 19.06坪
    築年月 1986年8月(築39年7ヶ月) 階建 / 階 5階建 / 3階
    駐車場 バイク置き場
    駐輪場 土地面積
    接道状況 用途地域
    間取り 建物構造 RC
    アピールポイント お気軽にお問い合わせ下さい。
    ◆お問合せ先◆
    【03-6261-3433】
    建物名・部屋番号 パリスビル 3階
    リフォーム履歴
    リノベーション履歴
    特記事項 24時間利用可、1フロア1テナント
    備考
    賃貸保証等:加入要(月額固定費の1ヶ月分)
    管理形態/管理員の勤務形態:-/-
    エネルギー消費性能
    断熱性能
    目安光熱費
    バス・トイレ 専有部分にトイレあり
    キッチン
    設備・サービス 個別空調、エアコン、暖房、冷房
    その他
    契約期間 2年 条件等
    引渡可能時期 即時 現況
    仲介手数料 1ヶ月 適格請求書発行
    更新料 新賃料 1ヶ月 物件番号 6988710738
    情報公開日 2026年2月16日 次回更新予定日 2026年3月2日
    ケータイ用バーコード

    QRコード

    スマートフォンでこの物件を見る
    スマートフォンからもこの物件をご覧になれます。
    ※「-」と表示されている項目については、情報提供会社にご確認ください。

    この物件の周辺情報

    周辺施設 エフワン飯田橋店
    距離 243m
    周辺施設 飯田橋サクラテラス
    距離 405m
    周辺施設 成城石井飯田橋サクラテラス店
    距離 417m
    周辺施設 セブンイレブン千代田大神宮通り店
    距離 94m
    周辺施設 ミニストップ飯田橋駅西口店
    距離 168m
    周辺施設 喫茶室ルノアール飯田橋西口店
    距離 112m
    周辺施設 CoCo壱番屋JR飯田橋駅西口店
    距離 128m
    周辺施設 ドトールコーヒーショップ飯田橋富士見店
    距離 148m

    クイックお問い合わせ

    ここから簡単にお問い合わせをすることができます。
    (SSLでの暗号化での送信を希望されるお客さまは こちら よりお問い合わせください)

    お問い合わせ内容(必須)
    物件のお問い合わせ理由(必須)
    お名前・ご担当者様名(必須) 姓  名 
    メールアドレス(必須)
    ※携帯電話のメールアドレスをご入力される方はこちらをご確認ください
    電話番号(必須)
    - -
    備考欄 希望条件、物件案内希望日、質問などがございましたらご記入ください。
    お問い合わせを行う前に「個人情報の取り扱いについて」を必ずお読みください。
    「個人情報の取り扱いについて」に同意いただいた場合は「上記にご同意の上 確認画面へ進む」のボタンをクリックしてください。

    個人情報の取り扱いについて

    皆さまが送付された個人情報はアットホーム(株)のサーバを経由し、お問い合わせ先の不動産会社にメールまたはFAXにて転送されるためアットホーム(株)にも保管されます。アットホーム(株)で保管された個人情報の取り扱いについては、【こちら】をご覧ください。
    また、本画面でご記入いただいた個人情報は、お問い合わせ先の不動産会社でも保管します。 お問い合わせ先の不動産会社が保管する個人情報の取り扱いについては、不動産会社に直接お問い合わせください。

    情報提供会社

    情報提供会社

    (株)ライトハウス

    東京都知事免許(1)第106093号

    交通:
    東京メトロ半蔵門線/半蔵門駅 徒歩2分
    東京都千代田区隼町3-19 清水ビル1階
    TEL:
    03-6261-3433
    FAX:
    03-6261-3439
    所属団体:
    (公社)全日本不動産協会会員
    (公社)首都圏不動産公正取引協議会加盟

    取引態様:仲介

    • 会社情報
    • 00270108
    スマートフォンで
    この不動産会社を見る
    QRコード
    • お問い合わせ
    • 提携サイト等より掲載されている物件情報につきましては、不動産会社詳細情報にリンクされていないものがあります。
    • 物件に関するお問合せは、物件詳細ページの「情報提供会社」に表示されている不動産会社へ直接お願いいたします。
    • 間取図は、現況を優先させていただきます。
    • 映像は物件の一部を撮影したものです。物件の契約にあたっての最終判断はご自身の判断に基づいて行ってください。
    • 仲介手数料について仲介手数料

    アットホームは物件情報の適正化に努めております。 内容に誤りがある場合にはこちらへご連絡ください。


    物件画像: