賃貸や不動産はアットホーム-賃貸マンション・賃貸物件・不動産なら アットホーム

大阪府大阪市中央区本町3丁目(本町駅)の貸事務所:物件詳細

  • 物件詳細
  • 情報の見方
  • 印刷用画面
交通
所在地
駅徒歩 賃料
管理費等
敷金/保証金
礼金
使用部分面積
坪数/坪単価
物件種目
築年月

地下鉄御堂筋線/本町 新着

大阪府大阪市中央区本町3丁目

3分

要確認

要確認

300.28m²

90.83坪/要確認

貸事務所

2026年2月(新築)

おすすめコメント  スタッフ: 慈幸 大志

大阪市中央区本町3丁目に建築中の賃貸オフィスビルです。2026年2月竣工予定です。本町駅から徒歩1分と言う好立地がまず魅力的です。

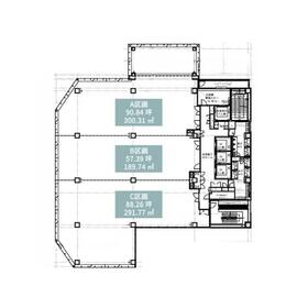
間取図

間取図

その他の画像
  • コンビニ
  • 郵便局
  • 銀行
    • お問い合わせ
    交通

    地下鉄御堂筋線 本町駅 徒歩3分

    その他の交通

    地下鉄中央線 本町駅 徒歩7分

    地下鉄堺筋線 堺筋本町駅 徒歩7分

    所在地 大阪府大阪市中央区本町3丁目
    物件種目 貸事務所
    賃料 要確認 管理費等 要確認
    敷金 / 保証金 要確認 礼金 要確認
    敷引 要確認 坪単価 要確認
    保証金償却 要確認 権利金
    造作譲渡 その他一時金
    維持費等 保険等
    使用部分面積 300.28m² 坪数 90.83坪
    築年月 2026年2月(新築) 階建 / 階 地上14階地下1階建 / 4階
    駐車場 バイク置き場
    駐輪場 土地面積
    接道状況 用途地域
    間取り 建物構造 鉄骨造
    建物名・部屋番号 SYNASIA本町ビル 4F 90.84坪
    リフォーム履歴
    リノベーション履歴
    特記事項 OAフロア、耐震構造(新耐震基準)、天井高2.5M以上
    備考
    管理形態/管理員の勤務形態:-/-
    エネルギー消費性能
    断熱性能
    目安光熱費
    バス・トイレ 共用部分に男女別トイレあり
    キッチン
    設備・サービス 個別空調、暖房、冷房、光ファイバー
    その他 エレベーター2基以上、エレベーター
    契約期間 要確認 条件等
    引渡可能時期 2026年9月上旬予定 現況 使用中
    更新料 要確認 物件番号 6988708539
    情報公開日 2025年12月10日 次回更新予定日 2025年12月24日
    ケータイ用バーコード

    QRコード

    スマートフォンでこの物件を見る
    スマートフォンからもこの物件をご覧になれます。
    ※「-」と表示されている項目については、情報提供会社にご確認ください。

    この物件の周辺情報

    周辺施設 ファミリーマートカツラギ南本町店
    距離 160m
    周辺施設 プロント安土町店
    距離 121m
    周辺施設 31アイスクリーム御堂筋本町店
    距離 150m
    周辺施設 ダイコクドラッグ船場西店
    距離 150m
    周辺施設 御堂筋本町郵便局
    距離 451m
    周辺施設 みずほ銀行南船場支店
    距離 20m
    周辺施設 東横堀緑道
    距離 1223m
    周辺施設 江綿丼池パーキング
    距離 105m

    クイックお問い合わせ

    ここから簡単にお問い合わせをすることができます。
    (SSLでの暗号化での送信を希望されるお客さまは こちら よりお問い合わせください)

    お問い合わせ内容(必須)
    物件のお問い合わせ理由(必須)
    お名前・ご担当者様名(必須) 姓  名 
    メールアドレス(必須)
    ※携帯電話のメールアドレスをご入力される方はこちらをご確認ください
    電話番号(必須)
    - -
    備考欄 希望条件、物件案内希望日、質問などがございましたらご記入ください。
    お問い合わせを行う前に「個人情報の取り扱いについて」を必ずお読みください。
    「個人情報の取り扱いについて」に同意いただいた場合は「上記にご同意の上 確認画面へ進む」のボタンをクリックしてください。

    個人情報の取り扱いについて

    皆さまが送付された個人情報はアットホーム(株)のサーバを経由し、お問い合わせ先の不動産会社にメールまたはFAXにて転送されるためアットホーム(株)にも保管されます。アットホーム(株)で保管された個人情報の取り扱いについては、【こちら】をご覧ください。
    また、本画面でご記入いただいた個人情報は、お問い合わせ先の不動産会社でも保管します。 お問い合わせ先の不動産会社が保管する個人情報の取り扱いについては、不動産会社に直接お問い合わせください。

    情報提供会社

    情報提供会社

    (株)クイックコンサルティング 大阪支店

    国土交通大臣免許(4)第7938号

    交通:
    地下鉄四つ橋線/本町駅 徒歩1分
    大阪府大阪市西区靱本町1丁目11-7 信濃橋三井ビル11F
    TEL:
    06-6147-9791
    FAX:
    06-6147-9792
    所属団体:
    (公社)全日本不動産協会会員
    (公社)近畿地区不動産公正取引協議会加盟

    取引態様:仲介

    • 会社情報
    • 50108170
    スマートフォンで
    この不動産会社を見る
    QRコード
    • お問い合わせ
    • 提携サイト等より掲載されている物件情報につきましては、不動産会社詳細情報にリンクされていないものがあります。
    • 物件に関するお問合せは、物件詳細ページの「情報提供会社」に表示されている不動産会社へ直接お願いいたします。
    • 間取図は、現況を優先させていただきます。
    • 映像は物件の一部を撮影したものです。物件の契約にあたっての最終判断はご自身の判断に基づいて行ってください。
    • 仲介手数料について仲介手数料

    アットホームは物件情報の適正化に努めております。 内容に誤りがある場合にはこちらへご連絡ください。


    物件画像: