賃貸や不動産はアットホーム-賃貸マンション・賃貸物件・不動産なら アットホーム

広島県広島市中区橋本町(銀山町駅)の貸事務所:物件詳細

  • 物件詳細
  • 情報の見方
  • 印刷用画面
交通
所在地
駅徒歩 賃料
管理費等
敷金/保証金
礼金
使用部分面積
坪数/坪単価
物件種目
築年月

広島電鉄本線/銀山町

広島県広島市中区橋本町

2分

要確認

要確認

85.22m²

25.77坪/要確認

貸事務所

1995年11月(築30年4ヶ月)

おすすめコメント  スタッフ: 猪川 未来

◆銀山町電停から徒歩2分◆広島駅へのアクセスも良好◆天井高2,600mmとゆとりのある貸室◆前面ガラス張りの外観が特徴的!◆個別空調や機械警備、OAフロアの他、駐車場設備有!

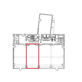
間取図

間取図

外観

外観

<
その他の画像
  • 外観
  • エントランス
  • エントランス
  • エントランス
  • エントランス
  • 共有部分
  • 共有部分
  • 共有部分
  • 室内
  • 室内
  • 室内
  • 室内
  • 駐車場
  • 周辺環境
  • ショッピング施設
  • コンビニ
  • コンビニ
  • 販売店
  • 郵便局
  • 銀行
  • 銀行
  • 銀行
>
    • お問い合わせ
    交通

    広島電鉄本線 銀山町駅 徒歩2分

    その他の交通

    広島電鉄本線 稲荷町駅 徒歩4分

    広島電鉄本線 胡町駅 徒歩5分

    所在地 広島県広島市中区橋本町
    物件種目 貸事務所
    賃料 要確認 管理費等 要確認
    敷金 / 保証金 要確認 礼金 要確認
    敷引 要確認 坪単価 要確認
    保証金償却 要確認 権利金
    造作譲渡 その他一時金
    維持費等 保険等
    使用部分面積 85.22m² 坪数 25.77坪
    築年月 1995年11月(築30年4ヶ月) 階建 / 階 地上11階地下2階建 / 4階
    駐車場 有 44,000円/月
    敷金3ヶ月
    バイク置き場
    駐輪場 土地面積
    接道状況 用途地域
    間取り 建物構造 SRC
    アピールポイント ◆広島市中区中心部エリアは弊社にお任せください!◆
    相生通りに面し、前面ガラス張りの外観が特徴の物件のご紹介です!
    最寄り駅の広島電鉄・銀山町電停から徒歩2分の場所にございます。
    オフィスが建ち並ぶエリアで、周辺には飲食店・銀行が充実しています。
    天井高は2,600㎜と開放的な事務所となっています。
    エレベーターは2基、個別空調や機械警備、OAフロアの他、駐車場設備もございます!
    紙屋町・八丁堀方面や広島駅方面どちらも徒歩圏内にありアクセスも便利です!
    建物名・部屋番号 広島NSビル
    リフォーム履歴
    リノベーション履歴
    特記事項 24時間利用可、OAフロア、24時間セキュリティー、耐震構造(新耐震基準)、天井高2.5M以上
    備考
    管理形態/管理員の勤務形態:-/-
    エネルギー消費性能
    断熱性能
    目安光熱費
    バス・トイレ 共用部分に男女別トイレあり
    キッチン
    設備・サービス 個別空調、エアコン、インターネット対応、光ファイバー
    その他 エレベーター2基以上、エレベーター
    契約期間 要確認 条件等
    引渡可能時期 2026年3月予定 現況 使用中
    更新料 要確認 物件番号 6988683784
    情報公開日 2025年12月8日 次回更新予定日 2026年2月21日
    ケータイ用バーコード

    QRコード

    スマートフォンでこの物件を見る
    スマートフォンからもこの物件をご覧になれます。
    ※「-」と表示されている項目については、情報提供会社にご確認ください。

    この物件の周辺情報

    周辺施設 福屋食品館FRED
    距離 492m
    周辺施設 ファミリーマート橋本町店
    距離 46m
    周辺施設 セブンイレブン広島稲荷橋店
    距離 106m
    周辺施設 ウォンツ銀山店
    距離 220m
    周辺施設 広島胡町郵便局
    距離 286m
    周辺施設 西日本シティ銀行広島支店
    距離 1m
    周辺施設 広島銀行銀山町支店
    距離 83m
    周辺施設 もみじ銀行本店営業部
    距離 263m

    クイックお問い合わせ

    ここから簡単にお問い合わせをすることができます。
    (SSLでの暗号化での送信を希望されるお客さまは こちら よりお問い合わせください)

    お問い合わせ内容(必須)
    物件のお問い合わせ理由(必須)
    お名前・ご担当者様名(必須) 姓  名 
    メールアドレス(必須)
    ※携帯電話のメールアドレスをご入力される方はこちらをご確認ください
    電話番号(必須)
    - -
    備考欄 希望条件、物件案内希望日、質問などがございましたらご記入ください。
    お問い合わせを行う前に「個人情報の取り扱いについて」を必ずお読みください。
    「個人情報の取り扱いについて」に同意いただいた場合は「上記にご同意の上 確認画面へ進む」のボタンをクリックしてください。

    個人情報の取り扱いについて

    皆さまが送付された個人情報はアットホーム(株)のサーバを経由し、お問い合わせ先の不動産会社にメールまたはFAXにて転送されるためアットホーム(株)にも保管されます。アットホーム(株)で保管された個人情報の取り扱いについては、【こちら】をご覧ください。
    また、本画面でご記入いただいた個人情報は、お問い合わせ先の不動産会社でも保管します。 お問い合わせ先の不動産会社が保管する個人情報の取り扱いについては、不動産会社に直接お問い合わせください。

    情報提供会社

    情報提供会社

    (株)クイックコンサルティング 広島支店

    国土交通大臣免許(4)第7938号

    交通:
    広島電鉄本線/紙屋町東駅 徒歩3分
    広島県広島市中区立町2-23 野村不動産広島ビル6F
    TEL:
    082-242-6600
    FAX:
    082-242-6602
    所属団体:
    (公社)全日本不動産協会会員
    中国地区不動産公正取引協議会加盟

    取引態様:仲介

    • 会社情報
    • 50108329
    スマートフォンで
    この不動産会社を見る
    QRコード
    • お問い合わせ
    • 提携サイト等より掲載されている物件情報につきましては、不動産会社詳細情報にリンクされていないものがあります。
    • 物件に関するお問合せは、物件詳細ページの「情報提供会社」に表示されている不動産会社へ直接お願いいたします。
    • 間取図は、現況を優先させていただきます。
    • 映像は物件の一部を撮影したものです。物件の契約にあたっての最終判断はご自身の判断に基づいて行ってください。
    • 仲介手数料について仲介手数料

    アットホームは物件情報の適正化に努めております。 内容に誤りがある場合にはこちらへご連絡ください。


    物件画像: