賃貸や不動産はアットホーム-賃貸マンション・賃貸物件・不動産なら アットホーム

静岡県浜松市中央区子安町(天竜川駅)の貸事務所:物件詳細

  • 物件詳細
  • 情報の見方
  • 印刷用画面
交通
所在地
駅徒歩 賃料
管理費等
敷金/保証金
礼金
使用部分面積
坪数/坪単価
物件種目
築年月

東海道本線/天竜川 新着

静岡県浜松市中央区子安町

26分

27.5万円

なし

3ヶ月 / なし

なし

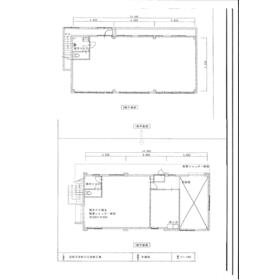
175.96m²

53.22坪/0.5167万円

貸事務所

1988年8月(築37年5ヶ月)

おすすめコメント  スタッフ: 内山真治

独立開業・支店開設・移転などをお考えの方は注目!居抜き物件のため、事務所、倉庫など幅広くすぐに営業が可能です!!

間取図

間取図

<
その他の画像
>
    • お問い合わせ
    交通

    東海道本線 天竜川駅 徒歩26分

    所在地 静岡県浜松市中央区子安町
    物件種目 貸事務所
    賃料 27.5万円 管理費等 なし
    敷金 / 保証金 3ヶ月 / なし 礼金 なし
    敷引 坪単価 0.5167万円
    保証金償却 権利金
    造作譲渡 その他一時金
    維持費等 保険等
    使用部分面積 175.96m² 坪数 53.22坪
    築年月 1988年8月(築37年5ヶ月) 階建 / 階 2階建 / 1階~2階部分
    駐車場 有 無料(空き8台) バイク置き場 有 無料
    駐輪場 有 無料 土地面積 344.34m²(公簿)
    接道状況 北 20.0m 公道 接面30.0m 用途地域 準住居
    間取り 建物構造 鉄骨造
    アピールポイント 独立開業・支店開設・移転などをお考えの方は注目!居抜き物件のため、事務所、倉庫など幅広くすぐに営業が可能です!!
    建物名・部屋番号 落合ビル
    リフォーム履歴
    リノベーション履歴
    特記事項 居抜き、駐車場3台分以上、国道沿いに面する
    備考
    管理形態/管理員の勤務形態:-/-
    主要採光面:南向き
    使用面積…1階:71.4m2、2階:104.56m2
    ※1階の一部東側倉庫は使用不可です。使用面積には入っていません。
    エネルギー消費性能
    断熱性能
    目安光熱費
    バス・トイレ トイレ2ヶ所、専有部分にトイレあり
    キッチン
    設備・サービス
    その他
    契約期間 3年 条件等
    引渡可能時期 相談 現況
    更新料 物件番号 6988664672
    情報公開日 2025年12月12日 次回更新予定日 2025年12月26日
    ケータイ用バーコード

    QRコード

    スマートフォンでこの物件を見る
    スマートフォンからもこの物件をご覧になれます。
    ※「-」と表示されている項目については、情報提供会社にご確認ください。

    クイックお問い合わせ

    ここから簡単にお問い合わせをすることができます。
    (SSLでの暗号化での送信を希望されるお客さまは こちら よりお問い合わせください)

    お問い合わせ内容(必須)
    物件のお問い合わせ理由(必須)
    お名前・ご担当者様名(必須) 姓  名 
    メールアドレス(必須)
    ※携帯電話のメールアドレスをご入力される方はこちらをご確認ください
    電話番号(必須)
    - -
    備考欄 希望条件、物件案内希望日、質問などがございましたらご記入ください。
    お問い合わせを行う前に「個人情報の取り扱いについて」を必ずお読みください。
    「個人情報の取り扱いについて」に同意いただいた場合は「上記にご同意の上 確認画面へ進む」のボタンをクリックしてください。

    個人情報の取り扱いについて

    皆さまが送付された個人情報はアットホーム(株)のサーバを経由し、お問い合わせ先の不動産会社にメールまたはFAXにて転送されるためアットホーム(株)にも保管されます。アットホーム(株)で保管された個人情報の取り扱いについては、【こちら】をご覧ください。
    また、本画面でご記入いただいた個人情報は、お問い合わせ先の不動産会社でも保管します。 お問い合わせ先の不動産会社が保管する個人情報の取り扱いについては、不動産会社に直接お問い合わせください。

    情報提供会社

    情報提供会社

    ゼロ(株)

    静岡県知事免許(2)第13878号

    交通:
    遠州鉄道/上島駅 徒歩9分
    静岡県浜松市中央区上島1丁目8-27 
    TEL:
    053-482-8777
    FAX:
    053-482-8886
    所属団体:
    (公社)静岡県宅地建物取引業協会会員
    東海不動産公正取引協議会加盟

    取引態様:仲介

    • 会社情報
    • 40406665
    スマートフォンで
    この不動産会社を見る
    QRコード
    • お問い合わせ
    • 提携サイト等より掲載されている物件情報につきましては、不動産会社詳細情報にリンクされていないものがあります。
    • 物件に関するお問合せは、物件詳細ページの「情報提供会社」に表示されている不動産会社へ直接お願いいたします。
    • 間取図は、現況を優先させていただきます。
    • 映像は物件の一部を撮影したものです。物件の契約にあたっての最終判断はご自身の判断に基づいて行ってください。
    • 仲介手数料について仲介手数料

    アットホームは物件情報の適正化に努めております。 内容に誤りがある場合にはこちらへご連絡ください。


    物件画像: