賃貸や不動産はアットホーム-賃貸マンション・賃貸物件・不動産なら アットホーム

東京都新宿区西新宿7丁目(新宿西口駅)の貸事務所:物件詳細

  • 物件詳細
  • 情報の見方
  • 印刷用画面
交通
所在地
駅徒歩 賃料
管理費等
敷金/保証金
礼金
使用部分面積
坪数/坪単価
物件種目
築年月

都営大江戸線/新宿西口

東京都新宿区西新宿7丁目

4分

55.484万円

1ヶ月 / なし

1ヶ月

70.57m²

21.34坪/2.5992万円

貸事務所

2001年1月(築25年)

おすすめコメント

SOHOセットアップ事務所!メゾネットタイプでフルリノベーション予定!

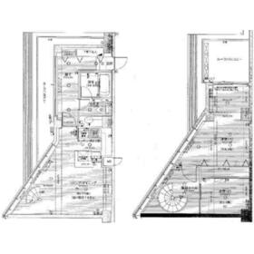
間取図

間取図

外観

外観

その他の画像
  • エントランス
  • エントランス
  • 室内
  • 室内
  • 室内
  • キッチン
  • バス/シャワー
    • お問い合わせ
    交通

    都営大江戸線 新宿西口駅 徒歩4分

    その他の交通

    東京メトロ丸ノ内線 西新宿駅 徒歩6分

    JR山手線 新宿駅 徒歩8分

    所在地 東京都新宿区西新宿7丁目
    物件種目 貸事務所
    賃料 55.484万円 管理費等
    敷金 / 保証金 1ヶ月 / なし 礼金 1ヶ月
    敷引 1ヶ月 坪単価 2.5992万円
    保証金償却 権利金
    造作譲渡 その他一時金
    維持費等 保険等
    使用部分面積 70.57m² 坪数 21.34坪
    築年月 2001年1月(築25年) 階建 / 階 8階建 / 6階
    駐車場 バイク置き場
    駐輪場 土地面積
    接道状況 用途地域
    間取り 建物構造 RC
    アピールポイント SOHOセットアップ事務所!メゾネットタイプでフルリノベーション予定!
    建物名・部屋番号 デュオ・スカーラ西新宿 6階
    リフォーム履歴
    リノベーション履歴
    特記事項 24時間利用可、土日・祝日利用可、飲食店不可、耐震構造(新耐震基準)
    備考
    賃貸保証等:加入要(1ヶ月)
    管理形態/管理員の勤務形態:-/-
    ≪SOHOセットアップ事務所用物件≫
    フルリノベーション予定!
    リノベ前のお申込みに限り、内装工事・家具設置費350万円分貸主負担!

    ■メゾネットタイプ
    ■什器完備(ワークデスク、ソファ等)
    ■ペット飼育可能
    ■ウォシュレット付きトイレ
    ■キャビネット付
    ■エアコン機能保証なし
    エネルギー消費性能
    断熱性能
    目安光熱費
    バス・トイレ バス・トイレ別、専有部分にトイレあり、多機能トイレ
    キッチン
    設備・サービス 収納スペース、オートロック、防犯カメラ、給湯、都市ガス、エアコン、インターネット対応
    その他 宅配BOX、エレベーター
    契約期間 2年 条件等
    引渡可能時期 2026年1月上旬予定 現況
    仲介手数料 1ヶ月    
    更新料 新賃料 1ヶ月 物件番号 6988609677
    情報公開日 2025年12月8日 次回更新予定日 2025年12月22日
    ケータイ用バーコード

    QRコード

    スマートフォンでこの物件を見る
    スマートフォンからもこの物件をご覧になれます。
    ※「-」と表示されている項目については、情報提供会社にご確認ください。

    この物件の周辺情報

    周辺施設 まいばすけっと西新宿7丁目店
    距離 132m
    周辺施設 新宿野村ビル
    距離 354m
    周辺施設 ファミリーマート西新宿柏木公園前店
    距離 45m
    周辺施設 セブンイレブン新宿都税事務所前店
    距離 197m
    周辺施設 西新宿七郵便局
    距離 318m
    周辺施設 新宿区役所
    距離 834m
    周辺施設 東京都庁
    距離 999m
    周辺施設 新宿警察署
    距離 374m

    クイックお問い合わせ

    ここから簡単にお問い合わせをすることができます。
    (SSLでの暗号化での送信を希望されるお客さまは こちら よりお問い合わせください)

    お問い合わせ内容(必須)
    物件のお問い合わせ理由(必須)
    お名前・ご担当者様名(必須) 姓  名 
    メールアドレス(必須)
    ※携帯電話のメールアドレスをご入力される方はこちらをご確認ください
    電話番号(必須)
    - -
    備考欄 希望条件、物件案内希望日、質問などがございましたらご記入ください。
    お問い合わせを行う前に「個人情報の取り扱いについて」を必ずお読みください。
    「個人情報の取り扱いについて」に同意いただいた場合は「上記にご同意の上 確認画面へ進む」のボタンをクリックしてください。

    個人情報の取り扱いについて

    皆さまが送付された個人情報はアットホーム(株)のサーバを経由し、お問い合わせ先の不動産会社にメールまたはFAXにて転送されるためアットホーム(株)にも保管されます。アットホーム(株)で保管された個人情報の取り扱いについては、【こちら】をご覧ください。
    また、本画面でご記入いただいた個人情報は、お問い合わせ先の不動産会社でも保管します。 お問い合わせ先の不動産会社が保管する個人情報の取り扱いについては、不動産会社に直接お問い合わせください。

    情報提供会社

    情報提供会社

    (株)プロスパート

    国土交通大臣免許(2)第9685号

    交通:
    東京メトロ日比谷線/小伝馬町駅 徒歩3分
    東京都中央区日本橋小伝馬町14-12 岩並ビル1F
    TEL:
    03-6206-2025
    FAX:
    03-6206-2462
    所属団体:
    (公社)全日本不動産協会会員
    (公社)首都圏不動産公正取引協議会加盟

    取引態様:仲介

    • 会社情報
    • 00260779
    スマートフォンで
    この不動産会社を見る
    QRコード
    • お問い合わせ
    • 提携サイト等より掲載されている物件情報につきましては、不動産会社詳細情報にリンクされていないものがあります。
    • 物件に関するお問合せは、物件詳細ページの「情報提供会社」に表示されている不動産会社へ直接お願いいたします。
    • 間取図は、現況を優先させていただきます。
    • 映像は物件の一部を撮影したものです。物件の契約にあたっての最終判断はご自身の判断に基づいて行ってください。
    • 仲介手数料について仲介手数料

    アットホームは物件情報の適正化に努めております。 内容に誤りがある場合にはこちらへご連絡ください。


    物件画像: