賃貸や不動産はアットホーム-賃貸マンション・賃貸物件・不動産なら アットホーム

静岡県静岡市葵区黒金町(静岡駅)の貸事務所:物件詳細

  • 物件詳細
  • 情報の見方
  • 印刷用画面
交通
所在地
駅徒歩 賃料
管理費等
敷金/保証金
礼金
使用部分面積
坪数/坪単価
物件種目
築年月

東海道新幹線/静岡

静岡県静岡市葵区黒金町

5分

要確認

要確認

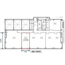
75.93m²

22.96坪/要確認

貸事務所

1999年4月(築26年9ヶ月)

おすすめコメント  スタッフ: 久田 祐揮

周辺はコンビニ・郵便局・飲食店等が近く至便なオフィス環境が整います。新耐震基準・個別空調・OAフロアで快適にご利用いただけます。

間取図

間取図

基準階間取り図

その他の画像
    • お問い合わせ
    交通

    東海道新幹線 静岡駅 徒歩5分

    その他の交通

    東海道本線 静岡駅 徒歩5分

    静岡鉄道静岡清水線 日吉町駅 徒歩10分

    所在地 静岡県静岡市葵区黒金町
    物件種目 貸事務所
    賃料 要確認 管理費等 要確認
    敷金 / 保証金 要確認 礼金 要確認
    敷引 要確認 坪単価 要確認
    保証金償却 要確認 権利金
    造作譲渡 その他一時金
    維持費等 保険等
    使用部分面積 75.93m² 坪数 22.96坪
    築年月 1999年4月(築26年9ヶ月) 階建 / 階 10階建 / 5階
    駐車場 バイク置き場
    駐輪場 土地面積
    接道状況 用途地域
    間取り 建物構造 鉄骨造
    アピールポイント 名古屋支店 TEL:052-223-0655
    お問合せから原則30分以内に確認しご連絡致します!
    お気軽にお問い合わせください。
    建物名・部屋番号 大同生命静岡ビル 5階22.97坪
    リフォーム履歴
    リノベーション履歴
    特記事項 24時間利用可、土曜日利用可、OAフロア、飲食店不可、24時間セキュリティー、耐震構造(新耐震基準)、天井高2.5M以上、IT重説対応物件
    備考
    管理形態/管理員の勤務形態:-/-
    IT重説対応物件
    エネルギー消費性能
    断熱性能
    目安光熱費
    バス・トイレ 共用部分に男女別トイレあり
    キッチン
    設備・サービス 個別空調、給湯、ビルトインエアコン、エアコン、暖房、冷房、インターネット対応、光ファイバー
    その他 エレベーター2基以上、エレベーター
    契約期間 要確認 条件等
    引渡可能時期 2026年6月上旬予定 現況 使用中
    更新料 要確認 物件番号 6988538894
    情報公開日 2025年11月27日 次回更新予定日 2025年12月26日
    ケータイ用バーコード

    QRコード

    スマートフォンでこの物件を見る
    スマートフォンからもこの物件をご覧になれます。
    ※「-」と表示されている項目については、情報提供会社にご確認ください。

    この物件の周辺情報

    周辺施設 オリックスレンタカー静岡駅前店
    距離 243m
    周辺施設 エネオス静岡SS
    距離 257m
    周辺施設 セブンイレブン静岡八幡1丁目店
    距離 259m
    周辺施設 プロント静岡駅北口店
    距離 295m
    周辺施設 静岡伝馬郵便局
    距離 322m
    周辺施設 スルガ銀行静岡南支店
    距離 465m
    周辺施設 静岡駅ビルパルシェ
    距離 663m

    クイックお問い合わせ

    ここから簡単にお問い合わせをすることができます。
    (SSLでの暗号化での送信を希望されるお客さまは こちら よりお問い合わせください)

    お問い合わせ内容(必須)
    物件のお問い合わせ理由(必須)
    お名前・ご担当者様名(必須) 姓  名 
    メールアドレス(必須)
    ※携帯電話のメールアドレスをご入力される方はこちらをご確認ください
    電話番号(必須)
    - -
    備考欄 希望条件、物件案内希望日、質問などがございましたらご記入ください。
    お問い合わせを行う前に「個人情報の取り扱いについて」を必ずお読みください。
    「個人情報の取り扱いについて」に同意いただいた場合は「上記にご同意の上 確認画面へ進む」のボタンをクリックしてください。

    個人情報の取り扱いについて

    皆さまが送付された個人情報はアットホーム(株)のサーバを経由し、お問い合わせ先の不動産会社にメールまたはFAXにて転送されるためアットホーム(株)にも保管されます。アットホーム(株)で保管された個人情報の取り扱いについては、【こちら】をご覧ください。
    また、本画面でご記入いただいた個人情報は、お問い合わせ先の不動産会社でも保管します。 お問い合わせ先の不動産会社が保管する個人情報の取り扱いについては、不動産会社に直接お問い合わせください。

    情報提供会社

    情報提供会社

    (株)クイックコンサルティング 名古屋支店

    国土交通大臣免許(4)第7938号

    交通:
    名古屋市鶴舞線/伏見駅 徒歩3分
    愛知県名古屋市中区錦1丁目6-18 J・伊藤ビル7F
    TEL:
    052-223-0655
    FAX:
    052-223-0656
    所属団体:
    (公社)全日本不動産協会会員
    東海不動産公正取引協議会加盟

    取引態様:仲介

    • 会社情報
    • 40410567
    スマートフォンで
    この不動産会社を見る
    QRコード
    • お問い合わせ
    • 提携サイト等より掲載されている物件情報につきましては、不動産会社詳細情報にリンクされていないものがあります。
    • 物件に関するお問合せは、物件詳細ページの「情報提供会社」に表示されている不動産会社へ直接お願いいたします。
    • 間取図は、現況を優先させていただきます。
    • 映像は物件の一部を撮影したものです。物件の契約にあたっての最終判断はご自身の判断に基づいて行ってください。
    • 仲介手数料について仲介手数料

    アットホームは物件情報の適正化に努めております。 内容に誤りがある場合にはこちらへご連絡ください。


    物件画像: