賃貸や不動産はアットホーム-賃貸マンション・賃貸物件・不動産なら アットホーム

埼玉県さいたま市中央区上落合8丁目(大宮駅)の貸事務所:物件詳細

  • 物件詳細
  • 情報の見方
  • 印刷用画面
交通
所在地
駅徒歩 賃料
管理費等
敷金/保証金
礼金
使用部分面積
坪数/坪単価
物件種目
築年月

湘南新宿ライン(宇都宮〜逗子)/大宮

埼玉県さいたま市中央区上落合8丁目

10分

1,402.7331万円

10ヶ月 / なし

なし

2,485.64m²

751.90坪/1.8656万円

貸事務所(建物一括)

1991年12月(築34年1ヶ月)

おすすめコメント  スタッフ: 伊波 辰章

大宮駅徒歩10分のオフィスビル一棟賃貸 EV 2基 個別空調 男女別トイレ(2階-9階) 給湯室(2階-9階) ガス引き込みあり 検査済証有 駐車場91台分有り 別途契約可能

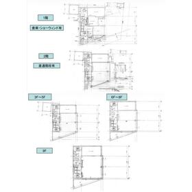
間取図

間取図

その他の画像
  • 販売店
  • 販売店
  • 販売店
  • 飲食店
  • 郵便局
  • その他
    • お問い合わせ
    交通

    湘南新宿ライン(宇都宮〜逗子) 大宮駅 徒歩10分

    その他の交通

    JR高崎線 大宮駅 徒歩10分

    東北新幹線 大宮駅 徒歩13分

    所在地 埼玉県さいたま市中央区上落合8丁目
    物件種目 貸事務所(建物一括)
    賃料 1,402.7331万円 管理費等
    敷金 / 保証金 10ヶ月 / なし 礼金 なし
    敷引 坪単価 1.8656万円
    保証金償却 権利金
    造作譲渡 その他一時金
    維持費等 保険等
    使用部分面積 2,485.64m² 坪数 751.90坪
    築年月 1991年12月(築34年1ヶ月) 階建 / 階 地上9階地下1階建
    駐車場 有 15,000円/月(空き91台)
    駐車場91台分有り!別途契約可 平置9台:月額18.000円(税別)/台 機械式82台:月額15,000円(税別)/台
    バイク置き場
    駐輪場 土地面積
    接道状況 用途地域
    間取り 建物構造 SRC
    アピールポイント 大宮駅徒歩10分のオフィスビル一棟賃貸 
    EV 2基 個別空調 男女別トイレ(2階-9階) 給湯室(2階-9階) 
    ガス引き込みあり 検査済証有 
    駐車場91台分有り 別途契約可能
    建物名・部屋番号  
    リフォーム履歴
    リノベーション履歴
    特記事項 駐車場2台分、駐車場3台分以上、角部屋、最上階、IT重説対応物件
    備考
    賃貸保証等:加入要(相談)
    管理形態/管理員の勤務形態:-/-
    IT重説対応物件
    エネルギー消費性能
    断熱性能
    目安光熱費
    バス・トイレ 共用部分に男女別トイレあり
    キッチン
    設備・サービス 個別空調、エアコン2台以上、給湯、エアコン、暖房、冷房、インターネット対応
    その他 エレベーター2基以上、エレベーター
    契約期間 2年 条件等
    引渡可能時期 即時 現況
    更新料 物件番号 6988526401
    情報公開日 2025年11月27日 次回更新予定日 2025年12月25日
    ケータイ用バーコード

    QRコード

    スマートフォンでこの物件を見る
    スマートフォンからもこの物件をご覧になれます。
    ※「-」と表示されている項目については、情報提供会社にご確認ください。

    この物件の周辺情報

    周辺施設 ニコニコレンタカーさいたま上落合店
    距離 45m
    周辺施設 島忠ホームズさいたま中央店
    距離 112m
    周辺施設 セブンイレブン大宮桜木4丁目店
    距離 197m
    周辺施設 オリックスレンタカー大宮駅西口店
    距離 263m
    周辺施設 エネオス大宮桜木町店
    距離 387m
    周辺施設 プロントエクセルイン大宮店
    距離 712m
    周辺施設 大宮JPビル郵便局
    距離 602m
    周辺施設 そごう大宮パーキング館
    距離 697m

    クイックお問い合わせ

    ここから簡単にお問い合わせをすることができます。
    (SSLでの暗号化での送信を希望されるお客さまは こちら よりお問い合わせください)

    お問い合わせ内容(必須)
    物件のお問い合わせ理由(必須)
    お名前・ご担当者様名(必須) 姓  名 
    メールアドレス(必須)
    ※携帯電話のメールアドレスをご入力される方はこちらをご確認ください
    電話番号(必須)
    - -
    備考欄 希望条件、物件案内希望日、質問などがございましたらご記入ください。
    お問い合わせを行う前に「個人情報の取り扱いについて」を必ずお読みください。
    「個人情報の取り扱いについて」に同意いただいた場合は「上記にご同意の上 確認画面へ進む」のボタンをクリックしてください。

    個人情報の取り扱いについて

    皆さまが送付された個人情報はアットホーム(株)のサーバを経由し、お問い合わせ先の不動産会社にメールまたはFAXにて転送されるためアットホーム(株)にも保管されます。アットホーム(株)で保管された個人情報の取り扱いについては、【こちら】をご覧ください。
    また、本画面でご記入いただいた個人情報は、お問い合わせ先の不動産会社でも保管します。 お問い合わせ先の不動産会社が保管する個人情報の取り扱いについては、不動産会社に直接お問い合わせください。

    情報提供会社

    情報提供会社

    (株)イレアコーポレーション

    神奈川県知事免許(4)第26734号

    交通:
    JR相模線/原当麻駅 徒歩10分
    神奈川県相模原市南区下溝1754-4 
    TEL:
    042-777-7710
    FAX:
    042-778-7101
    所属団体:
    (公社)神奈川県宅地建物取引業協会会員
    (公社)首都圏不動産公正取引協議会加盟

    取引態様:仲介

    • 会社情報
    • 00018774
    スマートフォンで
    この不動産会社を見る
    QRコード
    • お問い合わせ
    • 提携サイト等より掲載されている物件情報につきましては、不動産会社詳細情報にリンクされていないものがあります。
    • 物件に関するお問合せは、物件詳細ページの「情報提供会社」に表示されている不動産会社へ直接お願いいたします。
    • 間取図は、現況を優先させていただきます。
    • 映像は物件の一部を撮影したものです。物件の契約にあたっての最終判断はご自身の判断に基づいて行ってください。
    • 仲介手数料について仲介手数料

    アットホームは物件情報の適正化に努めております。 内容に誤りがある場合にはこちらへご連絡ください。


    物件画像: