賃貸や不動産はアットホーム-賃貸マンション・賃貸物件・不動産なら アットホーム

神奈川県横浜市中区山下町(石川町駅)の貸事務所:物件詳細

  • 物件詳細
  • 情報の見方
  • 印刷用画面
交通
所在地
駅徒歩 賃料
管理費等
敷金/保証金
礼金
使用部分面積
坪数/坪単価
物件種目
築年月

JR京浜東北線/石川町

神奈川県横浜市中区山下町

5分

要確認

要確認

660.99m²

199.94坪/要確認

貸事務所

1991年10月(築34年3ヶ月)

おすすめコメント  スタッフ: 伊波 辰章

京浜東北線・根岸線石川町駅徒歩5分 24時間利用可(エントランス開放時間7:30~19:00)個別空調・OAフロア完備 光ファイバー引込み済 各フロア共用給湯室・男女別トイレ有 周辺コインパーキング有

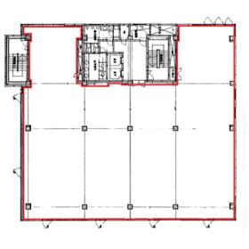
間取図

間取図

199.95坪

外観

外観

<
その他の画像
  • 外観
  • 玄関
  • 外観
  • エントランス
  • エントランス
  • エントランス
  • 共有部分
  • 設備
  • 共有部分
  • 周辺環境
  • 周辺環境
  • コンビニ
  • その他
  • コンビニ
  • 飲食店
  • 飲食店
  • 飲食店
  • その他
>
    • お問い合わせ
    交通

    JR京浜東北線 石川町駅 徒歩5分

    その他の交通

    横浜高速鉄道みなとみらい線 元町・中華街駅 徒歩10分

    JR根岸線 関内駅 徒歩13分

    所在地 神奈川県横浜市中区山下町
    物件種目 貸事務所
    賃料 要確認 管理費等 要確認
    敷金 / 保証金 要確認 礼金 要確認
    敷引 要確認 坪単価 要確認
    保証金償却 要確認 権利金
    造作譲渡 その他一時金
    維持費等 保険等
    使用部分面積 660.99m² 坪数 199.94坪
    築年月 1991年10月(築34年3ヶ月) 階建 / 階 地上8階地下2階建 / 8階
    駐車場 有 30,000円/月(空き2台) バイク置き場
    駐輪場 土地面積
    接道状況 用途地域
    間取り 建物構造 鉄骨造
    アピールポイント JR石川町駅徒歩5分、みなとみらい線元町・中華街駅徒歩7分とアクセス良好。
    業務時間制限なしで24時間利用可(エントランス開放時間 7:30~19:00) 
    個別空調・OAフロア完備 光ファイバー引込み済 
    各フロア共用給湯室・男女別トイレ有 周辺コインパーキング有
    機械警備・有人警備でセキュリティ面も◎
    建物名・部屋番号 8F
    リフォーム履歴
    リノベーション履歴
    特記事項 24時間利用可、土曜日利用可、土日・祝日利用可、有人警備、駐車場2台分、最上階、IT重説対応物件
    備考
    管理形態/管理員の勤務形態:-/-
    IT重説対応物件
    エネルギー消費性能
    断熱性能
    目安光熱費
    バス・トイレ バス・トイレ別、共用部分に男女別トイレあり
    キッチン
    設備・サービス 個別空調、都市ガス、暖房、冷房、火災警報器(報知機)、インターネット対応
    その他 エレベーター2基以上、エレベーター
    契約期間 要確認 条件等
    引渡可能時期 即時 現況
    更新料 要確認 物件番号 6988518402
    情報公開日 2025年11月25日 次回更新予定日 2025年12月24日
    ケータイ用バーコード

    QRコード

    スマートフォンでこの物件を見る
    スマートフォンからもこの物件をご覧になれます。
    ※「-」と表示されている項目については、情報提供会社にご確認ください。

    この物件の周辺情報

    周辺施設 セブンイレブン横浜山下町店
    距離 2m
    周辺施設 ダイレクトパーク横浜元町中華街
    距離 165m
    周辺施設 ファミリーマート山下町南店
    距離 118m
    周辺施設 まいばすけっと山下町店
    距離 119m
    周辺施設 サンマルクカフェパークスクエア横浜店
    距離 407m
    周辺施設 ドトールコーヒーショップ石川町店
    距離 297m
    周辺施設 ガスト横浜元町店(から好し取扱店)
    距離 265m
    周辺施設 Dパーキング横浜中華街第3
    距離 241m

    クイックお問い合わせ

    ここから簡単にお問い合わせをすることができます。
    (SSLでの暗号化での送信を希望されるお客さまは こちら よりお問い合わせください)

    お問い合わせ内容(必須)
    物件のお問い合わせ理由(必須)
    お名前・ご担当者様名(必須) 姓  名 
    メールアドレス(必須)
    ※携帯電話のメールアドレスをご入力される方はこちらをご確認ください
    電話番号(必須)
    - -
    備考欄 希望条件、物件案内希望日、質問などがございましたらご記入ください。
    お問い合わせを行う前に「個人情報の取り扱いについて」を必ずお読みください。
    「個人情報の取り扱いについて」に同意いただいた場合は「上記にご同意の上 確認画面へ進む」のボタンをクリックしてください。

    個人情報の取り扱いについて

    皆さまが送付された個人情報はアットホーム(株)のサーバを経由し、お問い合わせ先の不動産会社にメールまたはFAXにて転送されるためアットホーム(株)にも保管されます。アットホーム(株)で保管された個人情報の取り扱いについては、【こちら】をご覧ください。
    また、本画面でご記入いただいた個人情報は、お問い合わせ先の不動産会社でも保管します。 お問い合わせ先の不動産会社が保管する個人情報の取り扱いについては、不動産会社に直接お問い合わせください。

    情報提供会社

    情報提供会社

    (株)イレアコーポレーション

    神奈川県知事免許(4)第26734号

    交通:
    JR相模線/原当麻駅 徒歩10分
    神奈川県相模原市南区下溝1754-4 
    TEL:
    042-777-7710
    FAX:
    042-778-7101
    所属団体:
    (公社)神奈川県宅地建物取引業協会会員
    (公社)首都圏不動産公正取引協議会加盟

    取引態様:仲介

    • 会社情報
    • 00018774
    スマートフォンで
    この不動産会社を見る
    QRコード
    • お問い合わせ
    • 提携サイト等より掲載されている物件情報につきましては、不動産会社詳細情報にリンクされていないものがあります。
    • 物件に関するお問合せは、物件詳細ページの「情報提供会社」に表示されている不動産会社へ直接お願いいたします。
    • 間取図は、現況を優先させていただきます。
    • 映像は物件の一部を撮影したものです。物件の契約にあたっての最終判断はご自身の判断に基づいて行ってください。
    • 仲介手数料について仲介手数料

    アットホームは物件情報の適正化に努めております。 内容に誤りがある場合にはこちらへご連絡ください。


    物件画像: