賃貸や不動産はアットホーム-賃貸マンション・賃貸物件・不動産なら アットホーム

東京都港区西麻布4丁目(広尾駅)の貸事務所:物件詳細

  • 物件詳細
  • 情報の見方
  • 印刷用画面
交通
所在地
駅徒歩 賃料
管理費等
敷金/保証金
礼金
使用部分面積
坪数/坪単価
物件種目
築年月

東京メトロ日比谷線/広尾

東京都港区西麻布4丁目

8分

17.6万円

11,000円

なし / 2ヶ月

なし

39.59m²

11.97坪/1.4697万円

貸事務所

1979年3月(築46年10ヶ月)

おすすめコメント

西麻布交差点直ぐ傍のヴィンテージマンション 六本木ヒルズ、広尾駅徒歩圏の好立地!!2024年にフルリノベーション工事を実施したとてもキレイな室内です。お問い合わせは03-6230-1113担当伊藤迄

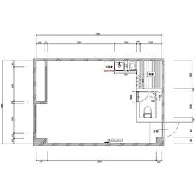
間取図

間取図

室内20畳

<
その他の画像
>
    • お問い合わせ
    交通

    東京メトロ日比谷線 広尾駅 徒歩8分

    その他の交通

    東京メトロ日比谷線 六本木駅 徒歩8分

    東京メトロ千代田線 乃木坂駅 徒歩9分

    所在地 東京都港区西麻布4丁目
    物件種目 貸事務所
    賃料 17.6万円 管理費等 11,000円
    敷金 / 保証金 なし / 2ヶ月 礼金 なし
    敷引 坪単価 1.4697万円
    保証金償却 解約時1.1ヶ月 権利金
    造作譲渡 その他一時金
    維持費等 保険等 要 2年 25,400円 火災
    クレジットカード決済 初期費用可 クレジット可能条件等:詳細はお問い合わせ下さい
    使用部分面積 39.59m² 坪数 11.97坪
    築年月 1979年3月(築46年10ヶ月) 階建 / 階 10階建 / 4階
    駐車場 バイク置き場
    駐輪場 有 無料 土地面積
    接道状況 用途地域
    間取り ワンルーム 建物構造 SRC
    アピールポイント 麻布エンパイアマンション/1R
    礼金0での募集です!!

    西麻布の交差点すぐそばの立地。広尾と六本木駅から8分
    六本木ヒルズまで徒歩5分、南青山の骨董通りまで徒歩3分
    2024年にフルリノベーション工事を実施したとてもキレイな室内です!!
    室内広々20畳
    地下にコインランドリー有 地下1階~地上2階は飲食店舗がございます!!
    再契約可
    お問い合わせは080-5864-3322担当伊藤までお待ち申し上げます。
    建物名・部屋番号 麻布エンパイアマンション ふるりのべ 406
    リフォーム履歴
    リノベーション履歴 2024年2月
    スケルトンからのフルリノベーション工事実施済
    ※実施年月は最も古い履歴を表示
    特記事項 24時間利用可、土曜日利用可、土日・祝日利用可、飲食店不可、デザイナーズ、国道沿いに面する
    備考
    賃貸保証等:加入要(初回保証料 税込総賃料の80%~100%)
    管理形態/管理員の勤務形態:-/-
    主要採光面:南向き
    お問い合わせは080-5864-3322伊藤迄
    エネルギー消費性能
    断熱性能
    目安光熱費
    バス・トイレ シャワー、専有部分にトイレあり
    キッチン オープンキッチン
    設備・サービス オートロック、防犯カメラ、給湯、都市ガス、エアコン、火災警報器(報知機)、インターネット対応、光ファイバー
    その他 エレベーター
    契約期間 2年 条件等 定期借家定期借家
    引渡可能時期 2025年12月上旬予定 現況
    仲介手数料 1.1ヶ月 適格請求書発行
    更新料 新賃料 1ヶ月 物件番号 6988503850
    情報公開日 2025年11月24日 次回更新予定日 2025年12月29日
    ケータイ用バーコード

    QRコード

    スマートフォンでこの物件を見る
    スマートフォンからもこの物件をご覧になれます。
    ※「-」と表示されている項目については、情報提供会社にご確認ください。

    この物件の周辺情報

    周辺施設 成城石井西麻布店
    距離 178m
    周辺施設 まいばすけっと西麻布店
    距離 367m
    周辺施設 ローソン西麻布四丁目店
    距離 55m
    周辺施設 ファミリーマート西麻布三丁目店
    距離 133m
    周辺施設 游玄亭西麻布本館店
    距離 124m
    周辺施設 マクドナルド六本木ヒルズ店
    距離 547m
    周辺施設 西麻布郵便局
    距離 183m
    周辺施設 三井住友銀行麻布支店
    距離 875m

    クイックお問い合わせ

    ここから簡単にお問い合わせをすることができます。
    (SSLでの暗号化での送信を希望されるお客さまは こちら よりお問い合わせください)

    お問い合わせ内容(必須)
    物件のお問い合わせ理由(必須)
    お名前・ご担当者様名(必須) 姓  名 
    メールアドレス(必須)
    ※携帯電話のメールアドレスをご入力される方はこちらをご確認ください
    電話番号(必須)
    - -
    備考欄 希望条件、物件案内希望日、質問などがございましたらご記入ください。
    お問い合わせを行う前に「個人情報の取り扱いについて」を必ずお読みください。
    「個人情報の取り扱いについて」に同意いただいた場合は「上記にご同意の上 確認画面へ進む」のボタンをクリックしてください。

    個人情報の取り扱いについて

    皆さまが送付された個人情報はアットホーム(株)のサーバを経由し、お問い合わせ先の不動産会社にメールまたはFAXにて転送されるためアットホーム(株)にも保管されます。アットホーム(株)で保管された個人情報の取り扱いについては、【こちら】をご覧ください。
    また、本画面でご記入いただいた個人情報は、お問い合わせ先の不動産会社でも保管します。 お問い合わせ先の不動産会社が保管する個人情報の取り扱いについては、不動産会社に直接お問い合わせください。

    情報提供会社

    情報提供会社

    Gratia (株)モンステラ

    東京都知事免許(3)第98474号

    交通:
    東京メトロ千代田線/赤坂駅 徒歩2分
    東京都港区赤坂6丁目4-15 シティマンション赤坂207
    TEL:
    03-6230-1116
    FAX:
    03-6230-1114
    所属団体:
    (公社)全日本不動産協会会員

    取引態様:仲介

    • 会社情報
    • 00260056
    スマートフォンで
    この不動産会社を見る
    QRコード
    • お問い合わせ
    • 提携サイト等より掲載されている物件情報につきましては、不動産会社詳細情報にリンクされていないものがあります。
    • 物件に関するお問合せは、物件詳細ページの「情報提供会社」に表示されている不動産会社へ直接お願いいたします。
    • 間取図は、現況を優先させていただきます。
    • 映像は物件の一部を撮影したものです。物件の契約にあたっての最終判断はご自身の判断に基づいて行ってください。
    • 仲介手数料について仲介手数料

    アットホームは物件情報の適正化に努めております。 内容に誤りがある場合にはこちらへご連絡ください。


    物件画像: