賃貸や不動産はアットホーム-賃貸マンション・賃貸物件・不動産なら アットホーム

広島県広島市南区段原3丁目(比治山下駅)の貸事務所:物件詳細

  • 物件詳細
  • 情報の見方
  • 印刷用画面
交通
所在地
駅徒歩 賃料
管理費等
敷金/保証金
礼金
使用部分面積
坪数/坪単価
物件種目
築年月

広島電鉄皆実線/比治山下

広島県広島市南区段原3丁目

14分

49.5万円

6ヶ月 / なし

1ヶ月

111.00m²

33.57坪/1.4743万円

貸事務所

2009年2月(築16年11ヶ月)

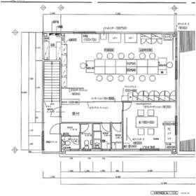
間取図

間取図

その他の画像
    • お問い合わせ
    交通

    広島電鉄皆実線 比治山下駅 徒歩14分

    その他の交通

    広島電鉄皆実線 松川町駅 徒歩15分

    JR山陽本線 広島駅 徒歩19分

    所在地 広島県広島市南区段原3丁目
    物件種目 貸事務所
    賃料 49.5万円 管理費等
    敷金 / 保証金 6ヶ月 / なし 礼金 1ヶ月
    敷引 坪単価 1.4743万円
    保証金償却 権利金
    造作譲渡 その他一時金
    維持費等 保険等 要 事業用物件用
    使用部分面積 111.00m² 坪数 33.57坪
    築年月 2009年2月(築16年11ヶ月) 階建 / 階 2階建 / 2階
    駐車場 有 無料(空き7台)
    縦列3区画+1台*車種により駐車可能です。
    バイク置き場
    駐輪場 土地面積
    接道状況 用途地域 近隣商業
    間取り 建物構造 鉄骨造
    建物名・部屋番号 段原3丁目事務所 2F
    リフォーム履歴
    リノベーション履歴
    特記事項 24時間利用可、土日・祝日利用可、飲食店不可、1フロア1テナント、駐車場3台分以上
    備考
    賃貸保証等:加入要(毎月賃料の100%*更新時10%)
    管理形態/管理員の勤務形態:-/-
    2031年12月末までの定期借家契約となります。
    エネルギー消費性能
    断熱性能
    目安光熱費
    バス・トイレ 専有部分にトイレあり
    キッチン
    設備・サービス
    その他
    契約期間 2031年12月31日まで 条件等 定期借家定期借家
    引渡可能時期 2026年2月中旬予定 現況 居住中
    更新料 物件番号 6988442968
    情報公開日 2025年11月19日 次回更新予定日 2025年12月27日
    ケータイ用バーコード

    QRコード

    スマートフォンでこの物件を見る
    スマートフォンからもこの物件をご覧になれます。
    ※「-」と表示されている項目については、情報提供会社にご確認ください。

    クイックお問い合わせ

    ここから簡単にお問い合わせをすることができます。
    (SSLでの暗号化での送信を希望されるお客さまは こちら よりお問い合わせください)

    お問い合わせ内容(必須)
    物件のお問い合わせ理由(必須)
    お名前・ご担当者様名(必須) 姓  名 
    メールアドレス(必須)
    ※携帯電話のメールアドレスをご入力される方はこちらをご確認ください
    電話番号(必須)
    - -
    備考欄 希望条件、物件案内希望日、質問などがございましたらご記入ください。
    お問い合わせを行う前に「個人情報の取り扱いについて」を必ずお読みください。
    「個人情報の取り扱いについて」に同意いただいた場合は「上記にご同意の上 確認画面へ進む」のボタンをクリックしてください。

    個人情報の取り扱いについて

    皆さまが送付された個人情報はアットホーム(株)のサーバを経由し、お問い合わせ先の不動産会社にメールまたはFAXにて転送されるためアットホーム(株)にも保管されます。アットホーム(株)で保管された個人情報の取り扱いについては、【こちら】をご覧ください。
    また、本画面でご記入いただいた個人情報は、お問い合わせ先の不動産会社でも保管します。 お問い合わせ先の不動産会社が保管する個人情報の取り扱いについては、不動産会社に直接お問い合わせください。

    情報提供会社

    情報提供会社

    (株)良和ハウス テナント事業部

    国土交通大臣免許(2)第9113号

    交通:
    JR山陽本線/横川駅 徒歩10分
    広島県広島市西区楠木町2丁目1-1 
    TEL:
    082-209-2688
    FAX:
    082-554-2511
    所属団体:
    (公社)広島県宅地建物取引業協会会員
    中国地区不動産公正取引協議会加盟

    取引態様:仲介

    • 会社情報
    • 50104235
    スマートフォンで
    この不動産会社を見る
    QRコード
    • お問い合わせ
    • 提携サイト等より掲載されている物件情報につきましては、不動産会社詳細情報にリンクされていないものがあります。
    • 物件に関するお問合せは、物件詳細ページの「情報提供会社」に表示されている不動産会社へ直接お願いいたします。
    • 間取図は、現況を優先させていただきます。
    • 映像は物件の一部を撮影したものです。物件の契約にあたっての最終判断はご自身の判断に基づいて行ってください。
    • 仲介手数料について仲介手数料

    アットホームは物件情報の適正化に努めております。 内容に誤りがある場合にはこちらへご連絡ください。


    物件画像: