賃貸や不動産はアットホーム-賃貸マンション・賃貸物件・不動産なら アットホーム

大阪府大阪市中央区内平野町1丁目(天満橋駅)の貸事務所:物件詳細

  • 物件詳細
  • 情報の見方
  • 印刷用画面
交通
所在地
駅徒歩 賃料
管理費等
敷金/保証金
礼金
使用部分面積
坪数/坪単価
物件種目
築年月

地下鉄谷町線/天満橋

大阪府大阪市中央区内平野町1丁目

4分

12.32万円

23,100円

10万円 / なし

22万円

73.61m²

22.26坪/0.5533万円

貸事務所

1985年3月(築40年10ヶ月)

おすすめコメント

地下鉄天満橋駅徒歩4分!人気エリアのオフィスビル、日宝内平野ビルの募集です!ワンフロアワンテナントのミドルサイズオフィス!官公庁街も徒歩圏内で士業の方などにもオススメ!周辺にはコンビニや飲食店も多数!

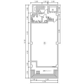
間取図

間取図

外観

外観

その他の画像
  • 玄関
  • 共有部分
  • 共有部分
  • 室内
  • その他
  • その他
  • その他
    • お問い合わせ
    交通

    地下鉄谷町線 天満橋駅 徒歩4分

    その他の交通

    京阪本線 天満橋駅 徒歩4分

    地下鉄谷町線 谷町四丁目駅 徒歩10分

    所在地 大阪府大阪市中央区内平野町1丁目
    物件種目 貸事務所
    賃料 12.32万円 管理費等 23,100円
    敷金 / 保証金 10万円 / なし 礼金 22万円
    敷引 坪単価 0.5533万円
    保証金償却 権利金
    造作譲渡 その他一時金
    維持費等 警備料:6,050円/月 保険等
    使用部分面積 73.61m² 坪数 22.26坪
    築年月 1985年3月(築40年10ヶ月) 階建 / 階 8階建 / 7階
    駐車場 バイク置き場
    駐輪場 土地面積
    接道状況 用途地域
    間取り 建物構造 鉄骨造
    建物名・部屋番号  
    リフォーム履歴
    リノベーション履歴
    特記事項 24時間利用可、1フロア1テナント、24時間セキュリティー
    備考
    管理形態/管理員の勤務形態:-/-
    エネルギー消費性能
    断熱性能
    目安光熱費
    バス・トイレ トイレ
    キッチン
    設備・サービス 個別空調
    その他 エレベーター
    契約期間 2年 条件等
    引渡可能時期 相談 現況
    更新料 物件番号 6988440809
    情報公開日 2025年11月18日 次回更新予定日 2025年12月30日
    ケータイ用バーコード

    QRコード

    スマートフォンでこの物件を見る
    スマートフォンからもこの物件をご覧になれます。
    ※「-」と表示されている項目については、情報提供会社にご確認ください。

    この物件の周辺情報

    周辺施設 ライフ天神橋店
    距離 430m
    周辺施設 ローソンストア100内平野店
    距離 36m
    周辺施設 ファミリーマート釣鐘町店
    距離 181m
    周辺施設 ほっともっと内平野2丁目店
    距離 134m
    周辺施設 松屋天満橋店
    距離 205m
    周辺施設 ファミリーマート+クスリのヒグチ谷町二丁目店
    距離 397m
    周辺施設 大阪高麗橋郵便局
    距離 179m
    周辺施設 大阪府庁
    距離 596m

    クイックお問い合わせ

    ここから簡単にお問い合わせをすることができます。
    (SSLでの暗号化での送信を希望されるお客さまは こちら よりお問い合わせください)

    お問い合わせ内容(必須)
    物件のお問い合わせ理由(必須)
    お名前・ご担当者様名(必須) 姓  名 
    メールアドレス(必須)
    ※携帯電話のメールアドレスをご入力される方はこちらをご確認ください
    電話番号(必須)
    - -
    備考欄 希望条件、物件案内希望日、質問などがございましたらご記入ください。
    お問い合わせを行う前に「個人情報の取り扱いについて」を必ずお読みください。
    「個人情報の取り扱いについて」に同意いただいた場合は「上記にご同意の上 確認画面へ進む」のボタンをクリックしてください。

    個人情報の取り扱いについて

    皆さまが送付された個人情報はアットホーム(株)のサーバを経由し、お問い合わせ先の不動産会社にメールまたはFAXにて転送されるためアットホーム(株)にも保管されます。アットホーム(株)で保管された個人情報の取り扱いについては、【こちら】をご覧ください。
    また、本画面でご記入いただいた個人情報は、お問い合わせ先の不動産会社でも保管します。 お問い合わせ先の不動産会社が保管する個人情報の取り扱いについては、不動産会社に直接お問い合わせください。

    情報提供会社

    情報提供会社

    (株)B・B・RENT

    大阪府知事免許(3)第55597号

    交通:
    地下鉄堺筋線/堺筋本町駅 徒歩3分
    大阪府大阪市中央区安土町1丁目5-9 ゼニヤベストビル6C
    TEL:
    06-6121-6509
    FAX:
    06-6121-6510
    所属団体:
    (公社)全日本不動産協会会員
    (公社)近畿地区不動産公正取引協議会加盟

    取引態様:仲介

    • 会社情報
    • 50024682
    スマートフォンで
    この不動産会社を見る
    QRコード
    • お問い合わせ
    • 提携サイト等より掲載されている物件情報につきましては、不動産会社詳細情報にリンクされていないものがあります。
    • 物件に関するお問合せは、物件詳細ページの「情報提供会社」に表示されている不動産会社へ直接お願いいたします。
    • 間取図は、現況を優先させていただきます。
    • 映像は物件の一部を撮影したものです。物件の契約にあたっての最終判断はご自身の判断に基づいて行ってください。
    • 仲介手数料について仲介手数料

    アットホームは物件情報の適正化に努めております。 内容に誤りがある場合にはこちらへご連絡ください。


    物件画像: