賃貸や不動産はアットホーム-賃貸マンション・賃貸物件・不動産なら アットホーム

東京都板橋区板橋1丁目(新板橋駅)の貸事務所:物件詳細

  • 物件詳細
  • 情報の見方
  • 印刷用画面
交通
所在地
駅徒歩 賃料
管理費等
敷金/保証金
礼金
使用部分面積
坪数/坪単価
物件種目
築年月

都営三田線/新板橋

東京都板橋区板橋1丁目

1分

13.9万円

21,000円

3ヶ月 / なし

1ヶ月

36.95m²

11.17坪/1.2436万円

貸事務所

1979年6月(築46年11ヶ月)

おすすめコメント

■板橋年金事務所 徒歩1分 社会保険・年金手続きがスムーズに行えます■東京法務局板橋出張所 徒歩2分 登記や法人設立手続きが手軽に対応可能です。

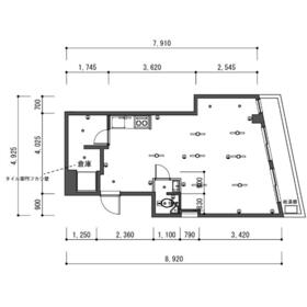
間取図

間取図

室内

室内

その他の画像
  • 室内
  • トイレ
  • キッチン
  • 収納
  • 洗面
  • 室内
  • 室内
  • 外観
    • お問い合わせ
    交通

    都営三田線 新板橋駅 徒歩1分

    その他の交通

    JR埼京線 板橋駅 徒歩6分

    東武東上線 下板橋駅 徒歩7分

    所在地 東京都板橋区板橋1丁目
    物件種目 貸事務所
    賃料 13.9万円 管理費等 21,000円
    敷金 / 保証金 3ヶ月 / なし 礼金 1ヶ月
    敷引 坪単価 1.2436万円
    保証金償却 権利金
    造作譲渡 その他一時金
    維持費等 保険等
    使用部分面積 36.95m² 坪数 11.17坪
    築年月 1979年6月(築46年11ヶ月) 階建 / 階 12階建 / 3階
    駐車場 バイク置き場
    駐輪場 土地面積
    接道状況 用途地域
    間取り ワンルーム 建物構造 SRC
    アピールポイント 3路線3駅利用可!軽快なフットワークで都心を移動できます。

    都営三田線 新板橋駅(徒歩2分)
    JR埼京線 板橋駅(徒歩6分)
    東武鉄道東上線 下板橋駅(徒歩8分)
    東武鉄道東上線 北池袋駅(徒歩11分) 

    フルリノベーションのオフィスで心機一転ご移転・ご開業にオススメ!
    ■OAフロア
    ■LED照明
    建物名・部屋番号 キャニオンマンション板橋 304
    リフォーム履歴 ■水回り:2025年10月
    キッチン、トイレ、洗面所
    ■内装:2025年10月
    全室クロス張替え、床(フローリング等)、壁・天井(クロス・塗装等)、建具(室内ドア等)
    ※実施年月は最も古い履歴を表示
    リノベーション履歴
    特記事項 居抜き、土日・祝日利用可、OAフロア、飲食店不可、保証人不要
    備考
    賃貸保証等:加入要(弊社指定の保証会社へご加入いただきます。(賃料・共益費の1か月分 借主負担))
    管理形態/管理員の勤務形態:-/-
    都営三田線 新板橋駅(徒歩2分)
    JR埼京線 板橋駅(徒歩6分)
    東武鉄道東上線 下板橋駅(徒歩8分)
    東武鉄道東上線 北池袋駅(徒歩11分)
    ・OAフロア
    ・モニター付きオートロック
    ・LED照明
    ・バルコニー
    ・郵便ポスト
    ・駐輪所利用可能(有料)
    エネルギー消費性能
    断熱性能
    目安光熱費
    バス・トイレ トイレ
    キッチン
    設備・サービス 収納スペース、オートロック、防犯カメラ、給湯、都市ガス、エアコン、複層ガラス
    その他 エレベーター
    契約期間 3年 条件等
    引渡可能時期 相談 現況
    仲介手数料 1ヶ月    
    更新料 新賃料 1.5ヶ月 物件番号 6988399353
    情報公開日 2025年12月1日 次回更新予定日 2026年4月20日
    ケータイ用バーコード

    QRコード

    スマートフォンでこの物件を見る
    スマートフォンからもこの物件をご覧になれます。
    ※「-」と表示されている項目については、情報提供会社にご確認ください。

    この物件の周辺情報

    周辺施設 ライフ板橋店
    距離 194m
    周辺施設 まいばすけっと新板橋駅南店
    距離 287m
    周辺施設 コープ板橋駅前店
    距離 428m
    周辺施設 ファミリーマート新板橋店
    距離 67m
    周辺施設 珈琲館新板橋店
    距離 181m
    周辺施設 滝野川六郵便局
    距離 479m
    周辺施設 板橋警察署
    距離 783m
    周辺施設 東京プラザボウル
    距離 194m

    クイックお問い合わせ

    ここから簡単にお問い合わせをすることができます。
    (SSLでの暗号化での送信を希望されるお客さまは こちら よりお問い合わせください)

    お問い合わせ内容(必須)
    物件のお問い合わせ理由(必須)
    お名前・ご担当者様名(必須) 姓  名 
    メールアドレス(必須)
    ※携帯電話のメールアドレスをご入力される方はこちらをご確認ください
    電話番号(必須)
    - -
    備考欄 希望条件、物件案内希望日、質問などがございましたらご記入ください。
    お問い合わせを行う前に「個人情報の取り扱いについて」を必ずお読みください。
    「個人情報の取り扱いについて」に同意いただいた場合は「上記にご同意の上 確認画面へ進む」のボタンをクリックしてください。

    個人情報の取り扱いについて

    皆さまが送付された個人情報はアットホーム(株)のサーバを経由し、お問い合わせ先の不動産会社にメールまたはFAXにて転送されるためアットホーム(株)にも保管されます。アットホーム(株)で保管された個人情報の取り扱いについては、【こちら】をご覧ください。
    また、本画面でご記入いただいた個人情報は、お問い合わせ先の不動産会社でも保管します。 お問い合わせ先の不動産会社が保管する個人情報の取り扱いについては、不動産会社に直接お問い合わせください。

    情報提供会社

    情報提供会社

    (株)ナミキ

    国土交通大臣免許(4)第7262号

    交通:
    JR山手線/池袋駅 徒歩1分
    東京都豊島区東池袋1丁目3-7 
    TEL:
    03-5985-2810
    FAX:
    03-3980-6043
    所属団体:
    (公社)東京都宅地建物取引業協会会員
    (公社)首都圏不動産公正取引協議会加盟

    取引態様:仲介

    • 会社情報
    • 00410546
    スマートフォンで
    この不動産会社を見る
    QRコード
    • お問い合わせ
    • 提携サイト等より掲載されている物件情報につきましては、不動産会社詳細情報にリンクされていないものがあります。
    • 物件に関するお問合せは、物件詳細ページの「情報提供会社」に表示されている不動産会社へ直接お願いいたします。
    • 間取図は、現況を優先させていただきます。
    • 映像は物件の一部を撮影したものです。物件の契約にあたっての最終判断はご自身の判断に基づいて行ってください。
    • 仲介手数料について仲介手数料

    アットホームは物件情報の適正化に努めております。 内容に誤りがある場合にはこちらへご連絡ください。


    物件画像: