賃貸や不動産はアットホーム-賃貸マンション・賃貸物件・不動産なら アットホーム

東京都港区芝3丁目(芝公園駅)の貸事務所:物件詳細

  • 物件詳細
  • 情報の見方
  • 印刷用画面
交通
所在地
駅徒歩 賃料
管理費等
敷金/保証金
礼金
使用部分面積
坪数/坪単価
物件種目
築年月

都営三田線/芝公園

東京都港区芝3丁目

3分

134.3万円

なし

なし / 3ヶ月

1ヶ月

212.45m²

64.26坪/2.0898万円

貸事務所

1993年2月(築33年1ヶ月)

おすすめコメント

「芝公園」駅A2出口より徒歩1分のオフィスビル!原状回復義務なし!

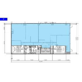
間取図

間取図

室内

室内

その他の画像
  • 室内
  • 室内
  • 室内
    • お問い合わせ
    交通

    都営三田線 芝公園駅 徒歩3分

    その他の交通

    都営三田線 三田駅 徒歩7分

    都営大江戸線 赤羽橋駅 徒歩8分

    所在地 東京都港区芝3丁目
    物件種目 貸事務所
    賃料 134.3万円 管理費等 なし
    敷金 / 保証金 なし / 3ヶ月 礼金 1ヶ月
    敷引 坪単価 2.0898万円
    保証金償却 権利金
    造作譲渡 その他一時金
    維持費等 保険等 要 火災
    使用部分面積 212.45m² 坪数 64.26坪
    築年月 1993年2月(築33年1ヶ月) 階建 / 階 地上9階地下1階建 / 3階
    駐車場 空無 バイク置き場 空無
    駐輪場 空無 土地面積
    接道状況 用途地域 商業地域
    間取り 建物構造 SRC
    アピールポイント アクセス良好なオフィスビル内1フロアのご紹介です!契約期間5年を満了時、原状回復義務が免除となりますので、ぜひご検討ください!
    建物名・部屋番号 アパ三田芝公園駅前ビル 3F
    リフォーム履歴
    リノベーション履歴
    特記事項 居抜き、24時間利用可、土曜日利用可、土日・祝日利用可、飲食店不可、1フロア1テナント、天井高2.5M以上
    備考
    賃貸保証等:加入要(初回保証料:賃料1カ月分(税込))
    管理形態/管理員の勤務形態:-/-
    主要採光面:南向き
    ・定借5年契約が原則となります。
    ・契約期間満了時は、原状回復義務を免除させていただきます。
    ・水光熱費は面積按分に基づくご請求となります。
    ・1階エントランス開放時間(月~土)6:30~21:00・(日祝)閉 ※カードキーにて開錠可能
    エネルギー消費性能
    断熱性能
    目安光熱費
    バス・トイレ トイレ2ヶ所、専有部分に男女別トイレあり
    キッチン
    設備・サービス 個別空調、エアコン2台以上、動力あり、エアコン、暖房、冷房、火災警報器(報知機)、インターネット対応
    その他 エレベーター2基以上、エレベーター
    契約期間 5年 条件等 定期借家定期借家
    引渡可能時期 即時 現況
    適格請求書発行
    更新料 なし 物件番号 6988399105
    情報公開日 2025年11月14日 次回更新予定日 2026年2月19日
    ケータイ用バーコード

    QRコード

    スマートフォンでこの物件を見る
    スマートフォンからもこの物件をご覧になれます。
    ※「-」と表示されている項目については、情報提供会社にご確認ください。

    この物件の周辺情報

    周辺施設 まいばすけっと芝2丁目店
    距離 504m
    周辺施設 ファミリーマート芝公園店
    距離 128m
    周辺施設 タリーズコーヒーセレスティン芝三井ビルディング店
    距離 225m
    周辺施設 ランボルギーニSHIBA
    距離 170m
    周辺施設 私立戸板女子短期大学
    距離 257m
    周辺施設 私立芝国際高校
    距離 388m
    周辺施設 ニチイキッズ芝公園保育園
    距離 208m
    周辺施設 芝三郵便局
    距離 8m

    クイックお問い合わせ

    ここから簡単にお問い合わせをすることができます。
    (SSLでの暗号化での送信を希望されるお客さまは こちら よりお問い合わせください)

    お問い合わせ内容(必須)
    物件のお問い合わせ理由(必須)
    お名前・ご担当者様名(必須) 姓  名 
    メールアドレス(必須)
    ※携帯電話のメールアドレスをご入力される方はこちらをご確認ください
    電話番号(必須)
    - -
    備考欄 希望条件、物件案内希望日、質問などがございましたらご記入ください。
    お問い合わせを行う前に「個人情報の取り扱いについて」を必ずお読みください。
    「個人情報の取り扱いについて」に同意いただいた場合は「上記にご同意の上 確認画面へ進む」のボタンをクリックしてください。

    個人情報の取り扱いについて

    皆さまが送付された個人情報はアットホーム(株)のサーバを経由し、お問い合わせ先の不動産会社にメールまたはFAXにて転送されるためアットホーム(株)にも保管されます。アットホーム(株)で保管された個人情報の取り扱いについては、【こちら】をご覧ください。
    また、本画面でご記入いただいた個人情報は、お問い合わせ先の不動産会社でも保管します。 お問い合わせ先の不動産会社が保管する個人情報の取り扱いについては、不動産会社に直接お問い合わせください。

    情報提供会社

    情報提供会社

    アパ(株) テナント事業部

    国土交通大臣免許(12)第2533号

    交通:
    東京メトロ丸ノ内線/赤坂見附駅 徒歩1分
    東京都港区赤坂3丁目2-3 アパ赤坂見附ビル
    TEL:
    03-6277-7481
    FAX:
    03-3584-1433
    所属団体:
    (公社)東京都宅地建物取引業協会会員
    (一社)全国住宅産業協会会員
    (公社)首都圏不動産公正取引協議会加盟

    取引態様:貸主

    • 会社情報
    • 00262676
    スマートフォンで
    この不動産会社を見る
    QRコード
    • お問い合わせ
    • 提携サイト等より掲載されている物件情報につきましては、不動産会社詳細情報にリンクされていないものがあります。
    • 物件に関するお問合せは、物件詳細ページの「情報提供会社」に表示されている不動産会社へ直接お願いいたします。
    • 間取図は、現況を優先させていただきます。
    • 映像は物件の一部を撮影したものです。物件の契約にあたっての最終判断はご自身の判断に基づいて行ってください。
    • 仲介手数料について仲介手数料

    アットホームは物件情報の適正化に努めております。 内容に誤りがある場合にはこちらへご連絡ください。


    物件画像: