賃貸や不動産はアットホーム-賃貸マンション・賃貸物件・不動産なら アットホーム

東京都千代田区神田和泉町(秋葉原駅)の貸事務所:物件詳細

  • 物件詳細
  • 情報の見方
  • 印刷用画面
交通
所在地
駅徒歩 賃料
管理費等
敷金/保証金
礼金
使用部分面積
坪数/坪単価
物件種目
築年月

JR山手線/秋葉原

東京都千代田区神田和泉町

5分

52.9049万円

116,391円

なし / 7ヶ月

1ヶ月

116.40m²

35.21坪/1.5026万円

貸事務所

1991年3月(築34年10ヶ月)

おすすめコメント

ワンフロア1テナント 男女別トイレ 機械警備 エレベーター 光ファイバー 24時間利用可 2026年2月中旬頃入居可能予定です

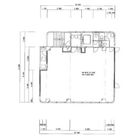
間取図

間取図

その他の画像
    • お問い合わせ
    交通

    JR山手線 秋葉原駅 徒歩5分

    その他の交通

    東京メトロ日比谷線 秋葉原駅 徒歩3分

    都営新宿線 岩本町駅 徒歩6分

    所在地 東京都千代田区神田和泉町
    物件種目 貸事務所
    賃料 52.9049万円 管理費等 116,391円
    敷金 / 保証金 なし / 7ヶ月 礼金 1ヶ月
    敷引 坪単価 1.5026万円
    保証金償却 解約時2ヶ月 権利金
    造作譲渡 その他一時金
    維持費等 保険等
    使用部分面積 116.40m² 坪数 35.21坪
    築年月 1991年3月(築34年10ヶ月) 階建 / 階 6階建 / 2階
    駐車場 バイク置き場
    駐輪場 土地面積
    接道状況 用途地域
    間取り 建物構造 RC
    アピールポイント ワンフロア1テナント 男女別トイレ 機械警備 エレベーター 光ファイバー 24時間利用可 2026年2月中旬頃入居可能予定です
    建物名・部屋番号 I・T秋葉原ビル 2階
    リフォーム履歴
    リノベーション履歴
    特記事項 24時間利用可、土日・祝日利用可、飲食店不可、1フロア1テナント、24時間セキュリティー、耐震構造(新耐震基準)
    備考
    賃貸保証等:加入要(初回契約時に総賃料の100から150%が必要です 1年毎に保証会社の更新料が必要です)
    管理形態/管理員の勤務形態:-/-
    主要採光面:南向き
    ワンフロア1テナント 男女別トイレ 機械警備 エレベーター 光ファイバー 24時間利用可 2026年2月中旬頃入居可能予定です 
    エネルギー消費性能
    断熱性能
    目安光熱費
    バス・トイレ トイレ2ヶ所、専有部分に男女別トイレあり
    キッチン
    設備・サービス 個別空調、動力あり、インターネット対応
    その他 エレベーター
    契約期間 2年 条件等
    引渡可能時期 2026年2月中旬予定 現況 使用中
    更新料 新賃料 1ヶ月 物件番号 6988351228
    情報公開日 2025年11月11日 次回更新予定日 2025年12月19日
    ケータイ用バーコード

    QRコード

    スマートフォンでこの物件を見る
    スマートフォンからもこの物件をご覧になれます。
    ※「-」と表示されている項目については、情報提供会社にご確認ください。

    クイックお問い合わせ

    ここから簡単にお問い合わせをすることができます。
    (SSLでの暗号化での送信を希望されるお客さまは こちら よりお問い合わせください)

    お問い合わせ内容(必須)
    物件のお問い合わせ理由(必須)
    お名前・ご担当者様名(必須) 姓  名 
    メールアドレス(必須)
    ※携帯電話のメールアドレスをご入力される方はこちらをご確認ください
    電話番号(必須)
    - -
    備考欄 希望条件、物件案内希望日、質問などがございましたらご記入ください。
    お問い合わせを行う前に「個人情報の取り扱いについて」を必ずお読みください。
    「個人情報の取り扱いについて」に同意いただいた場合は「上記にご同意の上 確認画面へ進む」のボタンをクリックしてください。

    個人情報の取り扱いについて

    皆さまが送付された個人情報はアットホーム(株)のサーバを経由し、お問い合わせ先の不動産会社にメールまたはFAXにて転送されるためアットホーム(株)にも保管されます。アットホーム(株)で保管された個人情報の取り扱いについては、【こちら】をご覧ください。
    また、本画面でご記入いただいた個人情報は、お問い合わせ先の不動産会社でも保管します。 お問い合わせ先の不動産会社が保管する個人情報の取り扱いについては、不動産会社に直接お問い合わせください。

    情報提供会社

    情報提供会社

    モレク(株)

    東京都知事免許(4)第91497号

    交通:
    JR山手線/上野駅 徒歩2分
    東京都台東区上野7丁目6-11 
    TEL:
    03-5826-0210
    FAX:
    03-5826-0211
    所属団体:
    (公社)東京都宅地建物取引業協会会員
    (公社)首都圏不動産公正取引協議会加盟

    取引態様:仲介

    • 会社情報
    • 00102528
    スマートフォンで
    この不動産会社を見る
    QRコード
    • お問い合わせ
    • 提携サイト等より掲載されている物件情報につきましては、不動産会社詳細情報にリンクされていないものがあります。
    • 物件に関するお問合せは、物件詳細ページの「情報提供会社」に表示されている不動産会社へ直接お願いいたします。
    • 間取図は、現況を優先させていただきます。
    • 映像は物件の一部を撮影したものです。物件の契約にあたっての最終判断はご自身の判断に基づいて行ってください。
    • 仲介手数料について仲介手数料

    アットホームは物件情報の適正化に努めております。 内容に誤りがある場合にはこちらへご連絡ください。


    物件画像: