賃貸や不動産はアットホーム-賃貸マンション・賃貸物件・不動産なら アットホーム

大阪府大阪市淀川区宮原1丁目(東三国駅)の貸事務所:物件詳細

  • 物件詳細
  • 情報の見方
  • 印刷用画面
交通
所在地
駅徒歩 賃料
管理費等
敷金/保証金
礼金
使用部分面積
坪数/坪単価
物件種目
築年月

地下鉄御堂筋線/東三国

大阪府大阪市淀川区宮原1丁目

3分

6.5万円

なし / なし

25万円

21.17m²

6.40坪/1.0151万円

貸事務所

1982年3月(築43年10ヶ月)

おすすめコメント

ホテル式のフロント管理人常駐で玄関はオートロック、セキュリティ完備。新規開業、支店開設等、小規模オフィスです。

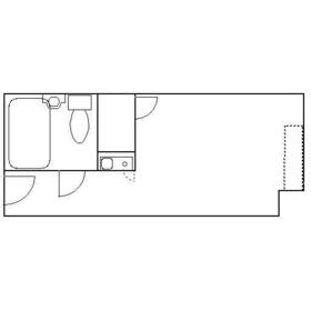
間取図

間取図

外観

外観

その他の画像
  • 室内
  • 室内
  • 室内
  • 室内
    • お問い合わせ
    交通

    地下鉄御堂筋線 東三国駅 徒歩3分

    その他の交通

    JR東海道本線 新大阪駅 徒歩6分

    地下鉄御堂筋線 新大阪駅 徒歩6分

    所在地 大阪府大阪市淀川区宮原1丁目
    物件種目 貸事務所
    賃料 6.5万円 管理費等
    敷金 / 保証金 なし / なし 礼金 25万円
    敷引 坪単価 1.0151万円
    保証金償却 権利金
    造作譲渡 その他一時金
    維持費等 保険等 要 火災
    使用部分面積 21.17m² 坪数 6.40坪
    築年月 1982年3月(築43年10ヶ月) 階建 / 階 13階建 / 9階
    駐車場 バイク置き場
    駐輪場 土地面積
    接道状況 用途地域
    間取り 建物構造 SRC
    アピールポイント 地下鉄、JR2線利用で交通アクセス良好です。小規模オフィスでフロント、管理人常駐で安心です。
    建物名・部屋番号 9F
    リフォーム履歴
    リノベーション履歴
    特記事項
    備考
    賃貸保証等:加入要(-)
    管理形態/管理員の勤務形態:-/-
    空き予定
    エネルギー消費性能
    断熱性能
    目安光熱費
    バス・トイレ 専有部分にトイレあり
    キッチン
    設備・サービス 個別空調、オートロック、給湯、エアコン、暖房、冷房
    その他 エレベーター
    契約期間 2年 条件等
    引渡可能時期 相談 現況 使用中
    更新料 物件番号 6988343355
    情報公開日 2025年11月11日 次回更新予定日 2025年12月16日
    ケータイ用バーコード

    QRコード

    スマートフォンでこの物件を見る
    スマートフォンからもこの物件をご覧になれます。
    ※「-」と表示されている項目については、情報提供会社にご確認ください。

    この物件の周辺情報

    周辺施設 ローソン宮原1丁目店
    距離 1m
    周辺施設 キッチンオリジン新大阪宮原店
    距離 66m
    周辺施設 オリックスレンタカー新大阪店
    距離 87m
    周辺施設 ファミリーマート淀川宮原店
    距離 225m
    周辺施設 セブンイレブン大阪宮原2丁目店
    距離 178m
    周辺施設 スギ薬局東三国駅前店
    距離 233m
    周辺施設 淀川宮原郵便局
    距離 470m

    クイックお問い合わせ

    ここから簡単にお問い合わせをすることができます。
    (SSLでの暗号化での送信を希望されるお客さまは こちら よりお問い合わせください)

    お問い合わせ内容(必須)
    物件のお問い合わせ理由(必須)
    お名前・ご担当者様名(必須) 姓  名 
    メールアドレス(必須)
    ※携帯電話のメールアドレスをご入力される方はこちらをご確認ください
    電話番号(必須)
    - -
    備考欄 希望条件、物件案内希望日、質問などがございましたらご記入ください。
    お問い合わせを行う前に「個人情報の取り扱いについて」を必ずお読みください。
    「個人情報の取り扱いについて」に同意いただいた場合は「上記にご同意の上 確認画面へ進む」のボタンをクリックしてください。

    個人情報の取り扱いについて

    皆さまが送付された個人情報はアットホーム(株)のサーバを経由し、お問い合わせ先の不動産会社にメールまたはFAXにて転送されるためアットホーム(株)にも保管されます。アットホーム(株)で保管された個人情報の取り扱いについては、【こちら】をご覧ください。
    また、本画面でご記入いただいた個人情報は、お問い合わせ先の不動産会社でも保管します。 お問い合わせ先の不動産会社が保管する個人情報の取り扱いについては、不動産会社に直接お問い合わせください。

    情報提供会社

    情報提供会社

    (株)アインエステート

    大阪府知事免許(5)第49056号

    交通:
    阪急千里線/吹田駅 徒歩12分
    大阪府吹田市内本町3丁目26-39 104 
    TEL:
    06-6350-4500
    FAX:
    06-6170-9663
    所属団体:
    (一社)大阪府宅地建物取引業協会会員
    (公社)近畿地区不動産公正取引協議会加盟

    取引態様:代理

    • 会社情報
    • 50015542
    スマートフォンで
    この不動産会社を見る
    QRコード
    • お問い合わせ
    • 提携サイト等より掲載されている物件情報につきましては、不動産会社詳細情報にリンクされていないものがあります。
    • 物件に関するお問合せは、物件詳細ページの「情報提供会社」に表示されている不動産会社へ直接お願いいたします。
    • 間取図は、現況を優先させていただきます。
    • 映像は物件の一部を撮影したものです。物件の契約にあたっての最終判断はご自身の判断に基づいて行ってください。
    • 仲介手数料について仲介手数料

    アットホームは物件情報の適正化に努めております。 内容に誤りがある場合にはこちらへご連絡ください。


    物件画像: