賃貸や不動産はアットホーム-賃貸マンション・賃貸物件・不動産なら アットホーム

大阪府大阪市福島区福島5丁目(福島駅)の貸事務所:物件詳細

  • 物件詳細
  • 情報の見方
  • 印刷用画面
交通
所在地
駅徒歩 賃料
管理費等
敷金/保証金
礼金
使用部分面積
坪数/坪単価
物件種目
築年月

阪神本線/福島

大阪府大阪市福島区福島5丁目

1分

25.14万円

71,331円

なし / 137.17万円

なし

60.46m²

18.28坪/1.3746万円

貸事務所

2010年1月(築16年)

おすすめコメント

福島5丁目事務所 阪神本線 福島駅 徒歩2分 60.46㎡  現況空室 即日入居可能!

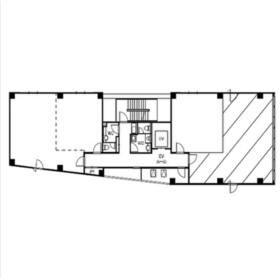
間取図

間取図

その他の画像
    • お問い合わせ
    交通

    阪神本線 福島駅 徒歩1分

    その他の交通

    JR大阪環状線 福島駅 徒歩5分

    JR東西線 新福島駅 徒歩5分

    所在地 大阪府大阪市福島区福島5丁目
    物件種目 貸事務所
    賃料 25.14万円 管理費等 71,331円
    敷金 / 保証金 なし / 137.17万円 礼金 なし
    敷引 坪単価 1.3746万円
    保証金償却 権利金
    造作譲渡 その他一時金
    維持費等 保険等
    使用部分面積 60.46m² 坪数 18.28坪
    築年月 2010年1月(築16年) 階建 / 階 9階建 / 5階
    駐車場 バイク置き場
    駐輪場 有 無料 土地面積
    接道状況 用途地域
    間取り 建物構造 RC
    アピールポイント 福島5丁目事務所 
    阪神本線 福島駅 徒歩2分 
    60.46㎡  
    現況空室 即日入居可能!

    備考
    ・保証金半額プラン適用(保証会社加入)
    ・保証会社未加入契約も可(保証金@150,000)
    ・外国籍の個人契約可(但し、国内在住及び印鑑証明要)
    ・礼金・敷引き0
    ・解約料(満了時0・期間内20%)
    ・期間内解約ペナ無し


    ・機械警備
    ・管理人常駐のダブル警備
    ・個別空調
    ・共用トイレ音姫(擬音装置)あり
    ・給湯
    ・駐輪場(隣接)
    ・新耐震基準クリア
    ・ガラスカーテンウォール
    ・共用部の清掃は専門業者にて実施

    特記事項
    契約時必要書類:個人(印証)・法人(謄本)要
    保証会社加入の場合(契約時:賃共の1ヶ月分/2年目以降1年毎:月額賃共の10%)
    定期借家5年も可能
     →賃料263,376円(税別)@14,400
      共益費71,331円(税別)@3,900 
      保証金1,554,650円@85,000
    ※保証金半額プラン適用
    ※再契約可

    お問い合わせお待ちしております!
    建物名・部屋番号  
    リフォーム履歴
    リノベーション履歴
    特記事項 24時間利用可、土曜日利用可、土日・祝日利用可、有人警備、飲食店不可、24時間セキュリティー、制震構造、IT重説対応物件
    備考
    管理形態/管理員の勤務形態:-/-
    IT重説対応物件
    エネルギー消費性能
    断熱性能
    目安光熱費
    バス・トイレ トイレ2ヶ所、共用部分に男女別トイレあり
    キッチン
    設備・サービス 個別空調、給湯、エアコン、暖房、冷房、インターネット対応、光ファイバー
    その他 エレベーター
    契約期間 2年 条件等 定期借家定期借家
    引渡可能時期 即時 現況
    更新料 物件番号 6988312129
    情報公開日 2025年11月9日 次回更新予定日 2025年12月16日
    ケータイ用バーコード

    QRコード

    スマートフォンでこの物件を見る
    スマートフォンからもこの物件をご覧になれます。
    ※「-」と表示されている項目については、情報提供会社にご確認ください。

    この物件の周辺情報

    周辺施設 CoDeli西梅田公園前店
    距離 71m
    周辺施設 セブンイレブン大阪梅田2丁目西店
    距離 120m
    周辺施設 大阪商工信用金庫西梅田支店
    距離 144m
    周辺施設 大阪ダイハツ販売本社
    距離 193m
    周辺施設 カフェ・ド・クリエ毎日インテシオ店
    距離 256m
    周辺施設 毎日新聞オーバルホール
    距離 276m
    周辺施設 ローソン毎日インテシオ店
    距離 264m
    周辺施設 ファミリーマートラグザ大阪店
    距離 237m

    クイックお問い合わせ

    ここから簡単にお問い合わせをすることができます。
    (SSLでの暗号化での送信を希望されるお客さまは こちら よりお問い合わせください)

    お問い合わせ内容(必須)
    物件のお問い合わせ理由(必須)
    お名前・ご担当者様名(必須) 姓  名 
    メールアドレス(必須)
    ※携帯電話のメールアドレスをご入力される方はこちらをご確認ください
    電話番号(必須)
    - -
    備考欄 希望条件、物件案内希望日、質問などがございましたらご記入ください。
    お問い合わせを行う前に「個人情報の取り扱いについて」を必ずお読みください。
    「個人情報の取り扱いについて」に同意いただいた場合は「上記にご同意の上 確認画面へ進む」のボタンをクリックしてください。

    個人情報の取り扱いについて

    皆さまが送付された個人情報はアットホーム(株)のサーバを経由し、お問い合わせ先の不動産会社にメールまたはFAXにて転送されるためアットホーム(株)にも保管されます。アットホーム(株)で保管された個人情報の取り扱いについては、【こちら】をご覧ください。
    また、本画面でご記入いただいた個人情報は、お問い合わせ先の不動産会社でも保管します。 お問い合わせ先の不動産会社が保管する個人情報の取り扱いについては、不動産会社に直接お問い合わせください。

    情報提供会社

    情報提供会社

    (株)Ride不動産

    大阪府知事免許(1)第62884号

    交通:
    地下鉄御堂筋線/本町駅 徒歩5分
    大阪府大阪市西区南堀江1丁目25-12 RE-015 302号室
    TEL:
    06-6786-8690
    FAX:
    06-6786-8691
    所属団体:
    (公社)全日本不動産協会会員
    (公社)近畿地区不動産公正取引協議会加盟

    取引態様:仲介

    • 会社情報
    • 50106188
    スマートフォンで
    この不動産会社を見る
    QRコード
    • お問い合わせ
    • 提携サイト等より掲載されている物件情報につきましては、不動産会社詳細情報にリンクされていないものがあります。
    • 物件に関するお問合せは、物件詳細ページの「情報提供会社」に表示されている不動産会社へ直接お願いいたします。
    • 間取図は、現況を優先させていただきます。
    • 映像は物件の一部を撮影したものです。物件の契約にあたっての最終判断はご自身の判断に基づいて行ってください。
    • 仲介手数料について仲介手数料

    アットホームは物件情報の適正化に努めております。 内容に誤りがある場合にはこちらへご連絡ください。


    物件画像: