賃貸や不動産はアットホーム-賃貸マンション・賃貸物件・不動産なら アットホーム

東京都新宿区下宮比町(飯田橋駅)の貸事務所:物件詳細

  • 物件詳細
  • 情報の見方
  • 印刷用画面
交通
所在地
駅徒歩 賃料
管理費等
敷金/保証金
礼金
使用部分面積
坪数/坪単価
物件種目
築年月

JR総武線/飯田橋 新着

東京都新宿区下宮比町

3分

19.25万円

38,500円

3ヶ月 / なし

1ヶ月

48.77m²

14.75坪/1.3049万円

貸事務所

1978年8月(築47年4ヶ月)

おすすめコメント  スタッフ: 荻野 純

◆貸主と直接交渉!■物元飯田橋駅東口から徒歩3分。外堀通りを渡ってすぐのアクセス良好立地■グレード感のある分譲マンションの一室(オフィスが多く入居中)吹き抜けロビーで打ち合わせもできます

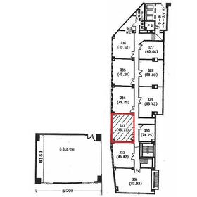
間取図

間取図

<
その他の画像
  • ショッピング施設
  • コンビニ
  • 飲食店
  • 病院
  • 郵便局
  • 銀行
  • 役所
  • 公園
>
    • お問い合わせ
    交通

    JR総武線 飯田橋駅 徒歩3分

    その他の交通

    都営大江戸線 牛込神楽坂駅 徒歩9分

    東京メトロ東西線 神楽坂駅 徒歩8分

    所在地 東京都新宿区下宮比町
    物件種目 貸事務所
    賃料 19.25万円 管理費等 38,500円
    敷金 / 保証金 3ヶ月 / なし 礼金 1ヶ月
    敷引 坪単価 1.3049万円
    保証金償却 権利金
    造作譲渡 その他一時金
    維持費等 保険等 要 2年
    使用部分面積 48.77m² 坪数 14.75坪
    築年月 1978年8月(築47年4ヶ月) 階建 / 階 地上11階地下1階建 / 3階
    駐車場 バイク置き場
    駐輪場 土地面積
    接道状況 用途地域
    間取り 建物構造 SRC
    アピールポイント ■物件名:飯田橋ハイタウン
    ■住所:新宿区下宮比町2-28

    ■物元飯田橋駅東口から徒歩3分。外堀通りを渡ってすぐのアクセス良好立地
    ■グレード感のある分譲マンションの一室(オフィスが多く入居中)
     吹き抜けロビーで打ち合わせもできます。1Fの高級料理店も雰囲気があります。
    ■2015年大規模修繕済み!2020年共用部リニューアル済み

    ※備考※
    ・コインランドリーあり(2階)
    ・エレベーター(3基)
    ・夜間オートロック


    飯田橋ハイタウンのお問い合わせは、
    事業用不動産専門の株式会社エンジンテラスまで!
    ※お問い合わせの際は業種をご入力いただくとスムーズにご案内できます!
    建物名・部屋番号 飯田橋ハイタウン 333
    リフォーム履歴
    リノベーション履歴
    特記事項 24時間利用可
    備考
    賃貸保証等:加入要(契約プランに基づく)
    管理形態/管理員の勤務形態:-/-
    施設内会議室あり:20名の口の字可能
    ●コインランドリーあり(2階)
    ●エレベーター(3基)
    ●夜間オートロック
    エネルギー消費性能
    断熱性能
    目安光熱費
    バス・トイレ 共用部分に男女別トイレあり
    キッチン
    設備・サービス 防犯カメラ、エアコン
    その他 エレベーター2基以上
    契約期間 2年 条件等
    引渡可能時期 即時 現況
    仲介手数料 1ヶ月    
    更新料 新賃料 1ヶ月 物件番号 6988256089
    情報公開日 2025年11月4日 次回更新予定日 2025年11月18日
    ケータイ用バーコード

    QRコード

    スマートフォンでこの物件を見る
    スマートフォンからもこの物件をご覧になれます。
    ※「-」と表示されている項目については、情報提供会社にご確認ください。

    この物件の周辺情報

    周辺施設 まいばすけっと飯田橋店
    距離 169m
    周辺施設 ローソン新宿下宮比町店
    距離 215m
    周辺施設 タリーズコーヒー飯田橋東口店
    距離 287m
    周辺施設 独立行政法人地域医療機能推進機構JCHO東京新宿メディカルセンター
    距離 209m
    周辺施設 飯田橋駅東口郵便局
    距離 167m
    周辺施設 みずほ銀行飯田橋支店
    距離 222m
    周辺施設 文京区役所
    距離 1095m
    周辺施設 文京区小石川運動場
    距離 315m

    クイックお問い合わせ

    ここから簡単にお問い合わせをすることができます。
    (SSLでの暗号化での送信を希望されるお客さまは こちら よりお問い合わせください)

    お問い合わせ内容(必須)
    物件のお問い合わせ理由(必須)
    お名前・ご担当者様名(必須) 姓  名 
    メールアドレス(必須)
    ※携帯電話のメールアドレスをご入力される方はこちらをご確認ください
    電話番号(必須)
    - -
    備考欄 希望条件、物件案内希望日、質問などがございましたらご記入ください。
    お問い合わせを行う前に「個人情報の取り扱いについて」を必ずお読みください。
    「個人情報の取り扱いについて」に同意いただいた場合は「上記にご同意の上 確認画面へ進む」のボタンをクリックしてください。

    個人情報の取り扱いについて

    皆さまが送付された個人情報はアットホーム(株)のサーバを経由し、お問い合わせ先の不動産会社にメールまたはFAXにて転送されるためアットホーム(株)にも保管されます。アットホーム(株)で保管された個人情報の取り扱いについては、【こちら】をご覧ください。
    また、本画面でご記入いただいた個人情報は、お問い合わせ先の不動産会社でも保管します。 お問い合わせ先の不動産会社が保管する個人情報の取り扱いについては、不動産会社に直接お問い合わせください。

    情報提供会社

    情報提供会社

    (株)エンジンテラス 新宿店

    東京都知事免許(3)第94555号

    交通:
    JR山手線/新宿駅 徒歩4分
    東京都渋谷区代々木2丁目15-12 クランツ南新宿203
    TEL:
    03-5302-1885
    FAX:
    03-5302-1886
    所属団体:
    (公社)全日本不動産協会会員
    (公社)首都圏不動産公正取引協議会加盟

    取引態様:仲介

    • 会社情報
    • 00107309
    スマートフォンで
    この不動産会社を見る
    QRコード
    • お問い合わせ
    • 提携サイト等より掲載されている物件情報につきましては、不動産会社詳細情報にリンクされていないものがあります。
    • 物件に関するお問合せは、物件詳細ページの「情報提供会社」に表示されている不動産会社へ直接お願いいたします。
    • 間取図は、現況を優先させていただきます。
    • 映像は物件の一部を撮影したものです。物件の契約にあたっての最終判断はご自身の判断に基づいて行ってください。
    • 仲介手数料について仲介手数料

    アットホームは物件情報の適正化に努めております。 内容に誤りがある場合にはこちらへご連絡ください。


    物件画像: