賃貸や不動産はアットホーム-賃貸マンション・賃貸物件・不動産なら アットホーム

大阪府大阪市中央区南船場1丁目(長堀橋駅)の貸事務所:物件詳細

  • 物件詳細
  • 情報の見方
  • 印刷用画面
交通
所在地
駅徒歩 賃料
管理費等
敷金/保証金
礼金
使用部分面積
坪数/坪単価
物件種目
築年月

地下鉄長堀鶴見緑地線/長堀橋 新着

大阪府大阪市中央区南船場1丁目

2分

45.7万円

163,075円

12ヶ月 / なし

なし

196.00m²

59.28坪/0.7708万円

貸事務所

1987年4月(築38年8ヶ月)

おすすめコメント  スタッフ: 吉岡 靖浩

パールビルは、1987年竣工の新耐震基準を満たす賃貸オフィスで、9階建てエレベーターは2基設置されております。駐車場が併設されております。最新の空き状況については弊社までお問い合わせ下さい。

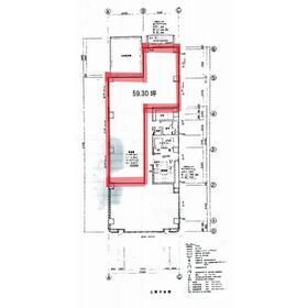
間取図

間取図

その他の画像
  • 共有部分
  • 駐車場
  • 共有部分
  • 駐車場
  • 共有部分
    • お問い合わせ
    交通

    地下鉄長堀鶴見緑地線 長堀橋駅 徒歩2分

    その他の交通

    地下鉄堺筋線 長堀橋駅 徒歩3分

    地下鉄長堀鶴見緑地線 松屋町駅 徒歩9分

    所在地 大阪府大阪市中央区南船場1丁目
    物件種目 貸事務所
    賃料 45.7万円 管理費等 163,075円
    敷金 / 保証金 12ヶ月 / なし 礼金 なし
    敷引 坪単価 0.7708万円
    保証金償却 権利金
    造作譲渡 その他一時金
    維持費等 保険等 要 2年 アクア少額短期保険
    使用部分面積 196.00m² 坪数 59.28坪
    築年月 1987年4月(築38年8ヶ月) 階建 / 階 地上9階地下1階建 / 5階
    駐車場 有 38,500円/月(空き2台)
    駐車場契約時敷金3か月必要です。
    バイク置き場
    駐輪場 有 無料 土地面積
    接道状況 用途地域
    間取り 建物構造 RC
    アピールポイント パールビルは、1987年竣工の新耐震基準を満たす賃貸オフィスで、9階建てエレベーターは2基設置されております。駐車場が併設されております。最新の空き状況については弊社までお問い合わせ下さい。
    建物名・部屋番号  
    リフォーム履歴
    リノベーション履歴
    特記事項 24時間利用可、耐震構造(新耐震基準)
    備考
    賃貸保証等:加入要(USEN TRUST、日本セーフティー)
    管理形態/管理員の勤務形態:-/-
    エネルギー消費性能
    断熱性能
    目安光熱費
    バス・トイレ 共用部分に男女別トイレあり
    キッチン
    設備・サービス
    その他 エレベーター2基以上
    契約期間 2年 条件等
    引渡可能時期 即時 現況
    更新料 物件番号 6988250269
    情報公開日 2025年11月3日 次回更新予定日 2025年11月17日
    ケータイ用バーコード

    QRコード

    スマートフォンでこの物件を見る
    スマートフォンからもこの物件をご覧になれます。
    ※「-」と表示されている項目については、情報提供会社にご確認ください。

    この物件の周辺情報

    周辺施設 ローソン南船場一丁目店
    距離 48m
    周辺施設 つるまる堺筋店
    距離 50m
    周辺施設 ローソン長堀橋駅店
    距離 104m
    周辺施設 ファミリーマート長堀橋駅北店
    距離 87m
    周辺施設 すき家南船場店
    距離 172m
    周辺施設 トマト銀行大阪支店
    距離 190m
    周辺施設 ローソンOSL長堀橋駅店
    距離 163m
    周辺施設 大衆酒場堺筋食堂
    距離 171m

    クイックお問い合わせ

    ここから簡単にお問い合わせをすることができます。
    (SSLでの暗号化での送信を希望されるお客さまは こちら よりお問い合わせください)

    お問い合わせ内容(必須)
    物件のお問い合わせ理由(必須)
    お名前・ご担当者様名(必須) 姓  名 
    メールアドレス(必須)
    ※携帯電話のメールアドレスをご入力される方はこちらをご確認ください
    電話番号(必須)
    - -
    備考欄 希望条件、物件案内希望日、質問などがございましたらご記入ください。
    お問い合わせを行う前に「個人情報の取り扱いについて」を必ずお読みください。
    「個人情報の取り扱いについて」に同意いただいた場合は「上記にご同意の上 確認画面へ進む」のボタンをクリックしてください。

    個人情報の取り扱いについて

    皆さまが送付された個人情報はアットホーム(株)のサーバを経由し、お問い合わせ先の不動産会社にメールまたはFAXにて転送されるためアットホーム(株)にも保管されます。アットホーム(株)で保管された個人情報の取り扱いについては、【こちら】をご覧ください。
    また、本画面でご記入いただいた個人情報は、お問い合わせ先の不動産会社でも保管します。 お問い合わせ先の不動産会社が保管する個人情報の取り扱いについては、不動産会社に直接お問い合わせください。

    情報提供会社

    情報提供会社

    日本橋ホーム(株)

    大阪府知事免許(2)第61623号

    交通:
    地下鉄堺筋線/日本橋駅 徒歩2分
    大阪府大阪市中央区高津2丁目8-19 
    TEL:
    06-6211-2481
    所属団体:
    (一社)大阪府宅地建物取引業協会会員
    (公社)近畿地区不動産公正取引協議会加盟

    取引態様:仲介

    • 会社情報
    • 50104755
    スマートフォンで
    この不動産会社を見る
    QRコード
    • お問い合わせ
    • 提携サイト等より掲載されている物件情報につきましては、不動産会社詳細情報にリンクされていないものがあります。
    • 物件に関するお問合せは、物件詳細ページの「情報提供会社」に表示されている不動産会社へ直接お願いいたします。
    • 間取図は、現況を優先させていただきます。
    • 映像は物件の一部を撮影したものです。物件の契約にあたっての最終判断はご自身の判断に基づいて行ってください。
    • 仲介手数料について仲介手数料

    アットホームは物件情報の適正化に努めております。 内容に誤りがある場合にはこちらへご連絡ください。


    物件画像: