賃貸や不動産はアットホーム-賃貸マンション・賃貸物件・不動産なら アットホーム

東京都港区芝浦3丁目(田町駅)の貸事務所:物件詳細

  • 物件詳細
  • 情報の見方
  • 印刷用画面
交通
所在地
駅徒歩 賃料
管理費等
敷金/保証金
礼金
使用部分面積
坪数/坪単価
物件種目
築年月

JR山手線/田町

東京都港区芝浦3丁目

6分

28.05万円

なし / 6ヶ月

なし

66.25m²

20.04坪/1.3997万円

貸事務所

1991年6月(築34年9ヶ月)

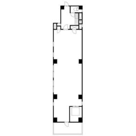
間取図

間取図

室内

室内

その他の画像
  • 室内
  • 室内
  • 外観
  • キッチン
  • トイレ
    • お問い合わせ
    交通

    JR山手線 田町駅 徒歩6分

    その他の交通

    JR京浜東北線 田町駅 徒歩6分

    都営浅草線 三田駅 徒歩9分

    所在地 東京都港区芝浦3丁目
    物件種目 貸事務所
    賃料 28.05万円 管理費等
    敷金 / 保証金 なし / 6ヶ月 礼金 なし
    敷引 坪単価 1.3997万円
    保証金償却 年2ヶ月 権利金
    造作譲渡 その他一時金
    維持費等 保険等
    使用部分面積 66.25m² 坪数 20.04坪
    築年月 1991年6月(築34年9ヶ月) 階建 / 階 7階建 / 6階
    駐車場 バイク置き場
    駐輪場 土地面積
    接道状況 用途地域
    間取り 建物構造 鉄骨造
    建物名・部屋番号  
    リフォーム履歴 ■水回り:2026年1月
    トイレ
    ■その他:2026年1月
    換気扇
    ※実施年月は最も古い履歴を表示
    リノベーション履歴
    特記事項 土日・祝日利用可、飲食店不可、1フロア1テナント、24時間セキュリティー
    備考
    賃貸保証等:加入要(賃料の1カ月)
    管理形態/管理員の勤務形態:-/-
    主要採光面:南西向き
    エネルギー消費性能
    断熱性能
    目安光熱費
    バス・トイレ 専有部分にトイレあり
    キッチン
    設備・サービス 個別空調、エアコン2台以上、オートロック、防犯カメラ、ビルトインエアコン、火災警報器(報知機)、インターネット対応
    その他 エレベーター
    契約期間 2年 条件等
    引渡可能時期 即時 現況
    適格請求書発行
    更新料 新賃料 1ヶ月 物件番号 6988220540
    情報公開日 2025年12月16日 次回更新予定日 2026年2月23日
    ケータイ用バーコード

    QRコード

    スマートフォンでこの物件を見る
    スマートフォンからもこの物件をご覧になれます。
    ※「-」と表示されている項目については、情報提供会社にご確認ください。

    この物件の周辺情報

    周辺施設 まいばすけっと芝浦3丁目店
    距離 129m
    周辺施設 ナチュラルローソン港芝浦三丁目店
    距離 55m
    周辺施設 港芝浦郵便局
    距離 373m
    周辺施設 みずほ銀行芝支店
    距離 580m

    クイックお問い合わせ

    ここから簡単にお問い合わせをすることができます。
    (SSLでの暗号化での送信を希望されるお客さまは こちら よりお問い合わせください)

    お問い合わせ内容(必須)
    物件のお問い合わせ理由(必須)
    お名前・ご担当者様名(必須) 姓  名 
    メールアドレス(必須)
    ※携帯電話のメールアドレスをご入力される方はこちらをご確認ください
    電話番号(必須)
    - -
    備考欄 希望条件、物件案内希望日、質問などがございましたらご記入ください。
    お問い合わせを行う前に「個人情報の取り扱いについて」を必ずお読みください。
    「個人情報の取り扱いについて」に同意いただいた場合は「上記にご同意の上 確認画面へ進む」のボタンをクリックしてください。

    個人情報の取り扱いについて

    皆さまが送付された個人情報はアットホーム(株)のサーバを経由し、お問い合わせ先の不動産会社にメールまたはFAXにて転送されるためアットホーム(株)にも保管されます。アットホーム(株)で保管された個人情報の取り扱いについては、【こちら】をご覧ください。
    また、本画面でご記入いただいた個人情報は、お問い合わせ先の不動産会社でも保管します。 お問い合わせ先の不動産会社が保管する個人情報の取り扱いについては、不動産会社に直接お問い合わせください。

    情報提供会社

    情報提供会社

    Keteo(株)

    東京都知事免許(2)第100999号

    交通:
    東京メトロ丸ノ内線/新宿御苑前駅 徒歩3分
    東京都新宿区新宿1丁目36番2号 新宿第七葉山ビル303号室
    TEL:
    03-6379-3516
    所属団体:
    (公社)全日本不動産協会会員

    取引態様:仲介

    • 会社情報
    • 00270296
    スマートフォンで
    この不動産会社を見る
    QRコード
    • お問い合わせ
    • 提携サイト等より掲載されている物件情報につきましては、不動産会社詳細情報にリンクされていないものがあります。
    • 物件に関するお問合せは、物件詳細ページの「情報提供会社」に表示されている不動産会社へ直接お願いいたします。
    • 間取図は、現況を優先させていただきます。
    • 映像は物件の一部を撮影したものです。物件の契約にあたっての最終判断はご自身の判断に基づいて行ってください。
    • 仲介手数料について仲介手数料

    アットホームは物件情報の適正化に努めております。 内容に誤りがある場合にはこちらへご連絡ください。


    物件画像: