賃貸や不動産はアットホーム-賃貸マンション・賃貸物件・不動産なら アットホーム

愛知県名古屋市東区泉1丁目(久屋大通駅)の貸事務所:物件詳細

  • 物件詳細
  • 情報の見方
  • 印刷用画面
交通
所在地
駅徒歩 賃料
管理費等
敷金/保証金
礼金
使用部分面積
坪数/坪単価
物件種目
築年月

名古屋市名城線/久屋大通

愛知県名古屋市東区泉1丁目

4分

11.982万円

36,467円

なし / 10ヶ月

なし

39.14m²

11.83坪/1.0121万円

貸事務所

1989年5月(築36年8ヶ月)

おすすめコメント  スタッフ: 室田

久屋大通駅から徒歩4分、久屋大通公園からすぐの物件です。事務所利用のお客様にオススメです。

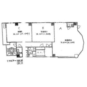
間取図

間取図

<
その他の画像
>
    • お問い合わせ
    交通

    名古屋市名城線 久屋大通駅 徒歩4分

    その他の交通

    名古屋市東山線 栄駅 徒歩9分

    名古屋市桜通線 久屋大通駅 徒歩4分

    所在地 愛知県名古屋市東区泉1丁目
    物件種目 貸事務所
    賃料 11.982万円 管理費等 36,467円
    敷金 / 保証金 なし / 10ヶ月 礼金 なし
    敷引 坪単価 1.0121万円
    保証金償却 権利金
    造作譲渡 その他一時金
    維持費等 保険等
    使用部分面積 39.14m² 坪数 11.83坪
    築年月 1989年5月(築36年8ヶ月) 階建 / 階 地上9階地下1階建 / 7階
    駐車場 バイク置き場
    駐輪場 土地面積
    接道状況 用途地域
    間取り 建物構造 SRC
    アピールポイント お問合せやご質問は、052-959-2888(株式会社オフィッコス)
    原則30分以内に確認をして資料をお送りさせていただきます。お気軽にお問合せくださいませ。
    建物名・部屋番号 アルピニストビル 7F 11.84坪
    リフォーム履歴
    リノベーション履歴
    特記事項 24時間利用可、土曜日利用可、土日・祝日利用可、24時間セキュリティー、IT重説対応物件
    備考
    管理形態/管理員の勤務形態:-/-
    IT重説対応物件
    エネルギー消費性能
    断熱性能
    目安光熱費
    バス・トイレ 共用部分にトイレあり
    キッチン
    設備・サービス 個別空調、エアコン、暖房、冷房、インターネット対応、光ファイバー
    その他 エレベーター
    契約期間 2年 条件等
    引渡可能時期 即時 現況
    更新料 物件番号 6988218004
    情報公開日 2025年10月31日 次回更新予定日 2025年12月26日
    ケータイ用バーコード

    QRコード

    スマートフォンでこの物件を見る
    スマートフォンからもこの物件をご覧になれます。
    ※「-」と表示されている項目については、情報提供会社にご確認ください。

    この物件の周辺情報

    周辺施設 ファミリーマート泉一丁目店
    距離 156m
    周辺施設 楽只美術館
    距離 123m
    周辺施設 ほっかほっか亭桜通泉店
    距離 182m
    周辺施設 セントラルパーク駐車場
    距離 182m
    周辺施設 タリーズコーヒーRAYARD Hisaya-odori Park店
    距離 250m
    周辺施設 ナゴノ福祉歯科医療専門学校
    距離 160m
    周辺施設 セブンイレブン名古屋地下鉄久屋大通駅店
    距離 248m
    周辺施設 街かど屋東桜店
    距離 207m

    クイックお問い合わせ

    ここから簡単にお問い合わせをすることができます。
    (SSLでの暗号化での送信を希望されるお客さまは こちら よりお問い合わせください)

    お問い合わせ内容(必須)
    物件のお問い合わせ理由(必須)
    お名前・ご担当者様名(必須) 姓  名 
    メールアドレス(必須)
    ※携帯電話のメールアドレスをご入力される方はこちらをご確認ください
    電話番号(必須)
    - -
    備考欄 希望条件、物件案内希望日、質問などがございましたらご記入ください。
    お問い合わせを行う前に「個人情報の取り扱いについて」を必ずお読みください。
    「個人情報の取り扱いについて」に同意いただいた場合は「上記にご同意の上 確認画面へ進む」のボタンをクリックしてください。

    個人情報の取り扱いについて

    皆さまが送付された個人情報はアットホーム(株)のサーバを経由し、お問い合わせ先の不動産会社にメールまたはFAXにて転送されるためアットホーム(株)にも保管されます。アットホーム(株)で保管された個人情報の取り扱いについては、【こちら】をご覧ください。
    また、本画面でご記入いただいた個人情報は、お問い合わせ先の不動産会社でも保管します。 お問い合わせ先の不動産会社が保管する個人情報の取り扱いについては、不動産会社に直接お問い合わせください。

    情報提供会社

    情報提供会社

    (株)オフィッコス

    愛知県知事免許(3)第22161号

    交通:
    名古屋市名城線/久屋大通駅 徒歩2分
    愛知県名古屋市中区丸の内3丁目18-1 三晃丸の内ビル7F
    TEL:
    052-959-2888
    FAX:
    052-959-2890
    所属団体:
    (公社)全日本不動産協会会員
    東海不動産公正取引協議会加盟

    取引態様:仲介

    • 会社情報
    • 40403414
    スマートフォンで
    この不動産会社を見る
    QRコード
    • お問い合わせ
    • 提携サイト等より掲載されている物件情報につきましては、不動産会社詳細情報にリンクされていないものがあります。
    • 物件に関するお問合せは、物件詳細ページの「情報提供会社」に表示されている不動産会社へ直接お願いいたします。
    • 間取図は、現況を優先させていただきます。
    • 映像は物件の一部を撮影したものです。物件の契約にあたっての最終判断はご自身の判断に基づいて行ってください。
    • 仲介手数料について仲介手数料

    アットホームは物件情報の適正化に努めております。 内容に誤りがある場合にはこちらへご連絡ください。


    物件画像: